Brass Castle Lane, Marton-In-Cleveland, Middlesbrough, TS8 9QZ
By Stonebridge Homes
£ 559,995
Reviews
3 out of 5 stars
Stonebridge Homes says ..
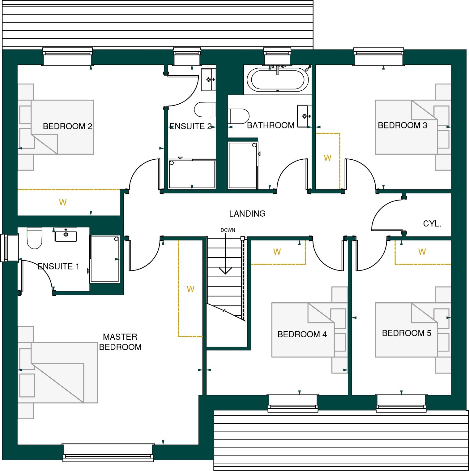
The Turnberry is a beautiful family home, featuring an open plan kitchen/dining area with integrated Bosch appliances and french doors to the garden. There's a separate lounge, also featuring french doors, a study, utility room and 5 double bedrooms. MOVE IN FOR CHRISTMAS
Property Oracle says ..
This is a modern detached property located in Marton-In-Cleveland, Middlesbrough. The house features five bedrooms and appears to be in excellent condition, with stylish interior design and modern amenities. The property includes a garden. The property is located near schools and train stations. The price is higher than the average for the area, at £559,995, compared to the average of £388,623.
Therefore, we give this property 7 / 10. *Disclaimer: This is our option and does constitute a recommendation or financial advice. Do your own research. *
- Price
- 6
- Condition
- 9
- Location
- 7
- Land
- 7
- Bedrooms
- 5
- Bathrooms
- 0
- Sqft (est)
- 1,120.00
The heatmap indicates the level of crime in the area. The color of the heatmap indicates the crime severity and recency.
Metrics Year-on-Year
- Average area value
- 388,623.00 £Increased by 13.61 %
- Est sale value
- 427,840.00 £Increased by 37.91 %
- Average area rental value
- 1,025.00 £/moDecreased by 21.15 %
- Est letting value
- 1,120.00 £/moUnchanged by 0.00 %
- Est rental Yield
- 3.17 %Decreased by 30.48 %
- Crime Rate
- 3.00 %Unchanged by 0.00 %
Agent Activity
Stonebridge Homes created the listing.
Nearby Schools
| Name | Type | Ofsted | Distance |
|---|---|---|---|
| St Bernadette'S Catholic Primary School | Academy Converter | Good | 1.04 KM |
| The Avenue Primary School | Academy Converter | 1.17 KM | |
| Chandlers Ridge Academy | Academy Sponsor Led | 1.23 KM | |
| Lingfield Primary School | Academy Converter | 1.36 KM | |
| Captain Cook Primary School | Academy Converter | 1.94 KM |
Images
Nearby Streets
| Name | Average Price | Average Sqft | Distance |
|---|---|---|---|
| Bridlewoods | £ 1,300,000 | 0 | 0.00 KM |
| Dixons Bank | £ 0 | 0 | 0.00 KM |
| Captain Cook's Crescent | £ 220,000 | 0 | 0.00 KM |
| Crookers Hill Close | £ 495,000 | 0 | 0.00 KM |
| Edinburgh Close | £ 0 | 0 | 0.00 KM |
Nearby Transport
| Name | NLC | TLC | Distance |
|---|---|---|---|
| Gypsy Lane | 7930 | GYP | 1.70 KM |
| Nunthorpe | 7946 | NNT | 2.18 KM |
| Marton | 7947 | MTO | 2.99 KM |
| James Cook University Hospital | 9507 | JCH | 4.28 KM |
| South Bank | 7953 | SBK | 7.22 KM |
Nearby Listings
| Address | Price | Type | Score | Distance |
|---|---|---|---|---|
| Brass Castle Lane, Marton-In-Cleveland, Middlesbrough, TS8 9QZ | £ 619,995 | BUY | 7 / 10 | 0.00 KM |
| Brass Castle Lane, Marton-In-Cleveland, Middlesbrough, TS8 9QZ | £ 614,995 | BUY | 6 / 10 | 0.00 KM |
| Brass Castle Lane, Marton-In-Cleveland, Middlesbrough, TS8 9QZ | £ 573,995 | BUY | Unknown | 0.00 KM |
| Brass Castle Lane, Marton-In-Cleveland, Middlesbrough, TS8 9QZ | £ 559,995 | BUY | Unknown | 0.00 KM |
| Brass Castle Lane, Marton-In-Cleveland, Middlesbrough, TS8 9QZ | £ 624,995 | BUY | 6 / 10 | 0.00 KM |
Nearby Properties
| Address | Price | Distance |
|---|---|---|
| 19 Bonny Grove | £ 245,000 | 0.00 KM |
| 12 Bonny Grove | £ 220,000 | 0.00 KM |
| 4 Bonny Grove | £ 225,000 | 0.00 KM |
| 30 Bonny Grove | £ 241,000 | 0.02 KM |
| 8 Bonny Grove | £ 230,000 | 0.02 KM |