13 Glebe Road, Kilmarnock, KA1 3BA
By Donald Ross Residential
£ 270,000
Reviews
3 out of 5 stars
Donald Ross Residential says ..
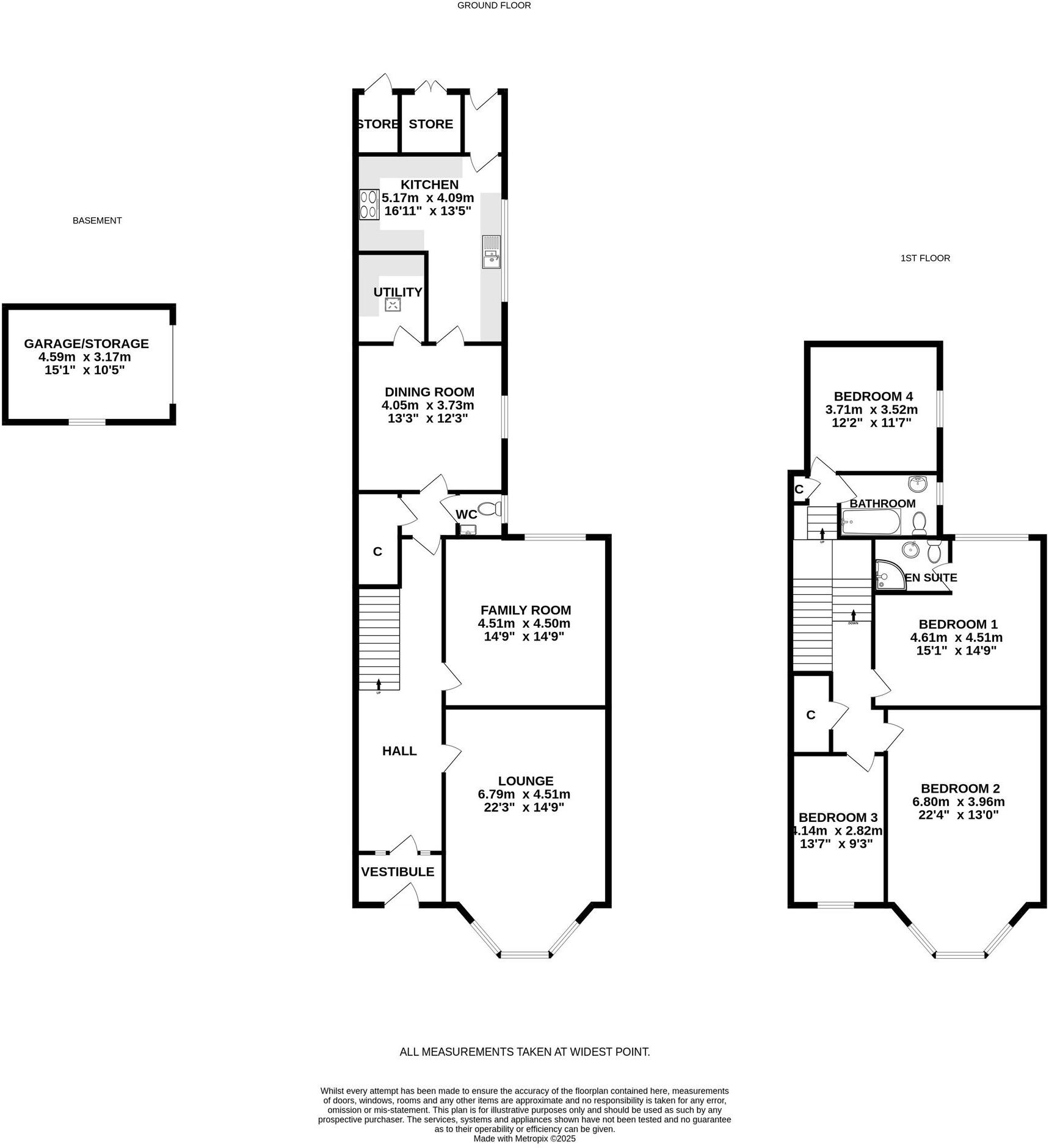
An exceptional five-bedroom red sandstone villa extending to over 2,200 sq.ft, offering traditional charm, substantial accommodation throughout, and a private garden in Kilmarnock’s prestigious London Road area.
Property Oracle says ..
A substantial terraced house with five bedrooms and two bathrooms. The interior appears to be well-maintained, but with some traditional decor. The kitchen, while functional, could benefit from modernization. The bathrooms appear clean and in good working order. The property includes a rear garden, which is mostly paved. There also appears to be a garage. The list price of £270,000 is below the average price in the area of £317,330. The price per square foot is £144, significantly lower than the area average of £427. Given the size and features of the property, including the garden and garage, the price appears to represent good value for money.
Therefore, we give this property 7 / 10. *Disclaimer: This is our option and does constitute a recommendation or financial advice. Do your own research. *
- Price
- 8
- Condition
- 7
- Location
- 7
- Land
- 6
- Bedrooms
- 5
- Bathrooms
- 2
- Sqft (est)
- 1,874.64
The heatmap indicates the level of crime in the area. The color of the heatmap indicates the crime severity and recency.
Metrics Year-on-Year
- Average area value
- 317,330.00 £Decreased by 9.75 %
- Est sale value
- 800,471.28 £Increased by 25.96 %
- Average area rental value
- 1,425.00 £/moIncreased by 27.12 %
- Est letting value
- 1,874.64 £/moUnchanged by 0.00 %
- Est rental Yield
- 5.39 %Increased by 40.73 %
- Crime Rate
- 0.00 %
Agent Activity
Donald Ross Residential created the listing.
Images
Nearby Streets
| Name | Average Price | Average Sqft | Distance |
|---|---|---|---|
| Elmbank Avenue | £ 0 | 0 | 0.00 KM |
| Gabriel Andrew Gardens | £ 0 | 0 | 0.00 KM |
| Nursery Gardens | £ 0 | 0 | 0.00 KM |
| Dick Road | £ 18,000 | 0 | 0.00 KM |
| Kay Park Terrace | £ 295,000 | 0 | 0.00 KM |
Nearby Transport
| Name | NLC | TLC | Distance |
|---|---|---|---|
| Kilmarnock | 9512 | KMK | 1.24 KM |
| Kilmaurs | 9516 | KLM | 5.70 KM |
| Stewarton | 9554 | STT | 8.92 KM |
Nearby Listings
| Address | Price | Type | Score | Distance |
|---|---|---|---|---|
| 13 Glebe Road, Kilmarnock, KA1 3BA | £ 270,000 | BUY | 7 / 10 | 0.00 KM |
| Elmbank Drive, Kilmarnock, KA1 | £ 295,000 | BUY | 6 / 10 | 0.06 KM |
| London Road, Kilmarnock, East Ayrshire, KA3 7AG | £ 285,000 | BUY | Unknown | 0.10 KM |
| 8 Mitchell Court, Kilmarnock KA1 3DU | £ 145,000 | BUY | 6 / 10 | 0.17 KM |
| Burnside House, 18 London Road, Kilmarnock, KA3 7AQ | £ 645,000 | BUY | Unknown | 0.18 KM |