LO
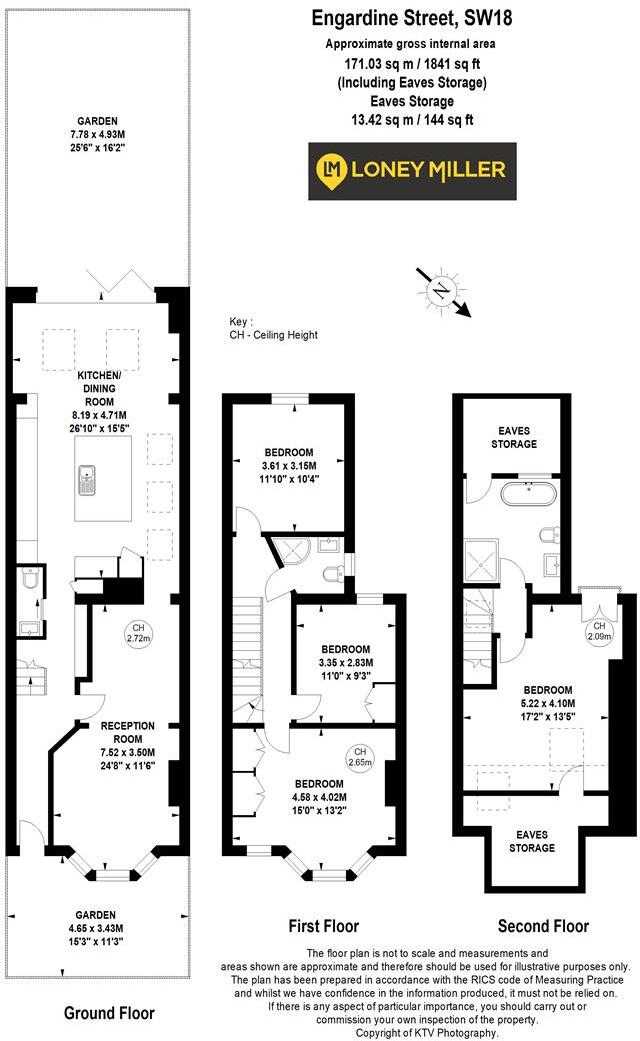
Engadine Street, London
By Loney Miller Limited
£ 1,500,000
Reviews
3 out of 5 stars
Loney Miller Limited says ..
Offering in excess of 1800 Sq Ft of accommodation is this quite exceptional family home. Located on the highly sought after Southfields Grid the artisan shops and eateries of the village can be found at the end of the road, along with excellent transport links and some of the areas most prominent...
Property Oracle says ..
Therefore, we give this property 7 / 10. *Disclaimer: This is our option and does constitute a recommendation or financial advice. Do your own research. *
- Price
- 7
- Condition
- 8
- Location
- 8
- Land
- 7
- Bedrooms
- 4
- Bathrooms
- 2
- Sqft (est)
- 1,811.14
The heatmap indicates the level of crime in the area. The color of the heatmap indicates the crime severity and recency.
Metrics Year-on-Year
- Average area value
- 719,333.00 £Increased by 1.81 %
- Est sale value
- 1,418,122.62 £Decreased by 0.38 %
- Average area rental value
- 2,472.00 £/moDecreased by 10.69 %
- Est letting value
- 3,622.28 £/moDecreased by 33.33 %
- Est rental Yield
- 4.12 %Decreased by 12.34 %
- Crime Rate
- 4.00 %Unchanged by 0.00 %
from 706,552.00 £
from 1,423,556.04 £
from 2,768.00 £/mo
from 5,433.42 £/mo
from 4.70 %
from 4.00 %
Agent Activity
Loney Miller Limited created the listing.
Nearby Schools
| Name | Type | Ofsted | Distance |
|---|---|---|---|
| Wimbledon Park Primary School | Community School | Outstanding | 0.68 KM |
| Southfields Academy | Academy Converter | Good | 0.73 KM |
| Riversdale Primary School | Community School | Good | 0.73 KM |
| Sheringdale Primary School | Community School | Outstanding | 0.75 KM |
| Saint Cecilia'S Church Of England School | Academy Converter | Good | 1.06 KM |
Images
Nearby Streets
| Name | Average Price | Average Sqft | Distance |
|---|---|---|---|
| Normanton Avenue | £ 0 | 0 | 0.00 KM |
| Alba Mews | £ 0 | 0 | 0.00 KM |
| Squires Court | £ 0 | 0 | 0.00 KM |
| Southfields Court | £ 0 | 0 | 0.00 KM |
| Duntshill Road | £ 0 | 0 | 0.00 KM |
Nearby Transport
| Name | NLC | TLC | Distance |
|---|---|---|---|
| Earlsfield | 5584 | EAD | 1.55 KM |
| Haydons Road | 5289 | HYR | 2.18 KM |
| Wimbledon | 5578 | WIM | 2.20 KM |
| Wandsworth Town | 5576 | WNT | 2.73 KM |
| Putney | 5603 | PUT | 2.85 KM |
Nearby Listings
| Address | Price | Type | Score | Distance |
|---|---|---|---|---|
| Engadine Street, London | £ 1,500,000 | BUY | 7 / 10 | 0.00 KM |
| Astonville Street, London | £ 1,500,000 | BUY | 7 / 10 | 0.01 KM |
| Engadine Street, Southfields, London, SW18 | £ 1,450,000 | BUY | 8 / 10 | 0.04 KM |
| Clonmore Street, SW18 | £ 1,495,000 | BUY | 7 / 10 | 0.05 KM |
| Clonmore Street, London | £ 1,300,000 | BUY | 8 / 10 | 0.06 KM |
Nearby Properties
| Address | Price | Distance |
|---|---|---|
| 147 Engadine Street | £ 1,475,000 | 0.06 KM |
| 164 Engadine Street | £ 415,000 | 0.06 KM |
| 128 Engadine Street | £ 1,430,001 | 0.06 KM |
| 101 Engadine Street | £ 800,000 | 0.06 KM |
| 83 Engadine Street | £ 1,045,000 | 0.06 KM |