Phillip Shaw says ..
Situated in a peaceful residential neighborhood, this beautifully maintained 4-bedroom, 2-bathroom townhouse offers a superb living experience with its carefully planned layout and modern finishes, designed to provide both comfort and convenience.
Property Oracle says ..
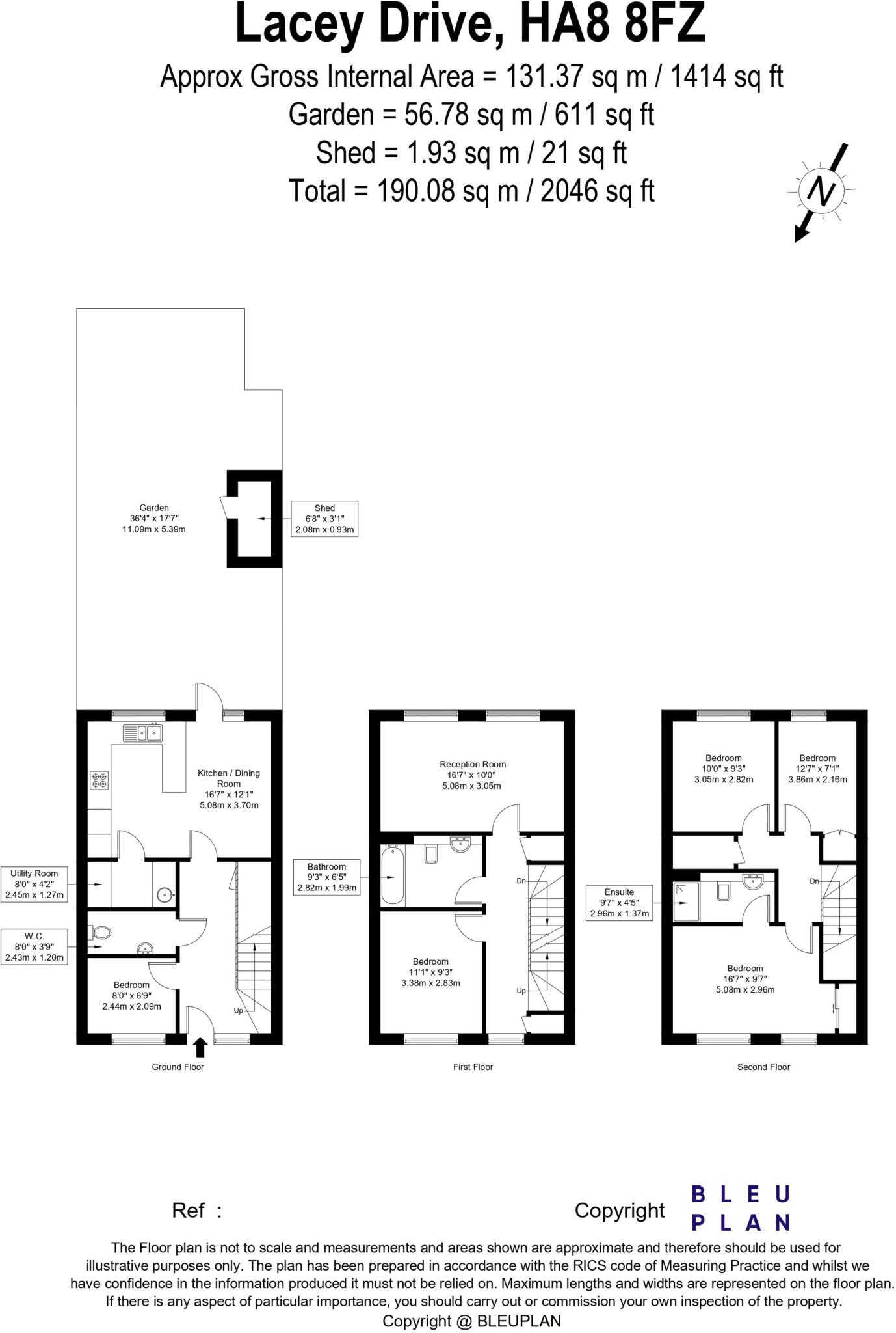
This property is a four-bedroom, two-bathroom terraced house located in Edgware, Barnet. The property benefits from a modern interior and a well-maintained garden. While the provided square footage is missing, the plot size is 2,046 sqft. The list price of £699,995 is slightly higher than the average price of £638,158 for the area, but this is to be expected given the modern condition and the inclusion of a garden. The location is convenient, with several schools and transportation links nearby. Overall, this property appears to be a good value for money, given the market conditions.
Therefore, we give this property 8 / 10. *Disclaimer: This is our option and does constitute a recommendation or financial advice. Do your own research. *
- Price
- 7
- Condition
- 9
- Location
- 8
- Land
- 8
- Bedrooms
- 4
- Bathrooms
- 2
- Lot (est)
- 2,046.00
The heatmap indicates the level of crime in the area. The color of the heatmap indicates the crime severity and recency.
Metrics Year-on-Year
- Average area value
- 523,881.00 £Decreased by 13.55 %
- Average area rental value
- 1,887.00 £/moDecreased by 11.95 %
- Est rental Yield
- 4.32 %Increased by 1.89 %
- Crime Rate
- 11.00 %Unchanged by 0.00 %
Agent Activity
Phillip Shaw created the listing.
Nearby Schools
| Name | Type | Ofsted | Distance |
|---|---|---|---|
| London Academy | Academy Sponsor Led | Good | 0.41 KM |
| North London Collegiate School | Other Independent School | 0.84 KM | |
| Aylward Primary School | Academy Sponsor Led | Good | 0.85 KM |
| Tashbar Of Edgware | Other Independent School | Inadequate | 1.29 KM |
| Edgware Jewish Girls - Beis Chinuch | Other Independent School | Good | 1.74 KM |
Images
Nearby Streets
| Name | Average Price | Average Sqft | Distance |
|---|---|---|---|
| Branningan Way | £ 0 | 0 | 0.00 KM |
| Regents Court | £ 399,250 | 0 | 0.00 KM |
| Stonegrove Court | £ 0 | 0 | 0.00 KM |
| Barnes Close | £ 675,000 | 0 | 0.00 KM |
| Orchard Court | £ 314,667 | 0 | 0.00 KM |
Nearby Transport
| Name | NLC | TLC | Distance |
|---|---|---|---|
| Elstree And Borehamwood | 1542 | ELS | 3.82 KM |
| Mill Hill Broadway | 1527 | MIL | 4.62 KM |
| Kenton | 1399 | KNT | 5.20 KM |
| Harrow And Wealdstone | 1397 | HRW | 5.81 KM |
| South Kenton | 1453 | SOK | 5.93 KM |
Nearby Listings
| Address | Price | Type | Score | Distance |
|---|---|---|---|---|
| Lacey Drive, Welford Court, HA8 | £ 435,000 | BUY | 7 / 10 | 0.00 KM |
| Lacey Drive, Welford Court, HA8 | £ 330,000 | BUY | 6 / 10 | 0.00 KM |
| Lacey Drive, Earlswood Court, HA8 | £ 322,500 | BUY | 6 / 10 | 0.00 KM |
| Lacey Drive, Welford Court, HA8 | £ 340,000 | BUY | 6 / 10 | 0.00 KM |
| Lacey Drive, Edgware, HA8 | £ 699,995 | BUY | 8 / 10 | 0.00 KM |
Nearby Properties
| Address | Price | Distance |
|---|---|---|
| 119 Stonegrove | £ 730,000 | 0.14 KM |
| 125 Stonegrove | £ 525,000 | 0.14 KM |
| 8 Willow Court | £ 171,500 | 0.14 KM |
| 6 Willow Court | £ 105,000 | 0.14 KM |
| 4 Willow Court | £ 130,000 | 0.15 KM |