Nightingale House, South Oxhey
By Fairfield Estate Agents
£ 300,000
Reviews
3 out of 5 stars
Fairfield Estate Agents says ..
A LARGER THAN AVERAGE ONE BEDROOM GROUND FLOOR FLAT WITH SECURE UNDERGROUND PARKING AND NO UPPER CHAIN.
Property Oracle says ..
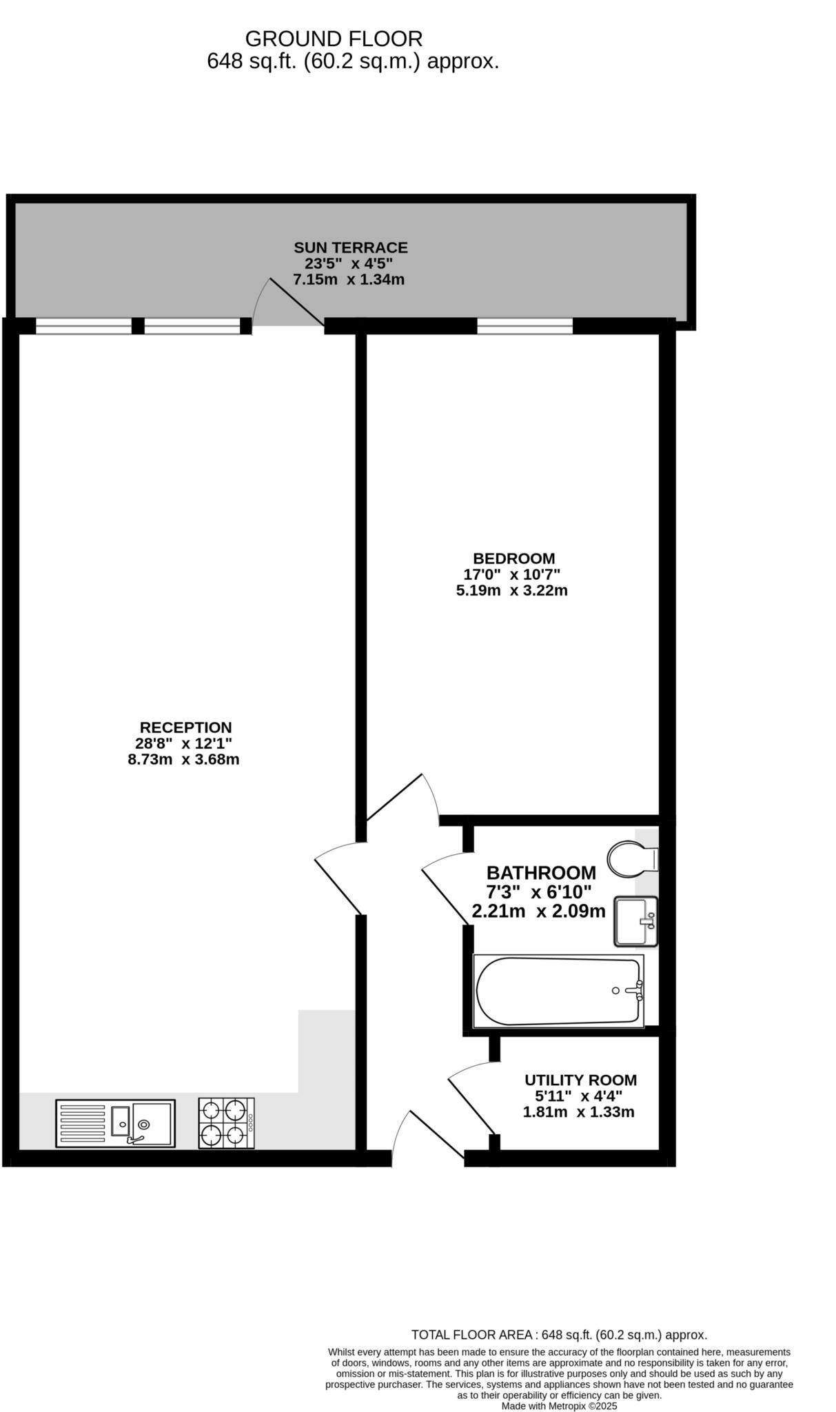
This is a one-bedroom flat in South Oxhey, presented by Fairfield Estate Agents. The property appears to be in good condition, featuring a modern kitchen and bathroom. It includes a balcony and access to a communal garden. The location offers proximity to transportation and schools. The asking price of £300,000 seems reasonable when compared to the average price per square foot in the area and nearby listings. The flat is located close to Carpenders Park station (London Overground) and several schools, including Warren Dell Primary School and Oxhey Wood Primary School. The property is modern and well-maintained, making it an attractive option for potential buyers.
Therefore, we give this property 7 / 10. *Disclaimer: This is our option and does constitute a recommendation or financial advice. Do your own research. *
- Price
- 7
- Condition
- 8
- Location
- 7
- Land
- 6
- Bedrooms
- 1
- Bathrooms
- 1
- Sqft (est)
- 707.14
The heatmap indicates the level of crime in the area. The color of the heatmap indicates the crime severity and recency.
Metrics Year-on-Year
- Average area value
- 458,750.00 £Increased by 22.99 %
- Est sale value
- 376,198.48 £Increased by 18.22 %
- Average area rental value
- 1,833.00 £/moIncreased by 3.09 %
- Est letting value
- 1,414.28 £/moUnchanged by 0.00 %
- Est rental Yield
- 4.79 %Decreased by 16.26 %
- Crime Rate
- 60.00 %Unchanged by 0.00 %
Agent Activity
Fairfield Estate Agents created the listing.
Nearby Schools
| Name | Type | Ofsted | Distance |
|---|---|---|---|
| Warren Dell Primary School | Academy Converter | 0.47 KM | |
| Oxhey Wood Primary School | Academy Converter | 0.51 KM | |
| 3R5 South Oxhey Family Centre | Children's Centre | 0.52 KM | |
| Colnbrook School | Community Special School | Outstanding | 0.58 KM |
| Woodhall Primary School | Community School | Requires improvement | 0.75 KM |
Images
Nearby Streets
| Name | Average Price | Average Sqft | Distance |
|---|---|---|---|
| Saint Andrews Way | £ 162,279 | 0 | 0.00 KM |
| Blackwell Place | £ 0 | 0 | 0.00 KM |
| Crowborough Path | £ 0 | 0 | 0.00 KM |
| Kilmarnock Road | £ 0 | 0 | 0.00 KM |
| Helen Way | £ 0 | 0 | 0.00 KM |
Nearby Transport
| Name | NLC | TLC | Distance |
|---|---|---|---|
| Carpenders Park | 1442 | CPK | 0.27 KM |
| Bushey | 1395 | BSH | 2.16 KM |
| Hatch End | 1398 | HTE | 2.82 KM |
| Watford High Street | 1455 | WFH | 2.95 KM |
| Watford Junction | 1402 | WFJ | 4.25 KM |
Nearby Listings
| Address | Price | Type | Score | Distance |
|---|---|---|---|---|
| Nightingale House, South Oxhey | £ 300,000 | BUY | 7 / 10 | 0.00 KM |
| Oxhey Drive, Watford | £ 300,000 | BUY | 7 / 10 | 0.01 KM |
| Nightingale House, South Oxhey Central | £ 300,000 | BUY | 6 / 10 | 0.02 KM |
| Holt Row, Watford | £ 525,000 | BUY | 6 / 10 | 0.05 KM |
| Tom Lake Way, Watford, Hertfordshire | £ 380,000 | BUY | 6 / 10 | 0.06 KM |
Nearby Properties
| Address | Price | Distance |
|---|---|---|
| 3 Oxhey Drive | £ 134,950 | 0.04 KM |
| 29 Oxhey Drive | £ 122,000 | 0.04 KM |
| 1 Oxhey Drive | £ 255,000 | 0.05 KM |
| 21 Oxhey Drive | £ 235,000 | 0.05 KM |
| 19 Oxhey Drive | £ 232,000 | 0.05 KM |