Canberra Road, Charlton, SE7
By Conran Estates
£ 725,000
Reviews
3 out of 5 stars
Conran Estates says ..
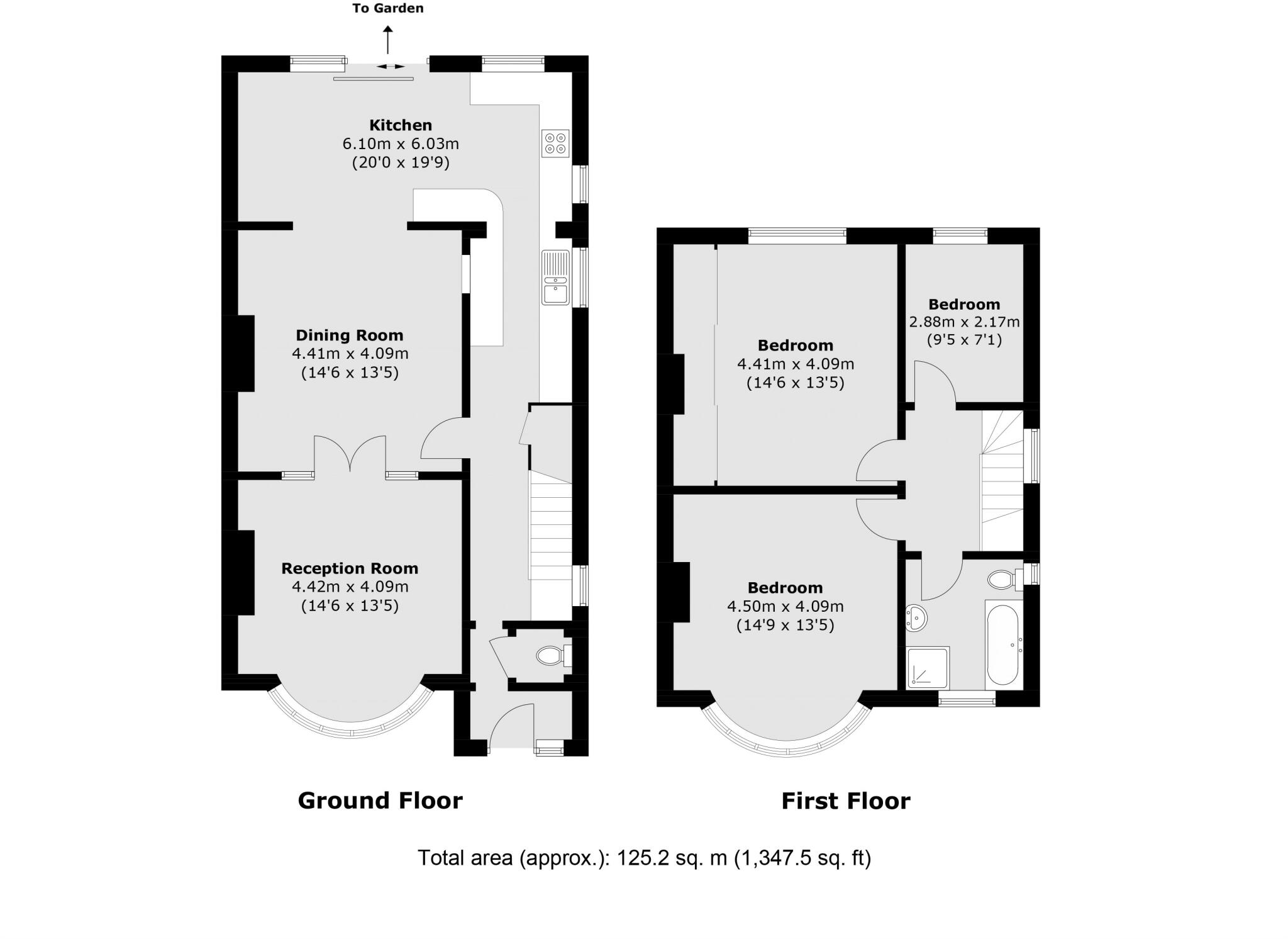
This charming and spacious 1930s three-bedroom semi-detached home offers the perfect blend of character, potential, and family-friendly living.
Property Oracle says ..
This is a three-bedroom semi-detached house located on Canberra Road, Charlton, London. The property is listed for £725,000. It is located in a residential area with access to nearby schools, transportation, and local amenities. The property has a garden. The condition of the property is fair, with some aspects appearing modernised while others could benefit from updating. The price is above the average for the area, but the property has three bedrooms and a garden.
Therefore, we give this property 6 / 10. *Disclaimer: This is our option and does constitute a recommendation or financial advice. Do your own research. *
- Price
- 6
- Condition
- 6
- Location
- 7
- Land
- 7
- Bedrooms
- 3
- Bathrooms
- 1
The heatmap indicates the level of crime in the area. The color of the heatmap indicates the crime severity and recency.
Metrics Year-on-Year
- Average area value
- 569,167.00 £Increased by 19.48 %
- Average area rental value
- 1,814.00 £/moIncreased by 1.06 %
- Est rental Yield
- 3.82 %Decreased by 15.49 %
- Crime Rate
- 4.00 %Unchanged by 0.00 %
Agent Activity
Conran Estates created the listing.
Nearby Schools
| Name | Type | Ofsted | Distance |
|---|---|---|---|
| Charlton Manor Primary School | Community School | Good | 0.31 KM |
| Cherry Orchard Primary School | Community School | Good | 0.45 KM |
| Leigh Academy Blackheath | Free Schools | 0.78 KM | |
| Our Lady Of Grace Catholic Primary School | Voluntary Aided School | Outstanding | 0.84 KM |
| Sherington Primary School | Community School | Outstanding | 1.01 KM |
Images
Nearby Streets
| Name | Average Price | Average Sqft | Distance |
|---|---|---|---|
| Elm Tree Court | £ 300,000 | 0 | 0.00 KM |
| Harold Gibbons Court | £ 0 | 0 | 0.00 KM |
| Old Dover Road | £ 0 | 0 | 0.00 KM |
| Chichester Close | £ 0 | 0 | 0.00 KM |
| Empire Close | £ 229,750 | 0 | 0.00 KM |
Nearby Transport
| Name | NLC | TLC | Distance |
|---|---|---|---|
| Charlton | 5144 | CTN | 0.92 KM |
| Westcombe Park | 5151 | WCB | 1.89 KM |
| Kidbrooke | 5108 | KDB | 2.08 KM |
| Woolwich Dockyard | 5153 | WWD | 2.56 KM |
| Blackheath | 5095 | BKH | 3.23 KM |
Nearby Listings
| Address | Price | Type | Score | Distance |
|---|---|---|---|---|
| Canberra Road, Charlton, SE7 | £ 725,000 | BUY | 6 / 10 | 0.00 KM |
| Canberra Road, Charlton, SE7 | £ 775,000 | BUY | 7 / 10 | 0.01 KM |
| Canberra Road, Charlton | £ 650,000 | BUY | 6 / 10 | 0.02 KM |
| Canberra Road, Charlton, London, SE7 | £ 650,000 | BUY | Unknown | 0.04 KM |
| Charlton Road, Charlton, SE7 | £ 385,000 | BUY | 7 / 10 | 0.07 KM |
Nearby Properties
| Address | Price | Distance |
|---|---|---|
| 180 Charlton Road | £ 350,000 | 0.07 KM |
| 200 Charlton Road | £ 129,000 | 0.07 KM |
| 178 Charlton Road | £ 389,000 | 0.07 KM |
| 186 Charlton Road | £ 637,500 | 0.07 KM |
| 188 Charlton Road | £ 648,000 | 0.07 KM |