Selborne Road, Lloyd Park, Croydon, CR0
By Foxtons
£ 1,150,000
Reviews
4 out of 5 stars
Foxtons says ..
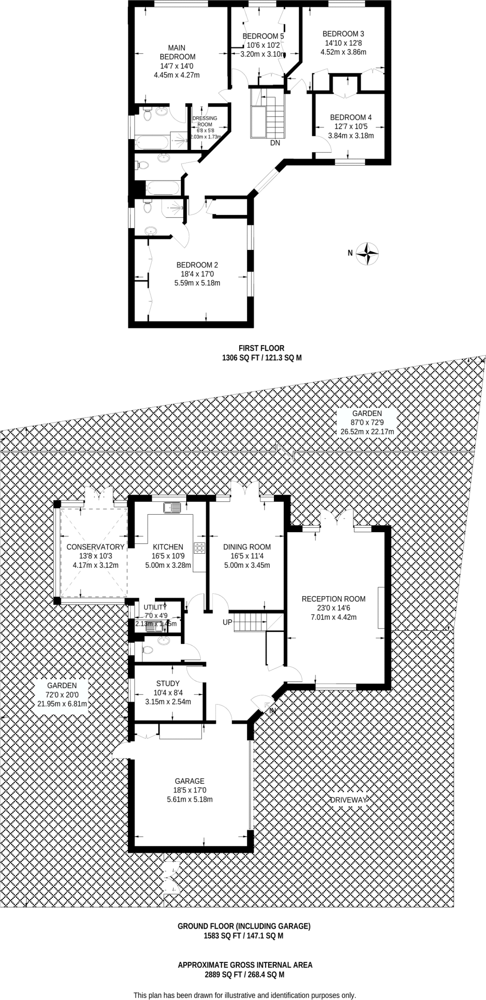
Boasting beautiful interiors throughout, this stunning 5 bedroom house features 2 elegant reception rooms, modern fully integrated kitchen, sunny conservatory, 2 en-suite bathrooms and a lovely wrap-around garden.
Property Oracle says ..
Therefore, we give this property 8 / 10. *Disclaimer: This is our option and does constitute a recommendation or financial advice. Do your own research. *
- Price
- 9
- Condition
- 8
- Location
- 8
- Land
- 7
- Bedrooms
- 5
- Bathrooms
- 3
- Sqft (est)
- 3,857.00
The heatmap indicates the level of crime in the area. The color of the heatmap indicates the crime severity and recency.
Metrics Year-on-Year
- Average area value
- 1,268,750.00 £Increased by 29.81 %
- Est sale value
- 6,113,345.00 £Increased by 115.35 %
- Average area rental value
- 2,317.00 £/moIncreased by 19.00 %
- Est letting value
- 7,714.00 £/moIncreased by 100.00 %
- Est rental Yield
- 2.19 %Decreased by 8.37 %
- Crime Rate
- 1.00 %Unchanged by 0.00 %
from 977,391.00 £
from 2,838,752.00 £
from 1,947.00 £/mo
from 3,857.00 £/mo
from 2.39 %
from 1.00 %
Agent Activity
Foxtons created the listing.
Nearby Schools
| Name | Type | Ofsted | Distance |
|---|---|---|---|
| Archbishop Tenison'S Cofe High School | Voluntary Aided School | Good | 0.24 KM |
| Park Hill Junior School | Academy Converter | Good | 0.61 KM |
| Park Hill Infant School | Community School | Outstanding | 0.62 KM |
| Cambridge Tutors College | Other Independent School | 0.77 KM | |
| Cressey College | Other Independent Special School | Good | 0.90 KM |
Images
Nearby Streets
| Name | Average Price | Average Sqft | Distance |
|---|---|---|---|
| Hunters Way | £ 0 | 0 | 0.00 KM |
| Coombe Avenue | £ 0 | 0 | 0.00 KM |
| Siskin Court | £ 0 | 0 | 0.00 KM |
| Leafy Way | £ 325,000 | 0 | 0.00 KM |
| Ballater Road | £ 780,000 | 0 | 0.00 KM |
Nearby Transport
| Name | NLC | TLC | Distance |
|---|---|---|---|
| East Croydon | 5355 | ECR | 1.21 KM |
| South Croydon | 5410 | SCY | 1.24 KM |
| West Croydon | 5411 | WCY | 2.31 KM |
| Sanderstead | 5433 | SNR | 2.54 KM |
| Selhurst | 5434 | SRS | 2.60 KM |
Nearby Listings
| Address | Price | Type | Score | Distance |
|---|---|---|---|---|
| Selborne Road, Lloyd Park, Croydon, CR0 | £ 1,095,000 | BUY | Unknown | 0.00 KM |
| Selborne Road, Lloyd Park, Croydon, CR0 | £ 1,150,000 | BUY | 8 / 10 | 0.00 KM |
| Selborne Road, Croydon | £ 200,000 | BUY | 6 / 10 | 0.02 KM |
| Land Adjacent to 1A Selborne Road, Croydon, Surrey, CR0 5JQ | £ 30,000 | BUY | 5 / 10 | 0.02 KM |
| Selborne Road, Croydon | £ 270,000 | BUY | 7 / 10 | 0.02 KM |
Nearby Properties
| Address | Price | Distance |
|---|---|---|
| 4 Selborne Road | £ 450,000 | 0.02 KM |
| 8 Selborne Road | £ 410,000 | 0.02 KM |
| 46a Selborne Road | £ 535,000 | 0.02 KM |
| 17 Selborne Road | £ 372,500 | 0.02 KM |
| 2 Selborne Road | £ 870,000 | 0.02 KM |