Patrick Drive, Shieldhill, FK1
By Clyde Property
£ 295,000
Reviews
3 out of 5 stars
Clyde Property says ..
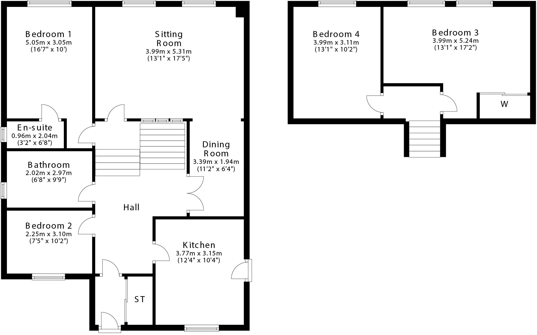
Nestling at the end of a quiet cul de sac this impressive split level four bedroom detached villa enjoys stunning views of the River Forth, Kelpies and Ochil Hills.
Property Oracle says ..
This property is a 4 bedroom detached villa located in Shieldhill, Falkirk. The property benefits from a good sized garden and is within a reasonable distance of local amenities and transport links. While the property shows some signs of age and may benefit from some modernisation, it appears to be well-maintained and in good condition. The list price is significantly lower than the average price for the area, making it potentially good value for money, however, more information on the property size would be needed to confirm this.
Therefore, we give this property 7 / 10. *Disclaimer: This is our option and does constitute a recommendation or financial advice. Do your own research. *
- Price
- 8
- Condition
- 7
- Location
- 6
- Land
- 7
- Bedrooms
- 4
- Bathrooms
- 1
- Sqft (est)
- 1,113.96
The heatmap indicates the level of crime in the area. The color of the heatmap indicates the crime severity and recency.
Metrics Year-on-Year
- Average area value
- 490,000.00 £Decreased by 5.86 %
- Est sale value
- 503,509.92 £Increased by 75.88 %
- Average area rental value
- 1,975.00 £/moIncreased by 83.72 %
- Est letting value
- 1,113.96 £/mo
- Est rental Yield
- 4.84 %Increased by 95.16 %
- Crime Rate
- 0.00 %
Agent Activity
Clyde Property created the listing.
Nearby Schools
| Name | Type | Ofsted | Distance |
|---|---|---|---|
| Oakwood School | Offshore Schools | 2.73 KM |
Images
Nearby Streets
| Name | Average Price | Average Sqft | Distance |
|---|---|---|---|
| Rannock Place | £ 0 | 0 | 0.00 KM |
| Vorlich Drive | £ 175,000 | 0 | 0.00 KM |
| Pirleyhill Drive | £ 0 | 0 | 0.00 KM |
| Mamre Drive | £ 0 | 0 | 0.00 KM |
| Church Road | £ 299,999 | 0 | 0.00 KM |
Nearby Transport
| Name | NLC | TLC | Distance |
|---|---|---|---|
| Falkirk High | 9931 | FKK | 4.04 KM |
| Falkirk Grahamston | 9930 | FKG | 4.15 KM |
| Polmont | 9936 | PMT | 5.09 KM |
| Camelon | 9878 | CMO | 7.26 KM |
| Larbert | 9876 | LBT | 9.45 KM |
Nearby Listings
| Address | Price | Type | Score | Distance |
|---|---|---|---|---|
| Patrick Drive, Shieldhill, FK1 | £ 295,000 | BUY | 7 / 10 | 0.00 KM |
| 63 Belmont Avenue, Shieldhill FK1 2BS | £ 267,500 | BUY | 7 / 10 | 0.04 KM |
| 45 Belmont Avenue, FK1 2BS | £ 169,000 | BUY | Unknown | 0.06 KM |
| Ledi Place, Shieldhill, Falkirk, FK1 | £ 179,995 | BUY | 7 / 10 | 0.06 KM |
| Ledi Place,Shieldhill,Falkirk,FK1 2PA | £ 82,000 | BUY | 7 / 10 | 0.10 KM |