Ashtons says ..
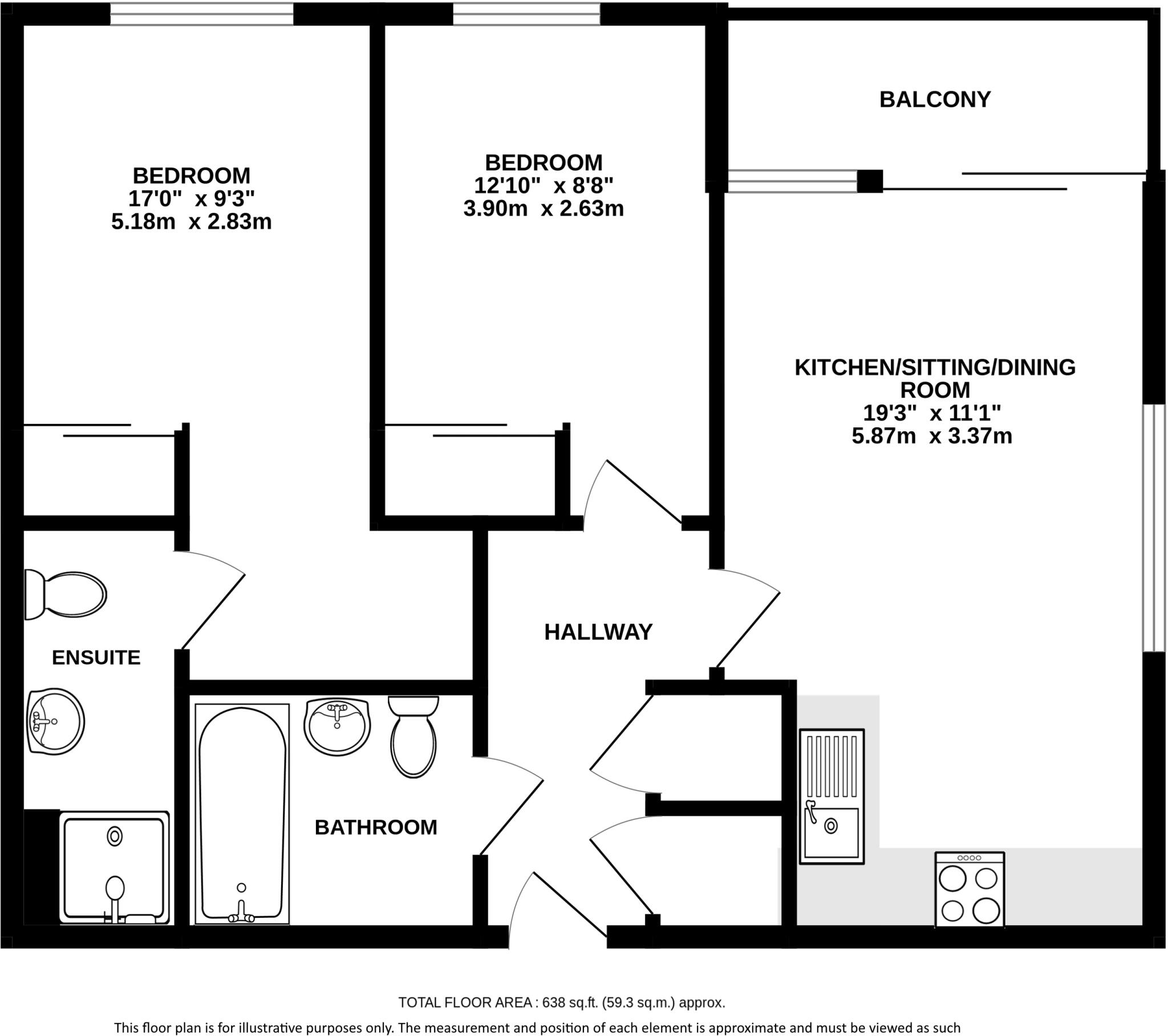
A spacious two-bedroom two-bathroom apartment situated on the second floor in a popular town centre development. Being sold with no onward chain.
Property Oracle says ..
This is a two-bedroom flat in St Albans, Hertfordshire. The property is in a good location, close to transport links, schools, and amenities. The flat appears to be in good condition, with modern fixtures and fittings. It has a balcony, but no garden. The property is reasonably priced for its size and location. The flat is located in a modern building. Overall, this property would likely suit a small family or young professionals looking for a convenient and well-maintained home in a desirable location. The proximity to good schools and transport links makes it an attractive option for commuters and families alike. The flat’s modern features and overall condition add to its appeal.
Therefore, we give this property 6 / 10. *Disclaimer: This is our option and does constitute a recommendation or financial advice. Do your own research. *
- Price
- 6
- Condition
- 8
- Location
- 7
- Land
- 4
- Bedrooms
- 2
- Bathrooms
- 2
- Sqft (est)
- 638.00
The heatmap indicates the level of crime in the area. The color of the heatmap indicates the crime severity and recency.
Metrics Year-on-Year
- Average area value
- 879,375.00 £Increased by 25.99 %
- Est sale value
- 643,104.00 £Increased by 50.90 %
- Average area rental value
- 1,568.00 £/moDecreased by 10.50 %
- Est letting value
- 638.00 £/moUnchanged by 0.00 %
- Est rental Yield
- 2.14 %Decreased by 28.90 %
- Crime Rate
- 11.00 %Unchanged by 0.00 %
Agent Activity
Ashtons created the listing.
Nearby Schools
| Name | Type | Ofsted | Distance |
|---|---|---|---|
| Loreto College | Academy Converter | Outstanding | 0.18 KM |
| Maple Primary School | Community School | Good | 0.27 KM |
| St Albans High School For Girls | Other Independent School | 0.41 KM | |
| Alban City School | Free Schools | Good | 0.45 KM |
| St Albans Independent College | Other Independent School | Good | 0.67 KM |
Images
Nearby Streets
| Name | Average Price | Average Sqft | Distance |
|---|---|---|---|
| St Peter's Road | £ 550,000 | 0 | 0.00 KM |
| Elm Lawn Close | £ 0 | 0 | 0.00 KM |
| Avenue Road | £ 417,500 | 0 | 0.00 KM |
| Cranmore Court | £ 250,000 | 0 | 0.00 KM |
| Jubilee Square | £ 200,833 | 0 | 0.00 KM |
Nearby Transport
| Name | NLC | TLC | Distance |
|---|---|---|---|
| St Albans City | 1548 | SAC | 0.52 KM |
| St Albans Abbey | 1562 | SAA | 1.70 KM |
| Park Street | 1561 | PKT | 3.37 KM |
| How Wood (Hertfordshire) | 1563 | HWW | 4.34 KM |
| Bricket Wood | 1560 | BWO | 6.28 KM |
Nearby Listings
| Address | Price | Type | Score | Distance |
|---|---|---|---|---|
| St Peters Road, St Albans, AL1 | £ 410,000 | BUY | 6 / 10 | 0.00 KM |
| Newsom Place, Hatfield Road, St. Albans, Hertfordshire, AL1 | £ 250,000 | BUY | 6 / 10 | 0.01 KM |
| Fitzwilliam Court, Newsome Place, St Albans | £ 260,000 | BUY | Unknown | 0.02 KM |
| Newsom Place, Hatfield Road, St Albans, AL1 | £ 195,000 | BUY | 6 / 10 | 0.04 KM |
| Newsom Place, St. Albans | £ 155,000 | BUY | 6 / 10 | 0.04 KM |
Nearby Properties
| Address | Price | Distance |
|---|---|---|
| 35 St Peters Road | £ 2,790,000 | 0.08 KM |
| 25 St Peters Road | £ 472,500 | 0.14 KM |
| 23 St Peters Road | £ 775,000 | 0.14 KM |
| 33 St Peters Road | £ 590,000 | 0.14 KM |
| 17 St Peters Road | £ 325,000 | 0.14 KM |