Hanover Court, Midhope Road, Woking, Surrey, GU22
By Seymours Estate Agents
£ 450,000
Reviews
3 out of 5 stars
Seymours Estate Agents says ..
An appealing three-bedroom end terrace house well-presented throughout and set in a sought-after residential road within walking distance of Woking Town Centre and the mainline rail connection. With Woking Park just, a short distance away this house really does offer a great opportunity.
Property Oracle says ..
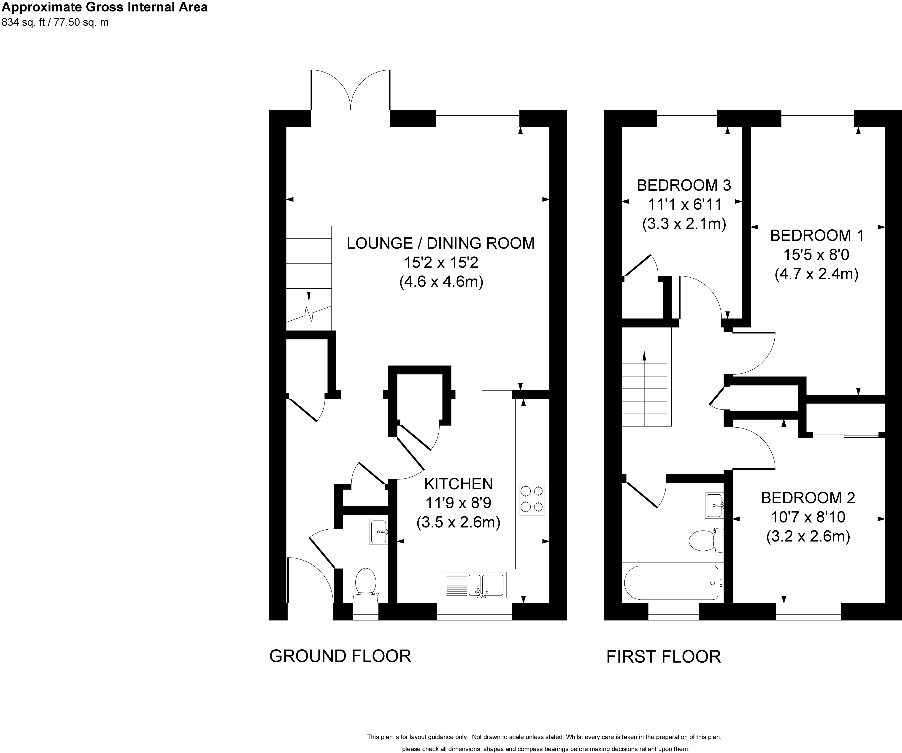
This property is located in Woking, Surrey, and is an end of terrace house. The area has an average house price of £515,846 and an average price per square foot of £521. The property is listed at £450,000, which is below the average for the area. However, more information about the square footage of this property is needed to accurately assess the price per square foot and compare it to the market average. The property appears to be in good condition based on the images provided, with a well-maintained garden. The location is convenient, with nearby transportation links and schools. More information is needed to give a complete analysis, particularly regarding the size of the property and plot.
Therefore, we give this property 7 / 10. *Disclaimer: This is our option and does constitute a recommendation or financial advice. Do your own research. *
- Price
- 7
- Condition
- 8
- Location
- 7
- Land
- 7
- Bedrooms
- 3
- Bathrooms
- 1
- Sqft (est)
- 577.50
The heatmap indicates the level of crime in the area. The color of the heatmap indicates the crime severity and recency.
Metrics Year-on-Year
- Average area value
- 943,000.00 £Increased by 128.77 %
- Est sale value
- 274,312.50 £Decreased by 7.23 %
- Average area rental value
- 1,665.00 £/moDecreased by 14.57 %
- Est letting value
- 0.00 £/moDecreased by 100.00 %
- Est rental Yield
- 2.12 %Decreased by 62.61 %
- Crime Rate
- 0.00 %
Agent Activity
Seymours Estate Agents created the listing.
Nearby Schools
| Name | Type | Ofsted | Distance |
|---|---|---|---|
| North West Surrey Short Stay School | Pupil Referral Unit | Good | 0.64 KM |
| Barnsbury Primary School And Nursery | Academy Converter | Good | 0.90 KM |
| Goldsworth Primary School | Academy Converter | 1.14 KM | |
| Westfield Primary School | Academy Converter | 1.22 KM | |
| Horsell Village School & Sure Start Children'S Centre | Children's Centre | 1.36 KM |
Images
Nearby Streets
| Name | Average Price | Average Sqft | Distance |
|---|---|---|---|
| Mount Hermon Road | £ 435,000 | 0 | 0.00 KM |
| Lucerne Close | £ 0 | 0 | 0.00 KM |
| Nankeville Terrace | £ 283,125 | 0 | 0.00 KM |
| Forge End | £ 0 | 0 | 0.00 KM |
| Percy Street | £ 0 | 0 | 0.00 KM |
Nearby Transport
| Name | NLC | TLC | Distance |
|---|---|---|---|
| Woking | 5685 | WOK | 1.33 KM |
| Worplesdon | 5686 | WPL | 3.04 KM |
| West Byfleet | 5684 | WBY | 7.44 KM |
| Brookwood | 5687 | BKO | 7.70 KM |
| London Road (Guildford) | 5632 | LRD | 7.85 KM |
Nearby Listings
| Address | Price | Type | Score | Distance |
|---|---|---|---|---|
| Hanover Court, Woking, Surrey, GU22 | £ 450,000 | BUY | 6 / 10 | 0.00 KM |
| Hanover Court, Midhope Road, Woking, Surrey, GU22 | £ 450,000 | BUY | 7 / 10 | 0.00 KM |
| Langley Walk, Woking, Surrey, GU22 | £ 235,000 | BUY | 5 / 10 | 0.06 KM |
| Langley Walk, Woking, Surrey, GU22 | £ 575,000 | BUY | 7 / 10 | 0.07 KM |
| West Hill Road, Woking, Surrey, GU22 | £ 250,000 | BUY | 6 / 10 | 0.09 KM |
Nearby Properties
| Address | Price | Distance |
|---|---|---|
| 6 Hanover Court | £ 300,000 | 0.01 KM |
| 12 Hanover Court | £ 292,000 | 0.01 KM |
| 11 Hanover Court | £ 475,000 | 0.01 KM |
| 3 Hanover Court | £ 490,000 | 0.01 KM |
| 2 Hanover Court | £ 420,000 | 0.01 KM |