AJ Dwellings says ..
For Sale: Charming Two-Bedroom Mid-Terrace Home in Dagenham
Property Oracle says ..
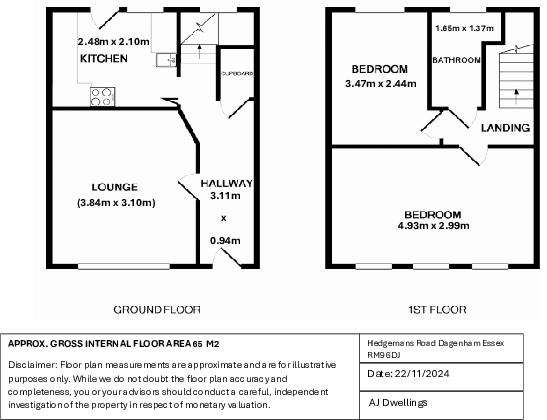
This two-bedroom terraced house in Goresbrook, Barking and Dagenham, is listed at £390,000. The property’s location is a key strength, offering proximity to well-regarded primary schools and a train station (Dagenham Dock), providing reasonable transport links. However, the condition of the property requires consideration. The available images suggest a need for some modernisation, particularly in the kitchen and bathroom. The kitchen appears dated, and the bathroom’s fixtures show signs of age. The flooring also seems somewhat dated. The garden, while present, appears relatively small and could benefit from landscaping. The lack of precise square footage data for both the house and the land makes a complete price evaluation challenging. However, by comparing to nearby listings, which show a wide price range from around £100,000 to over £400,000, the property’s price seems to be on the higher side considering its current condition and the need for potential renovations. Potential buyers should factor in renovation costs when assessing value. Overall, while the location and school proximity are strong selling points, the condition and a need for updating should be considered when making an offer.
Therefore, we give this property 5 / 10. *Disclaimer: This is our option and does constitute a recommendation or financial advice. Do your own research. *
- Price
- 6
- Condition
- 5
- Location
- 7
- Land
- 4
- Bedrooms
- 2
- Bathrooms
- 1
- Sqft (est)
- 699.65
The heatmap indicates the level of crime in the area. The color of the heatmap indicates the crime severity and recency.
Metrics Year-on-Year
- Average area value
- 362,000.00 £Increased by 7.30 %
- Est sale value
- 347,726.05 £Increased by 21.52 %
- Average area rental value
- 1,700.00 £/moDecreased by 7.81 %
- Est letting value
- 1,399.30 £/moUnchanged by 0.00 %
- Est rental Yield
- 5.64 %Decreased by 14.02 %
- Crime Rate
- 8.00 %Unchanged by 0.00 %
Agent Activity
AJ Dwellings created the listing.
Nearby Schools
| Name | Type | Ofsted | Distance |
|---|---|---|---|
| Godwin Primary School | Community School | Good | 0.20 KM |
| Thomas Arnold Primary School | Community School | Good | 0.71 KM |
| Parsloes Primary School | Community School | Good | 0.72 KM |
| Hopewell School | Other Independent Special School | Good | 0.78 KM |
| St Peter'S Catholic Primary School | Voluntary Aided School | Good | 1.04 KM |
Images
Nearby Streets
| Name | Average Price | Average Sqft | Distance |
|---|---|---|---|
| Richard Ryan Place | £ 0 | 0 | 0.00 KM |
| Cook Road | £ 0 | 0 | 0.00 KM |
| Studley Road | £ 407,500 | 0 | 0.00 KM |
| Saint Georges Road | £ 0 | 0 | 0.00 KM |
| Chequers Parade, Ripple Road | £ 0 | 0 | 0.00 KM |
Nearby Transport
| Name | NLC | TLC | Distance |
|---|---|---|---|
| Dagenham Dock | 7440 | DDK | 1.69 KM |
| Chadwell Heath | 6874 | CTH | 3.36 KM |
| Goodmayes | 6878 | GMY | 4.26 KM |
| Seven Kings | 6893 | SVK | 5.39 KM |
| Belvedere | 5092 | BVD | 5.49 KM |
Nearby Listings
| Address | Price | Type | Score | Distance |
|---|---|---|---|---|
| London, RM9 | £ 390,000 | BUY | 5 / 10 | 0.00 KM |
| Hedgemans Road, Dagenham | £ 375,000 | BUY | 7 / 10 | 0.02 KM |
| Dagenham, Essex | £ 220,000 | BUY | 6 / 10 | 0.07 KM |
| Hatfield Mews, Dagenham, London, RM9 | £ 380,000 | BUY | Unknown | 0.11 KM |
| Coleman Road, Dagenham | £ 380,000 | BUY | 5 / 10 | 0.15 KM |
Nearby Properties
| Address | Price | Distance |
|---|---|---|
| 151 Hedgemans Road | £ 314,000 | 0.02 KM |
| 121 Hedgemans Road | £ 149,995 | 0.02 KM |
| 169 Hedgemans Road | £ 309,000 | 0.02 KM |
| 139 Hedgemans Road | £ 215,000 | 0.02 KM |
| 159 Hedgemans Road | £ 59,995 | 0.02 KM |