North End Road, Fulham Broadway, London, SW6
By Foxtons
£ 675,000
Reviews
3 out of 5 stars
Foxtons says ..
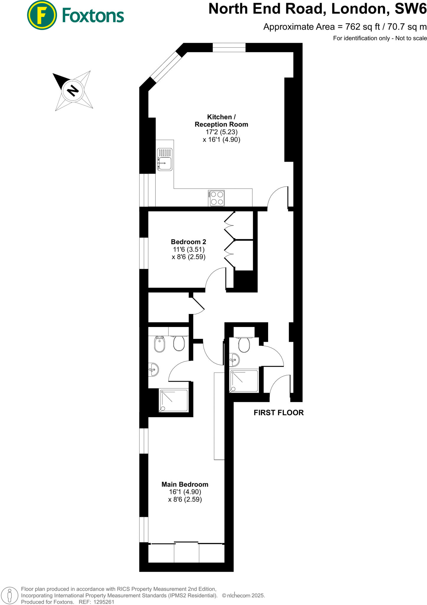
Set on the first floor, this wonderful 2 bedroom flat offers a bright and spacious open-plan reception room as well as 2 well-proportioned bedrooms with a main ensuite shower room and an ideal location.
Property Oracle says ..
This property is a two-bedroom, two-bathroom flat located on North End Road in Fulham Broadway, London. The flat is in good condition and has been recently renovated. The kitchen and bathrooms are modern and well-equipped. The property is well-located, close to Fulham Broadway tube station and several bus routes. There are also a number of schools and shops nearby. The property is also within easy reach of the amenities of Fulham and Chelsea. The average price per square foot for similar properties in the area is £868. This property is listed at £675,000 which is below the average price for the area. However, it is important to note that the property is smaller than the average property in the area. Overall, this property represents good value for money.
Therefore, we give this property 7 / 10. *Disclaimer: This is our option and does constitute a recommendation or financial advice. Do your own research. *
- Price
- 8
- Condition
- 9
- Location
- 9
- Land
- 3
- Bedrooms
- 2
- Bathrooms
- 2
- Sqft (est)
- 507.52
- Lot (est)
- 762.00
The heatmap indicates the level of crime in the area. The color of the heatmap indicates the crime severity and recency.
Metrics Year-on-Year
- Average area value
- 778,925.00 £Decreased by 20.14 %
- Est sale value
- 525,283.20 £Increased by 17.08 %
- Average area rental value
- 2,952.00 £/moIncreased by 25.08 %
- Est letting value
- 1,522.56 £/moIncreased by 50.00 %
- Est rental Yield
- 4.55 %Increased by 56.90 %
- Crime Rate
- 12.00 %Unchanged by 0.00 %
Agent Activity
Foxtons created the listing.
Nearby Schools
| Name | Type | Ofsted | Distance |
|---|---|---|---|
| Fulham Primary School | Academy Converter | Good | 0.34 KM |
| Psla Children'S Centre Services At Normand Croft Community School | Children's Centre Linked Site | 0.34 KM | |
| Normand Croft Community School For Early Years And Primary Education | Community School | Good | 0.40 KM |
| Kensington Prep School | Other Independent School | 0.69 KM | |
| Fulham Central Children'S Centre | Children's Centre | 0.70 KM |
Images
Nearby Streets
| Name | Average Price | Average Sqft | Distance |
|---|---|---|---|
| Epirus Road | £ 0 | 0 | 0.00 KM |
| Jervis Road | £ 0 | 0 | 0.00 KM |
| Thaxton Road | £ 0 | 0 | 0.00 KM |
| John Smith Avenue | £ 0 | 0 | 0.00 KM |
| Bishop's Road | £ 475,000 | 0 | 0.00 KM |
Nearby Transport
| Name | NLC | TLC | Distance |
|---|---|---|---|
| West Brompton | 8875 | WBP | 0.72 KM |
| Kensington (Olympia) | 3092 | KPA | 1.91 KM |
| Imperial Wharf | 9586 | IMW | 2.23 KM |
| Wandsworth Town | 5576 | WNT | 2.88 KM |
| Putney | 5603 | PUT | 3.00 KM |
Nearby Listings
| Address | Price | Type | Score | Distance |
|---|---|---|---|---|
| North End Road, Fulham Broadway, London, SW6 | £ 675,000 | BUY | 7 / 10 | 0.00 KM |
| North End Road, London, SW6 | £ 575,000 | BUY | 6 / 10 | 0.04 KM |
| Haldane Road, London | £ 525,000 | BUY | 6 / 10 | 0.08 KM |
| Crowther Close, Fulham, SW6 | £ 850,000 | BUY | 6 / 10 | 0.09 KM |
| Haldane Road, Fulham, SW6 | £ 550,000 | BUY | 6 / 10 | 0.09 KM |
Nearby Properties
| Address | Price | Distance |
|---|---|---|
| 385a North End Road | £ 210,000 | 0.02 KM |
| 375a North End Road | £ 2,255,000 | 0.02 KM |
| 355a North End Road | £ 246,000 | 0.08 KM |
| 357a North End Road | £ 250,000 | 0.09 KM |
| 8 Crowther Close | £ 710,000 | 0.09 KM |