Woodlands, Talywain, NP4
By Number One Real Estate
£ 150,000
Reviews
3 out of 5 stars
Number One Real Estate says ..
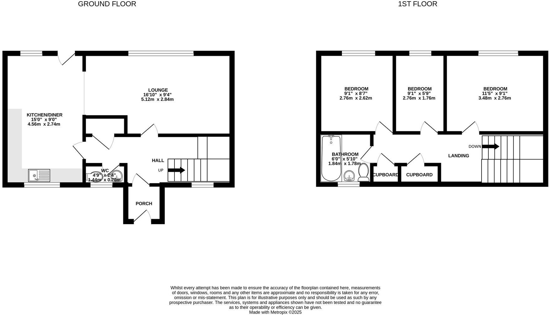
**GUIDE PRICE: £150,000 - £160,000**NO UPPER CHAIN**MID TERRACE**THREE BEDROOMS**LIVING ROOM**OPEN PLAN KITCHEN/DINER**CLOAKROOM**BATHROOM**FRONT AND REAR GARDEN SPACE**GATED DRIVEWAY TO REAR**
Property Oracle says ..
Therefore, we give this property 6 / 10. *Disclaimer: This is our option and does constitute a recommendation or financial advice. Do your own research. *
- Price
- 8
- Condition
- 7
- Location
- 6
- Land
- 5
- Bedrooms
- 3
- Bathrooms
- 1
- Sqft (est)
- 570.92
The heatmap indicates the level of crime in the area. The color of the heatmap indicates the crime severity and recency.
Metrics Year-on-Year
- Average area value
- 283,000.00 £Decreased by 21.70 %
- Est sale value
- 216,949.60 £Increased by 38.69 %
- Average area rental value
- 1,134.00 £/moIncreased by 19.24 %
- Est letting value
- 570.92 £/mo
- Est rental Yield
- 4.81 %Increased by 52.22 %
- Crime Rate
- 19.00 %Unchanged by 0.00 %
from 361,433.00 £
from 156,432.08 £
from 951.00 £/mo
from 0.00 £/mo
from 3.16 %
from 19.00 %
Agent Activity
Number One Real Estate created the listing.
Nearby Schools
| Name | Type | Ofsted | Distance |
|---|---|---|---|
| Garnteg Primary School | Welsh Establishment | 0.78 KM | |
| Ysgol Bryn Onnen | Welsh Establishment | 0.96 KM | |
| Abersychan Comprehensive School | Welsh Establishment | 1.06 KM | |
| Cwmffrwdoer Primary School | Welsh Establishment | 2.27 KM | |
| George Street Primary School | Welsh Establishment | 3.86 KM |
Images
Nearby Streets
| Name | Average Price | Average Sqft | Distance |
|---|---|---|---|
| Raglan Close | £ 99,950 | 0 | 0.00 KM |
| Church Road | £ 261,658 | 0 | 0.00 KM |
| Wellington Road | £ 198,998 | 0 | 0.00 KM |
| Gordon Road | £ 200,000 | 0 | 0.00 KM |
| Green Way | £ 0 | 0 | 0.00 KM |
Nearby Transport
| Name | NLC | TLC | Distance |
|---|---|---|---|
| Pontypool And New Inn | 3744 | PPL | 7.12 KM |
| Llanhilleth | 9916 | LTH | 8.04 KM |
Nearby Listings
| Address | Price | Type | Score | Distance |
|---|---|---|---|---|
| Woodlands, Talywain, NP4 | £ 150,000 | BUY | 6 / 10 | 0.00 KM |
| Woodlands, Talywain, Pontypool | £ 160,000 | BUY | 7 / 10 | 0.01 KM |
| Black Path, Talywain, NP4 | £ 220,000 | BUY | Unknown | 0.09 KM |
| Woodlands, Talywain, Pontypool | £ 225,000 | BUY | 6 / 10 | 0.12 KM |
| Commercial Close, Pontypool | £ 160,000 | BUY | 7 / 10 | 0.19 KM |
Nearby Properties
| Address | Price | Distance |
|---|---|---|
| 15 Woodlands | £ 70,000 | 0.03 KM |
| 19 Woodlands | £ 85,000 | 0.03 KM |
| 5 Commercial Close | £ 60,000 | 0.20 KM |
| 13 Commercial Close | £ 170,000 | 0.20 KM |
| 16 Commercial Close | £ 161,000 | 0.20 KM |