South Street, North Kelsey, Market Rasen, Lincolnshire, LN7
FI

South Street, North Kelsey, Market Rasen, Lincolnshire, LN7

By Fine & Country

£ 560,000

Reviews

3 out of 5 stars

Fine & Country says ..

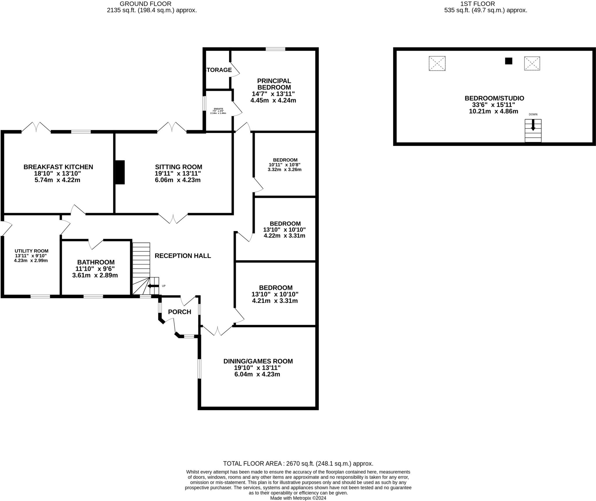
This unique property offers an idyllic lifestyle opportunity, set in grounds of 1.35 acres to include stables and paddock to suit an equestrian buyer. Thoughtfully designed and built, to provide spacious living areas conveniently arranged to a single level, with a 33' studio to the first floor.

Property Oracle says ..

This five-bedroom, two-bathroom bungalow in North Kelsey, Lincolnshire, presents a compelling opportunity for a family or those seeking a tranquil country lifestyle. The property appears well-maintained, with a modern and functional interior design. The kitchen features a large range cooker and ample cabinet space. The living areas are spacious, well-lit, and have a cosy atmosphere. The notable highlight of this property is the extensive land surrounding it. The expansive garden and paddock, suitable for equestrian pursuits, are extremely attractive features adding significant value. The proximity to a good-rated primary school and reasonably close access to train stations enhance the property’s appeal for families. Whilst a lack of further detail about the property and price per square foot data restricts a more precise evaluation, the overall combination of features suggests it is a well-priced property with considerable potential. A professional valuation and a full property survey are highly recommended before committing to a purchase.

Therefore, we give this property 7 / 10. *Disclaimer: This is our option and does constitute a recommendation or financial advice. Do your own research. *

Price
7
Condition
7
Location
7
Land
9
Bedrooms
5
Bathrooms
2
Sqft (est)
2,670.53

The heatmap indicates the level of crime in the area. The color of the heatmap indicates the crime severity and recency.

Metrics Year-on-Year

Average area value
302,567.00 £
Increased by 9.67 %
from 275,886.00 £
Est sale value
819,852.71 £
Decreased by 27.76 %
from 1,134,975.25 £
Average area rental value
1,147.00 £/mo
Increased by 17.88 %
from 973.00 £/mo
Est letting value
2,670.53 £/mo
Unchanged by 0.00 %
from 2,670.53 £/mo
Est rental Yield
4.55 %
Increased by 7.57 %
from 4.23 %
Crime Rate
22.00 %
Unchanged by 0.00 %
from 22.00 %

Agent Activity

  • Fine & Country created the listing.

Nearby Schools

NameTypeOfstedDistance
Kelsey Primary SchoolCommunity SchoolGood0.31 KM
Grasby All Saints Church Of England Primary SchoolVoluntary Controlled SchoolGood8.21 KM
Wrawby St Mary'S Cofe Primary SchoolAcademy Converter8.21 KM
St Barnabas Cofe Primary School, BarnetbyVoluntary Controlled SchoolGood8.66 KM
Demeter HouseOther Independent Special SchoolGood8.78 KM

Images

Picture No. 06 Picture No. 23 Picture No. 18 Picture No. 02 Picture No. 05 Picture No. 09 Picture No. 12 Picture No. 14 Picture No. 15 Picture No. 08 Picture No. 04 Picture No. 07 Picture No. 11 Picture No. 13 Picture No. 16 Picture No. 17 Picture No. 24 Picture No. 01 Picture No. 21 Picture No. 19 Picture No. 22 Picture No. 20

Nearby Streets

NameAverage PriceAverage SqftDistance
Mill Lane £ 000.00 KM
Little London Lane £ 000.00 KM

Nearby Transport

NameNLCTLCDistance
Brigg6464BGG8.45 KM
Barnetby6406BTB8.69 KM

Nearby Listings

AddressPriceTypeScoreDistance
South Street, Market Rasen, LN7 £ 290,000BUY6 / 100.00 KM
South Street, North Kelsey, Market Rasen, Lincolnshire, LN7 £ 560,000BUY7 / 100.00 KM
South Street, North Kelsey, Market Rasen, Lincolnshire, LN7 £ 825,000BUYUnknown0.00 KM
South Street, North Kelsey, Lincolnshire, LN7 £ 450,000BUY7 / 100.00 KM
Middle Street, North Kelsey, Lincolnshire, LN7 £ 350,000BUY7 / 100.15 KM

Nearby Properties

AddressPriceDistance
The Stables £ 155,0000.01 KM
Barn Cottage £ 650,0000.01 KM
Church Farm House £ 315,0000.01 KM
The Willows £ 500,0000.01 KM
School House £ 290,0000.01 KM