Sheffield Close, Warrington, WA5
By McGowan Housing
£ 190,000
Reviews
2 out of 5 stars
McGowan Housing says ..
Buy-to-Let Opportunity | Long Term Tenant Currently Situated | 3 Bedroom End of Terrace House | Three Piece Bathroom | Garden Ground Space | Prime Rental Location Within Warrington
Property Oracle says ..
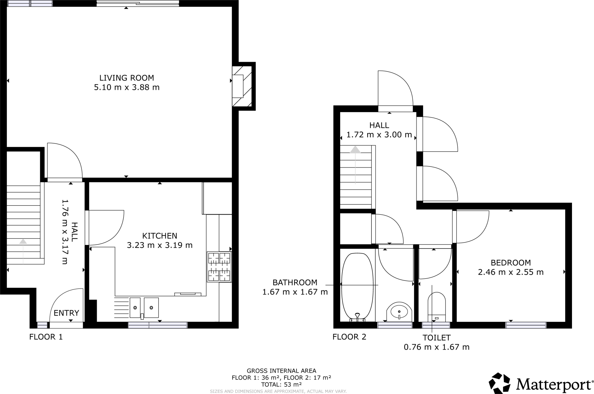
This is a three-bedroom end-of-terrace property located in Great Sankey, Warrington. The property is in need of renovation, but it is located in a good area and has a small garden. The property is listed for £190,000, which is below the average price for the area. The property is located close to local schools and Warrington West train station.
Therefore, we give this property 5 / 10. *Disclaimer: This is our option and does constitute a recommendation or financial advice. Do your own research. *
- Price
- 7
- Condition
- 3
- Location
- 7
- Land
- 4
- Bedrooms
- 3
- Bathrooms
- 1
The heatmap indicates the level of crime in the area. The color of the heatmap indicates the crime severity and recency.
Metrics Year-on-Year
- Average area value
- 230,000.00 £Decreased by 0.66 %
- Average area rental value
- 841.00 £/moDecreased by 14.96 %
- Est rental Yield
- 4.39 %Decreased by 14.42 %
- Crime Rate
- 21.00 %Unchanged by 0.00 %
Agent Activity
McGowan Housing created the listing.
Nearby Schools
| Name | Type | Ofsted | Distance |
|---|---|---|---|
| Sankey Valley St James Church Of England Primary School | Voluntary Aided School | Good | 0.22 KM |
| St Gregory'S Catholic High School | Voluntary Aided School | Good | 0.89 KM |
| Chapelford Village Primary School | Academy Converter | 1.22 KM | |
| Westbrook Old Hall Primary School | Academy Converter | 1.41 KM | |
| Evelyn Street Community Primary School | Academy Converter | 1.43 KM |
Images
Nearby Streets
| Name | Average Price | Average Sqft | Distance |
|---|---|---|---|
| Rosemary Close | £ 250,000 | 0 | 0.00 KM |
| Buckingham Drive | £ 249,200 | 0 | 0.00 KM |
| Wheatcroft Close | £ 304,983 | 0 | 0.00 KM |
| Worcester Close | £ 0 | 0 | 0.00 KM |
| Rochester Close | £ 0 | 0 | 0.00 KM |
Nearby Transport
| Name | NLC | TLC | Distance |
|---|---|---|---|
| Warrington West | 6583 | WAW | 1.09 KM |
| Sankey For Penketh | 2388 | SNK | 2.39 KM |
| Warrington Bank Quay | 2384 | WBQ | 2.98 KM |
| Warrington Central | 2390 | WAC | 3.96 KM |
| Earlestown | 2292 | ERL | 6.83 KM |
Nearby Listings
| Address | Price | Type | Score | Distance |
|---|---|---|---|---|
| Sheffield Close, Warrington, WA5 | £ 190,000 | BUY | 5 / 10 | 0.00 KM |
| Sheffield Close, Great Sankey, Warrington, Cheshire, WA5 | £ 180,000 | BUY | 5 / 10 | 0.00 KM |
| Sheffield Close, Great Sankey, Warrington, WA5 | £ 70,000 | BUY | 6 / 10 | 0.01 KM |
| Hurley Close WA5 | £ 220,000 | BUY | 6 / 10 | 0.11 KM |
| Winchester Avenue, Great Sankey, Warrington | £ 190,000 | BUY | 7 / 10 | 0.13 KM |
Nearby Properties
| Address | Price | Distance |
|---|---|---|
| 20 Sheffield Close | £ 110,000 | 0.00 KM |
| 11 Sheffield Close | £ 65,000 | 0.00 KM |
| 9 Sheffield Close | £ 50,000 | 0.00 KM |
| 24 Sheffield Close | £ 107,000 | 0.00 KM |
| 31 Sheffield Close | £ 37,000 | 0.00 KM |