Sagecroft Road, Thatcham, RG18, Berkshire, RG18
By Chancellors
£ 355,000
Reviews
3 out of 5 stars
Chancellors says ..
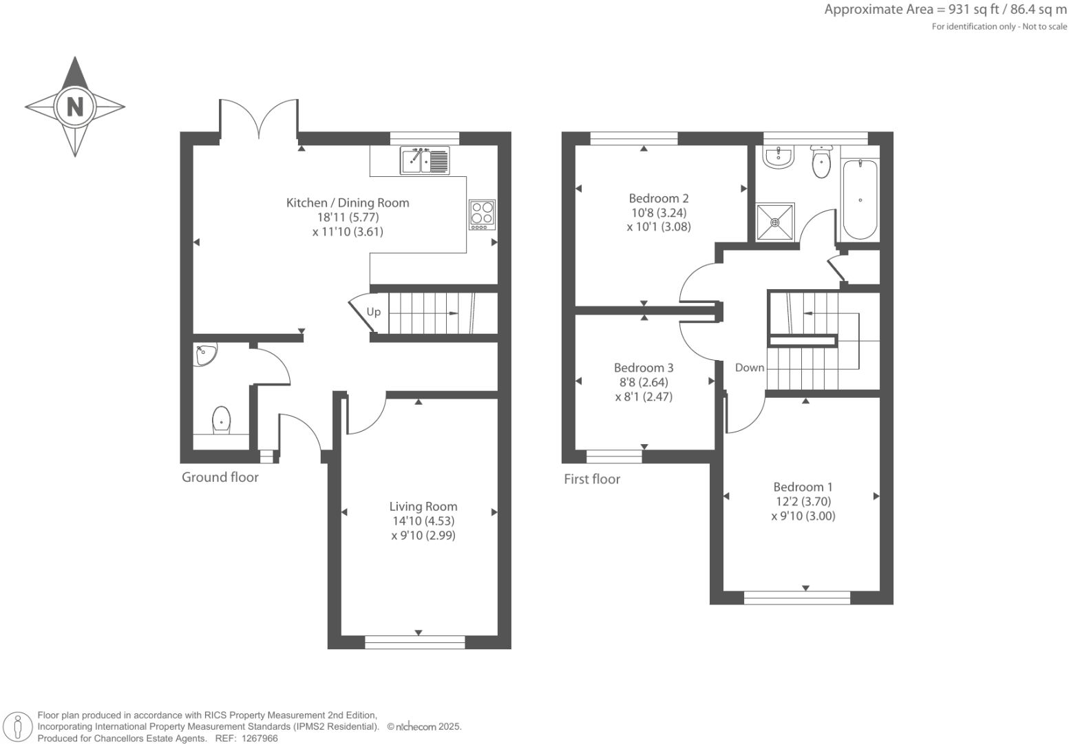
Offered to the market is this three bedroom terraced property. No Onward Chain ideal for first time buyers and investors.On entry there is a reception room leading to downstairs WC and kitchen diner leading into enclosed garden. Upstairs three bedrooms and a family bathroom. Garage and parking
Property Oracle says ..
This three-bedroom terraced house in Thatcham, Berkshire is listed at £355,000. The property benefits from a good location, with nearby schools and transportation links. While the images show the property to be in need of some modernisation and updating, the presence of a garden is a positive feature. Compared to the average price per square foot in the area (£428), the listing price may be slightly below average, though more information on the property’s square footage would be needed to give a definitive assessment. The property appears to be well-maintained, but some cosmetic improvements would likely enhance its value.
Therefore, we give this property 7 / 10. *Disclaimer: This is our option and does constitute a recommendation or financial advice. Do your own research. *
- Price
- 7
- Condition
- 6
- Location
- 8
- Land
- 7
- Bedrooms
- 3
- Bathrooms
- 0
- Sqft (est)
- 931.00
The heatmap indicates the level of crime in the area. The color of the heatmap indicates the crime severity and recency.
Metrics Year-on-Year
- Average area value
- 456,667.00 £Increased by 7.33 %
- Est sale value
- 447,811.00 £Increased by 0.42 %
- Average area rental value
- 1,375.00 £/moIncreased by 25.00 %
- Est letting value
- 931.00 £/moUnchanged by 0.00 %
- Est rental Yield
- 3.61 %Increased by 16.45 %
- Crime Rate
- 1.00 %Unchanged by 0.00 %
Agent Activity
Chancellors created the listing.
Nearby Schools
| Name | Type | Ofsted | Distance |
|---|---|---|---|
| Central Family Hub - Thatcham | Children's Centre | 0.03 KM | |
| Thatcham Park Cofe Primary | Voluntary Controlled School | Good | 0.30 KM |
| Whitelands Park Primary School | Academy Sponsor Led | Good | 0.64 KM |
| Spurcroft Primary School | Community School | Good | 1.40 KM |
| St Finian'S Catholic Primary School | Voluntary Aided School | Good | 1.46 KM |
Images
Nearby Streets
| Name | Average Price | Average Sqft | Distance |
|---|---|---|---|
| Whitelands Road | £ 347,500 | 0 | 0.00 KM |
| Farmers Gate | £ 0 | 0 | 0.00 KM |
| Kipling Close | £ 385,000 | 0 | 0.00 KM |
| Bluecoats | £ 254,000 | 0 | 0.00 KM |
| Brownsfield Road | £ 0 | 0 | 0.00 KM |
Nearby Transport
| Name | NLC | TLC | Distance |
|---|---|---|---|
| Thatcham | 3152 | THA | 2.51 KM |
| Newbury Racecourse | 3071 | NRC | 5.55 KM |
| Newbury | 3074 | NBY | 7.19 KM |
| Midgham | 3159 | MDG | 9.12 KM |
Nearby Listings
| Address | Price | Type | Score | Distance |
|---|---|---|---|---|
| Sagecroft Road, Thatcham, RG18, Berkshire, RG18 | £ 355,000 | BUY | 7 / 10 | 0.00 KM |
| Heather Drive, Thatcham, RG18 | £ 400,000 | BUY | Unknown | 0.16 KM |
| Heather Drive, Thatcham, Berkshire, RG18 | £ 515,000 | BUY | 7 / 10 | 0.16 KM |
| Heather Drive, Thatcham, Berkshire, RG18 | £ 450,000 | BUY | Unknown | 0.18 KM |
| Heather Drive, Thatcham, RG18 | £ 400,000 | BUY | 7 / 10 | 0.20 KM |
Nearby Properties
| Address | Price | Distance |
|---|---|---|
| 58 Park Lane | £ 375,000 | 0.04 KM |
| 72 Park Lane | £ 390,000 | 0.04 KM |
| 88 Park Lane | £ 558,500 | 0.04 KM |
| 86 Park Lane | £ 245,000 | 0.04 KM |
| 84 Park Lane | £ 245,000 | 0.04 KM |