haart says ..
Development Opportunity, If you are searching for a chance to build your own home or an investor who's looking to take your investment to the next level with Development this is a perfect opportunity
Property Oracle says ..
This property located on Becksitch Lane, Belper, presents a mixed bag of opportunities and challenges. It’s a three-bedroom semi-detached house situated in a generally desirable location within easy reach of local amenities, good schools, and transport links. The proximity to the Peak District National Park is an added attraction for those seeking a balance between urban convenience and natural beauty. However, the property’s internal condition is significantly dated. The current presentation suggests a need for considerable modernisation and refurbishment before the property can reach its full potential. While the garden is sizeable, including a greenhouse and outbuildings, its overall state of upkeep is not evident from the provided photos. The lack of precise square footage makes direct comparisons with similar properties in the area difficult. The listing price of £300,000 appears to be within the general range for this area and property type, but the condition of the property and the need for improvements needs to be taken into account. Overall, this property would suit a buyer with the resources, time, and inclination to complete a substantial refurbishment, taking advantage of both its position and the space available. The absence of detailed property information, including exact square footage, hampers a more conclusive assessment.
Therefore, we give this property 6 / 10. *Disclaimer: This is our option and does constitute a recommendation or financial advice. Do your own research. *
- Price
- 7
- Condition
- 4
- Location
- 7
- Land
- 6
- Bedrooms
- 3
- Bathrooms
- 1
The heatmap indicates the level of crime in the area. The color of the heatmap indicates the crime severity and recency.
Metrics Year-on-Year
- Average area value
- 178,750.00 £Decreased by 27.19 %
- Average area rental value
- 583.00 £/moDecreased by 41.05 %
- Est rental Yield
- 3.91 %Decreased by 19.05 %
- Crime Rate
- 8.00 %Unchanged by 0.00 %
Agent Activity
haart created the listing.
Nearby Schools
| Name | Type | Ofsted | Distance |
|---|---|---|---|
| Long Row Primary School | Community School | Good | 1.34 KM |
| Herbert Strutt Primary School | Community School | Good | 1.42 KM |
| Milford Primary School | Community School | Good | 1.48 KM |
| St Elizabeth'S Catholic Voluntary Academy | Academy Converter | 1.63 KM | |
| St John'S Cofe Primary School And Nursery | Voluntary Controlled School | Good | 1.96 KM |
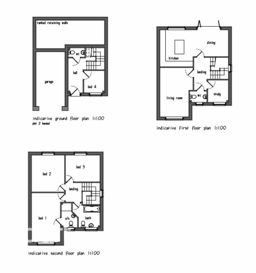
Images
Nearby Streets
| Name | Average Price | Average Sqft | Distance |
|---|---|---|---|
| Highfield Road | £ 0 | 0 | 0.00 KM |
| Melbourne Close | £ 235,000 | 0 | 0.00 KM |
| Derwent Street | £ 139,950 | 0 | 0.00 KM |
| St. Laurence Gardens | £ 0 | 0 | 0.00 KM |
| Saint Laurence Gardens | £ 165,921 | 0 | 0.00 KM |
Nearby Transport
| Name | NLC | TLC | Distance |
|---|---|---|---|
| Belper | 1679 | BLP | 0.86 KM |
| Duffield | 1691 | DFI | 3.11 KM |
| Ambergate | 1678 | AMB | 4.95 KM |
| Whatstandwell | 1585 | WTS | 7.88 KM |
Nearby Listings
| Address | Price | Type | Score | Distance |
|---|---|---|---|---|
| Becksitch Lane, BELPER | £ 325,000 | BUY | Unknown | 0.06 KM |
| Holbrook Road, Belper | £ 325,000 | BUY | 6 / 10 | 0.06 KM |
| Holbrook Road, Belper | £ 265,000 | BUY | 7 / 10 | 0.12 KM |
| Holbrook Road, Belper | £ 170,000 | BUY | 7 / 10 | 0.12 KM |
| Holbrook Road, Belper | £ 260,000 | BUY | 7 / 10 | 0.12 KM |
Nearby Properties
| Address | Price | Distance |
|---|---|---|
| 14 Becksitch Lane | £ 490,000 | 0.11 KM |
| 9 Becksitch Lane | £ 139,000 | 0.11 KM |
| 31 Becksitch Lane | £ 240,000 | 0.11 KM |
| 19a Becksitch Lane | £ 428,000 | 0.11 KM |
| 21a Becksitch Lane | £ 270,000 | 0.11 KM |