Clavell Close, Rainham, Kent, ME8
Robinson Michael & Jackson logo

Clavell Close, Rainham, Kent, ME8

By Robinson Michael & Jackson

£ 350,000

Reviews

3 out of 5 stars

Robinson Michael & Jackson says ..

Be the first view this bright, airy and modern three bed terrace property in the heart of Parkwood. Perfect for a growing family with local shops. excellent schools and great motorway links close by. The property offers plenty of space including a fully modern fitted kitchen, large lou...

Property Oracle says ..

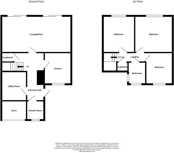
This three-bedroom, two-bathroom property located in Clavell Close, Rainham, Kent, is presented in good condition. The images showcase a modern kitchen with contemporary appliances and updated bathrooms. The living spaces appear spacious and well-lit. The property benefits from a garden, the size of which isn’t specified but appears to be reasonably sized for a property of this type. The location is convenient, with nearby primary schools rated ‘Good’ by Ofsted and Rainham train station providing good transport links. The list price of £350,000 appears to be in line with other properties in the area, though a precise price-per-square-foot analysis is impossible due to missing data in nearby listings. A full survey would be recommended to fully assess the property’s condition and any potential maintenance needs. Overall, this property presents a reasonable option for families or those seeking a well-presented home in a convenient location.

Therefore, we give this property 6 / 10. *Disclaimer: This is our option and does constitute a recommendation or financial advice. Do your own research. *

Price
7
Condition
8
Location
7
Land
4
Bedrooms
3
Bathrooms
2
Sqft (est)
780.00

The heatmap indicates the level of crime in the area. The color of the heatmap indicates the crime severity and recency.

Metrics Year-on-Year

Average area value
405,000.00 £
Increased by 14.70 %
from 353,082.00 £
Est sale value
309,660.00 £
Increased by 5.03 %
from 294,840.00 £
Average area rental value
1,825.00 £/mo
Increased by 1.45 %
from 1,799.00 £/mo
Est letting value
780.00 £/mo
Unchanged by 0.00 %
from 780.00 £/mo
Est rental Yield
5.41 %
Decreased by 11.46 %
from 6.11 %
Crime Rate
21.00 %
Unchanged by 0.00 %
from 21.00 %

Agent Activity

  • Robinson Michael & Jackson created the listing.

Nearby Schools

NameTypeOfstedDistance
St Augustine Of Canterbury Catholic Primary SchoolVoluntary Aided SchoolGood0.31 KM
Deanwood Primary SchoolAcademy ConverterGood0.76 KM
Parkwood Primary SchoolCommunity SchoolGood0.78 KM
Deanwood Children'S CentreChildren's Centre0.79 KM
Fairview Community Primary SchoolCommunity SchoolGood1.46 KM

Images

Picture No. 01 Picture No. 17 Picture No. 18 Picture No. 08 Picture No. 13 Picture No. 15 Picture No. 20 Picture No. 04 Picture No. 11 Picture No. 02 Picture No. 10 Picture No. 09 Picture No. 16 Picture No. 19 Picture No. 26 Picture No. 27 Picture No. 28 Picture No. 29 Picture No. 30 Picture No. 31 Picture No. 32 Picture No. 33 Picture No. 34 Picture No. 35 Picture No. 36 Picture No. 37 Picture No. 38 Picture No. 39

Nearby Streets

NameAverage PriceAverage SqftDistance
M2 £ 000.00 KM
Honeybee Glade £ 275,00000.00 KM
Sunningdale Close £ 375,00000.00 KM
Wentworth Drive £ 400,00000.00 KM
Tavistock Close £ 400,00000.00 KM

Nearby Transport

NameNLCTLCDistance
Rainham (Kent)5177RAI3.09 KM
Gillingham (Kent)5169GLM7.36 KM
Bearsted5091BSD7.68 KM
Newington5175NGT7.84 KM
Hollingbourne5141HBN9.09 KM

Nearby Listings

AddressPriceTypeScoreDistance
Clavell Close, Rainham, Kent, ME8 £ 350,000BUY6 / 100.00 KM
Three Bedroom Semi Detached Home In A Sought After Parkwood Position Close To Schools and Motorway Links £ 375,000BUY8 / 100.12 KM
Sandringham Road, Gillingham, ME8 £ 425,000BUY8 / 100.12 KM
Stirling Close, Gillingham, ME8 £ 400,000BUY7 / 100.13 KM
Stirling Close, Rainham £ 280,000BUYUnknown0.17 KM

Nearby Properties

AddressPriceDistance
98 Burnham Walk £ 124,0000.03 KM
94 Burnham Walk £ 232,5000.03 KM
108 Burnham Walk £ 249,5000.03 KM
102 Burnham Walk £ 240,0000.03 KM
93 Burnham Walk £ 275,0000.09 KM