Eldon Road, Wood Green N22
By David Astburys Ltd
£ 550,000
Reviews
3 out of 5 stars
David Astburys Ltd says ..
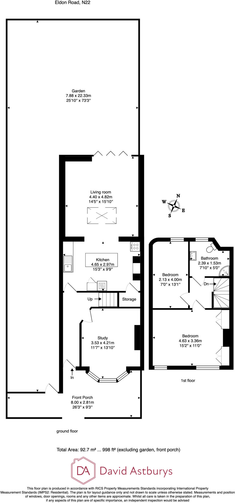
End Of Terrace House | Circa 1000 Square Feet | Extended Kitchen Diner | Large Garden | Unconverted Loft Space | Chain Free | Ground Floor Reception Room
Property Oracle says ..
This is a two-bedroom end-of-terrace house located on Eldon Road in Wood Green, London. The property is in generally good condition and has a modern kitchen and bathroom. The property also benefits from a good-sized garden. The property is located in a well-connected area of London with access to good schools and amenities. The property is listed for £550,000, which is slightly above the average price for properties in the area. Overall, this is a desirable property in a good location.
Therefore, we give this property 6 / 10. *Disclaimer: This is our option and does constitute a recommendation or financial advice. Do your own research. *
- Price
- 6
- Condition
- 7
- Location
- 7
- Land
- 7
- Bedrooms
- 2
- Bathrooms
- 1
The heatmap indicates the level of crime in the area. The color of the heatmap indicates the crime severity and recency.
Metrics Year-on-Year
- Average area value
- 489,165.00 £Increased by 16.57 %
- Average area rental value
- 1,679.00 £/moDecreased by 8.30 %
- Est rental Yield
- 4.12 %Decreased by 21.37 %
- Crime Rate
- 4.00 %Unchanged by 0.00 %
Agent Activity
David Astburys Ltd created the listing.
Nearby Schools
| Name | Type | Ofsted | Distance |
|---|---|---|---|
| Lordship Lane Primary School | Community School | Good | 0.38 KM |
| Riverside School | Community Special School | Good | 0.42 KM |
| Noel Park Children'S Centre | Children's Centre | 0.48 KM | |
| Woodside High School | Academy Converter | Outstanding | 0.55 KM |
| Footsteps Trust | Other Independent School | Good | 0.59 KM |
Images
Nearby Streets
| Name | Average Price | Average Sqft | Distance |
|---|---|---|---|
| Liberty Mews | £ 0 | 0 | 0.00 KM |
| Erin Mews | £ 650,000 | 0 | 0.00 KM |
| Elm Road | £ 525,000 | 0 | 0.00 KM |
| Normans Close | £ 460,000 | 0 | 0.00 KM |
| Coldham Court | £ 300,000 | 0 | 0.00 KM |
Nearby Transport
| Name | NLC | TLC | Distance |
|---|---|---|---|
| Palmers Green | 6021 | PAL | 2.41 KM |
| Hornsey | 6015 | HRN | 2.44 KM |
| Alexandra Palace | 6025 | AAP | 2.68 KM |
| Bowes Park | 6027 | BOP | 2.74 KM |
| Harringay Green Lanes | 7401 | HRY | 2.75 KM |
Nearby Listings
| Address | Price | Type | Score | Distance |
|---|---|---|---|---|
| Eldon Road, Wood Green N22 | £ 550,000 | BUY | 6 / 10 | 0.00 KM |
| Eldon Road, Wood Green N22 | £ 620,000 | BUY | Unknown | 0.00 KM |
| Perth Road, London, N22 | £ 750,000 | BUY | 5 / 10 | 0.09 KM |
| Eldon Road, London, N22 | £ 550,000 | BUY | 5 / 10 | 0.11 KM |
| Homecroft Road, Wood Green, N22 | £ 525,000 | BUY | Unknown | 0.18 KM |
Nearby Properties
| Address | Price | Distance |
|---|---|---|
| 97 Eldon Road | £ 445,000 | 0.00 KM |
| 67 Eldon Road | £ 472,000 | 0.00 KM |
| 61 Eldon Road | £ 610,000 | 0.00 KM |
| 55 Eldon Road | £ 196,000 | 0.00 KM |
| 87 Eldon Road | £ 405,000 | 0.00 KM |