Watchetts Road, Camberley, Surrey
WA

Watchetts Road, Camberley, Surrey

By Waterfords

£ 390,000

Reviews

2 out of 5 stars

Waterfords says ..

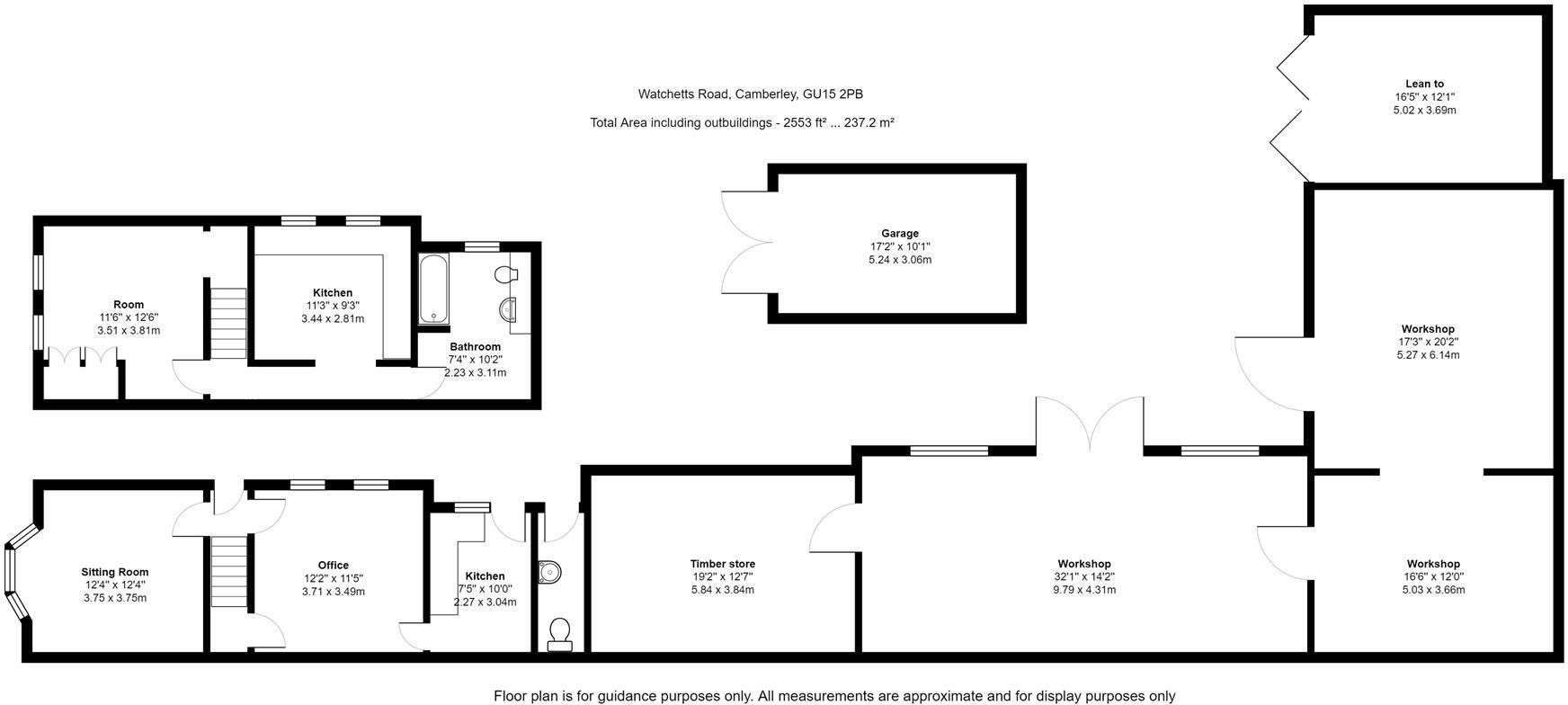
FOR SALE BY PUBLIC AUCTION with 24/7 Property Auctions - An opportunity to secure a Victorian detached property with mixed commercial and residential status comprising a first floor residential flat and ground floor office space with adjoining barns and outbuildings which totals 2500 sq. foot.

Property Oracle says ..

This property on Watchetts Road, Camberley, presents a mixed bag. Its location in Camberley, Surrey offers access to good schools and transport links, including Camberley train station within a reasonable distance. However, the property’s condition is a major drawback. The photos clearly indicate that extensive modernisation and refurbishment are required throughout. The interior is dated and requires updating to meet modern standards. The kitchen and bathrooms are notably outdated and would require a full refit. The property also has a number of outbuildings including a workshop and garage which appear to be in a state of disrepair, suggesting additional costs for maintenance and potential renovation. The overall size of the plot of land is not provided. Given this, it is difficult to ascertain the potential of the land but is does not appear to provide a significant amount of space. The asking price of £390,000 appears slightly high compared to other nearby listings when the required renovation work is factored in. Potential buyers should budget for a substantial renovation project, taking into account additional costs like planning permissions and professional services. While the location is a significant plus, the overall condition and the needed investment should be carefully weighed against the asking price before any commitment is made. A thorough survey is strongly recommended before making an offer.

Therefore, we give this property 4 / 10. *Disclaimer: This is our option and does constitute a recommendation or financial advice. Do your own research. *

Price
6
Condition
4
Location
7
Land
2
Bedrooms
1
Bathrooms
2
Sqft (est)
2,553.20

The heatmap indicates the level of crime in the area. The color of the heatmap indicates the crime severity and recency.

Metrics Year-on-Year

Average area value
753,333.00 £
Increased by 10.51 %
from 681,667.00 £
Est sale value
1,406,813.20 £
Increased by 20.83 %
from 1,164,259.20 £
Average area rental value
1,548.00 £/mo
Decreased by 16.95 %
from 1,864.00 £/mo
Est letting value
2,553.20 £/mo
Unchanged by 0.00 %
from 2,553.20 £/mo
Est rental Yield
2.47 %
Decreased by 24.70 %
from 3.28 %
Crime Rate
11.00 %
Unchanged by 0.00 %
from 11.00 %

Agent Activity

  • Waterfords created the listing.

Nearby Schools

NameTypeOfstedDistance
South Camberley Primary And Nursery SchoolAcademy Converter0.55 KM
Lyndhurst SchoolOther Independent School0.71 KM
Kings International CollegeFoundation SchoolGood0.73 KM
The Orchard Sure Start Children'S CentreChildren's Centre0.75 KM
South Camberley Sure Start Children'S CentreChildren's Centre Linked Site1.65 KM

Images

IMG_0287.jpeg IMG_0269.jpeg IMG_0264.jpeg IMG_0285.jpeg IMG_0279.jpeg IMG_0273.jpeg IMG_0276.jpeg IMG_0266.jpeg IMG_0274.jpeg IMG_0277.jpeg IMG_0270.jpeg IMG_0272.jpeg IMG_0278.jpeg IMG_0280.jpeg IMG_0281.jpeg IMG_0282.jpeg IMG_0283.jpeg 1.jpg WhatsApp Image 2025-03-06 at 14.05.14_8b28a24d.jpg 2.jpg WhatsApp Image 2025-03-06 at 14.05.14_a34a20df.jpg WhatsApp Image 2025-03-06 at 14.05.14_7d499388.jpg WhatsApp Image 2025-03-06 at 14.05.14_5f4f4b6b.jpg WhatsApp Image 2025-03-06 at 14.05.14_adc554f2.jpg WhatsApp Image 2025-03-06 at 14.05.14_8817d949.jpg WhatsApp Image 2025-03-06 at 14.05.14_2dda8840.jpg WhatsApp Image 2025-03-06 at 14.05.14_9f3b5d1e.jpg WhatsApp Image 2025-03-06 at 14.05.14_6a9781c1.jpg WhatsApp Image 2025-03-06 at 14.05.14_8a3c9874.jpg WhatsApp Image 2025-03-06 at 14.05.14_325fe30d.jpg WhatsApp Image 2025-03-06 at 14.05.14_b769b76f.jpg WhatsApp Image 2025-03-06 at 14.05.14_c3745e88.jpg WhatsApp Image 2025-03-06 at 14.05.14_ef7a9e82.jpg WhatsApp Image 2025-03-06 at 14.05.14_efbd9c6f.jpg WhatsApp Image 2025-03-06 at 14.05.14_f2ec9a38.jpg WhatsApp Image 2025-03-06 at 14.05.14_fb5e6112.jpg WhatsApp Image 2025-03-06 at 14.05.14_b3b054a1.jpg

Nearby Streets

NameAverage PriceAverage SqftDistance
Watchetts Park Path £ 000.00 KM
Alexandra Avenue £ 235,00000.00 KM
Shelley Court £ 000.00 KM
Charles Street cycle path £ 185,00000.00 KM
York Terrace Lane £ 000.00 KM

Nearby Transport

NameNLCTLCDistance
Camberley5682CAM1.40 KM
Frimley5683FML1.94 KM
Blackwater5625BAW2.58 KM
Farnborough North5688FNN3.12 KM
Farnborough (Main)5521FNB3.50 KM

Nearby Listings

AddressPriceTypeScoreDistance
Watchetts Road, Camberley, Surrey £ 390,000BUY4 / 100.00 KM
Watchetts Road, Camberley, Surrey £ 340,000BUY6 / 100.01 KM
Watchetts Road, Camberley £ 200,000BUY6 / 100.02 KM
Camberley, Surrey, GU15 £ 475,000BUYUnknown0.04 KM
Gordon Avenue, Camberley, Surrey, GU15 £ 630,000BUY6 / 100.06 KM

Nearby Properties

AddressPriceDistance
195 Gordon Avenue £ 330,0000.04 KM
203 Gordon Avenue £ 420,0000.04 KM
211 Gordon Avenue £ 180,0000.04 KM
191 Gordon Avenue £ 250,0000.04 KM
165 Gordon Avenue £ 235,0000.04 KM