Springhead Parkway, Northfleet, Gravesend, Kent, DA11
RO

Springhead Parkway, Northfleet, Gravesend, Kent, DA11

By Robinson Michael & Jackson

£ 450,000

Reviews

3 out of 5 stars

Robinson Michael & Jackson says ..

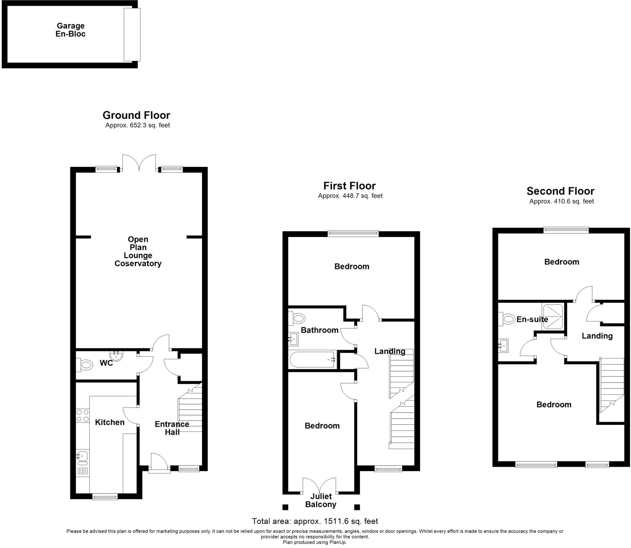
Located in the highly sought-after Springhead Parkway development in Gravesend, this beautifully presented 4-bedroom, 2-bathroom townhouse offers a contemporary lifestyle with space, comfort, and style. Perfectly suited for growing families or those looking for a spacious home with room to entert...

Property Oracle says ..

This four-bedroom terraced house is located in Northfleet, Gravesend, with easy access to Ebbsfleet International and local train stations. The property appears to be in excellent condition, with modern fixtures and fittings throughout. The images show a well-maintained interior and exterior, including a small, enclosed garden. While the plot size is relatively small, it is sufficient for a family home. The list price of £450,000 is higher than the average price for the area (£303,694), but given the property’s condition, size, and location, it could be considered reasonable for the right buyer. Nearby comparable properties support this assessment, although precise square footage data for those properties is missing, making a definitive comparison difficult.

Therefore, we give this property 7 / 10. *Disclaimer: This is our option and does constitute a recommendation or financial advice. Do your own research. *

Price
7
Condition
9
Location
8
Land
6
Bedrooms
4
Bathrooms
2
Sqft (est)
1,462.30
Lot (est)
1,511.60

The heatmap indicates the level of crime in the area. The color of the heatmap indicates the crime severity and recency.

Metrics Year-on-Year

Average area value
302,655.00 £
Increased by 6.63 %
from 283,835.00 £
Est sale value
516,191.90 £
Increased by 4.75 %
from 492,795.10 £
Average area rental value
1,528.00 £/mo
Increased by 7.53 %
from 1,421.00 £/mo
Est letting value
1,462.30 £/mo
Unchanged by 0.00 %
from 1,462.30 £/mo
Est rental Yield
6.06 %
Increased by 0.83 %
from 6.01 %
Crime Rate
10.00 %
Unchanged by 0.00 %
from 10.00 %

Agent Activity

  • Robinson Michael & Jackson created the listing.

Nearby Schools

NameTypeOfstedDistance
Springhead Park Primary SchoolFree Schools0.04 KM
St Joseph'S Catholic Primary School, NorthfleetAcademy Converter1.16 KM
Northfleet School For GirlsFoundation SchoolGood1.35 KM
Little Gems Children'S CentreChildren's Centre1.37 KM
Lawn Primary SchoolFoundation SchoolGood1.37 KM

Images

Picture No. 07 Picture No. 14 Picture No. 11 Picture No. 27 Picture No. 32 Picture No. 29 Picture No. 13 Picture No. 17 Picture No. 24 Picture No. 25 Picture No. 26 Picture No. 09 Picture No. 12 Picture No. 10 Picture No. 21 Picture No. 18 Picture No. 16 Picture No. 20 Picture No. 23 Picture No. 05 Picture No. 06 Picture No. 08 Picture No. 15 Picture No. 22 Picture No. 19 Picture No. 28 Picture No. 30 Picture No. 31

Nearby Streets

NameAverage PriceAverage SqftDistance
Orchard Road £ 000.00 KM
Viking Road £ 425,00000.00 KM
Saxon Close £ 425,00000.00 KM
York Road £ 250,00000.00 KM
Lawn Road £ 000.00 KM

Nearby Transport

NameNLCTLCDistance
Ebbsfleet International5566EBD1.45 KM
Northfleet5120NFL1.54 KM
Swanscombe5156SWM2.83 KM
Gravesend5172GRV4.24 KM
Tilbury Town7462TIL4.27 KM

Nearby Listings

AddressPriceTypeScoreDistance
Springhead Parkway, Northfleet, Gravesend, Kent, DA11 £ 450,000BUY7 / 100.00 KM
Springhead Parkway, Northfleet, Gravesend, Kent, DA11 £ 425,000BUYUnknown0.03 KM
Springhead Parkway, Northfleet, Gravesend, Kent, DA11 £ 175,000BUY6 / 100.06 KM
Thackeray Drive, Gravesend, DA11 £ 550,000BUY7 / 100.12 KM
Wellesley Corner, Northfleet, Gravesend, DA11 £ 425,000BUY7 / 100.13 KM

Nearby Properties

AddressPriceDistance
164 Springhead Parkway £ 410,0000.00 KM
128 Springhead Parkway £ 175,0000.00 KM
156 Springhead Parkway £ 249,9500.00 KM
162 Springhead Parkway £ 352,0000.00 KM
158 Springhead Parkway £ 450,0000.00 KM