FI
22 East Parade, Whitley Bay, North Tyneside
By Finest Properties
£ 895,000
Finest Properties says ..
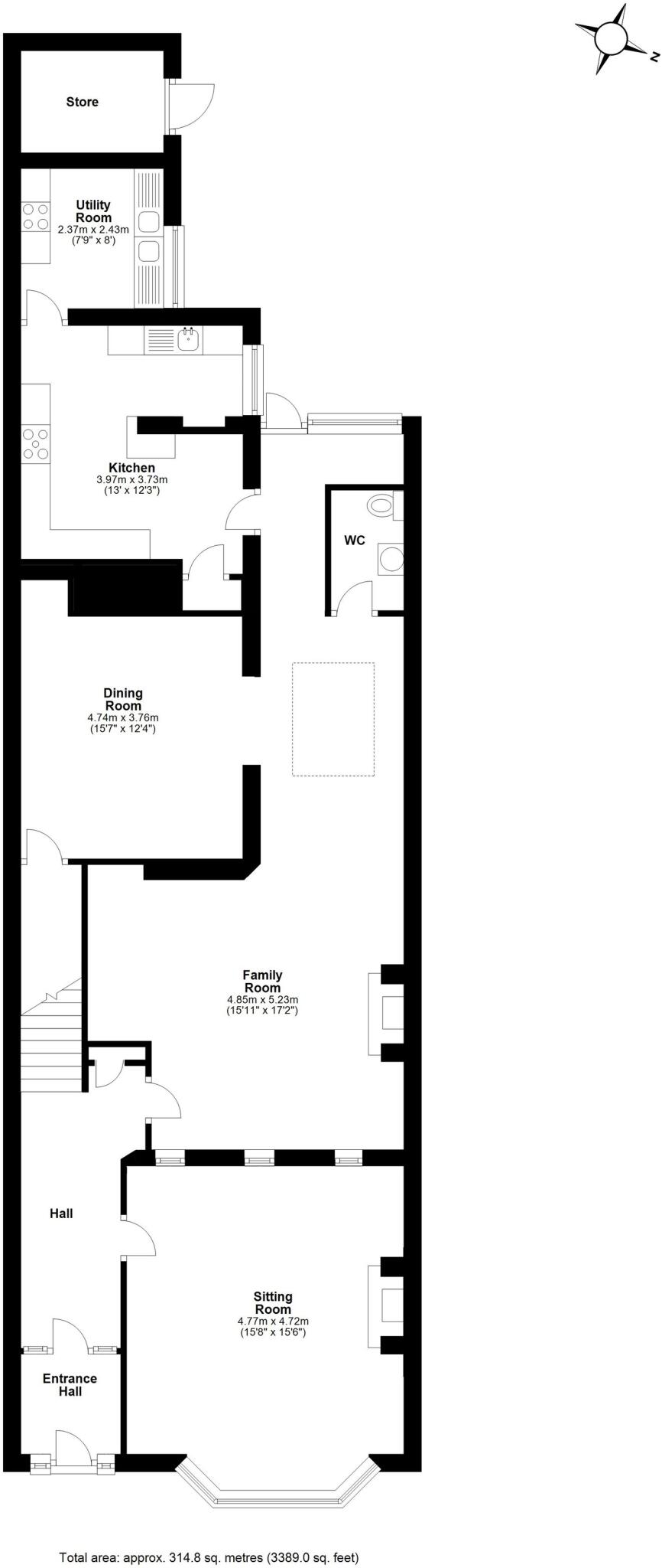
Accommodation in BriefGround FloorEntrance Hall | Sitting Room | Family Room | Dining Room | WC | Kitchen | Utility Room | Store RoomFirst FloorPrincipal Bedroom Suite with En-Suite, Dressing Room and Dressing Area| Second Double Bedroom | Family BathroomSecond FloorTwo Bedrooms | Shower RoomThe ...
- Bedrooms
- 4
- Bathrooms
- 3
The heatmap indicates the level of crime in the area. The color of the heatmap indicates the crime severity and recency.
Metrics Year-on-Year
- Average area value
- 325,790.00 £Decreased by 9.68 %
- Average area rental value
- 1,061.00 £/moIncreased by 0.86 %
- Est rental Yield
- 3.91 %Increased by 11.71 %
- Crime Rate
- 38.00 %Unchanged by 0.00 %
from 360,706.00 £
from 1,052.00 £/mo
from 3.50 %
from 38.00 %
Agent Activity
Finest Properties created the listing.
Nearby Schools
| Name | Type | Ofsted | Distance |
|---|---|---|---|
| Marine Park First School | Community School | Outstanding | 0.46 KM |
| Marden Bridge Middle School | Foundation School | Good | 1.04 KM |
| Rockcliffe First School | Foundation School | Outstanding | 1.32 KM |
| Coquet Park First School | Community School | Outstanding | 1.34 KM |
| St Mary'S Catholic Primary School, North Shields | Academy Converter | 1.69 KM |
Images
Nearby Streets
| Name | Average Price | Average Sqft | Distance |
|---|---|---|---|
| Marine Gardens | £ 0 | 0 | 0.00 KM |
| Percy Road | £ 0 | 0 | 0.00 KM |
| Station Square | £ 0 | 0 | 0.00 KM |
| Northumberland Square | £ 0 | 0 | 0.00 KM |
| Duke Street | £ 279,975 | 0 | 0.00 KM |
Nearby Listings
| Address | Price | Type | Score | Distance |
|---|---|---|---|---|
| 22 East Parade, Whitley Bay, North Tyneside | £ 895,000 | BUY | Unknown | 0.00 KM |
| Charles Avenue, Whitley Bay, Tyne and Wear, NE26 | £ 399,000 | BUY | Unknown | 0.07 KM |
| East Parade, Whitley Bay, NE26 | £ 375,000 | BUY | Unknown | 0.08 KM |
| East Parade, Whitley Bay, NE26 | £ 375,000 | BUY | 6 / 10 | 0.08 KM |
| East Parade, Whitley Bay, NE26 | £ 360,000 | BUY | 7 / 10 | 0.08 KM |
Nearby Properties
| Address | Price | Distance |
|---|---|---|
| 1 Brook Gardens | £ 28,500 | 0.05 KM |
| 3 Brook Gardens | £ 107,000 | 0.05 KM |
| 2 Brook Gardens | £ 280,000 | 0.05 KM |
| 10 Charles Avenue | £ 295,000 | 0.07 KM |
| 6 Charles Avenue | £ 150,000 | 0.07 KM |