Oscar James says ..
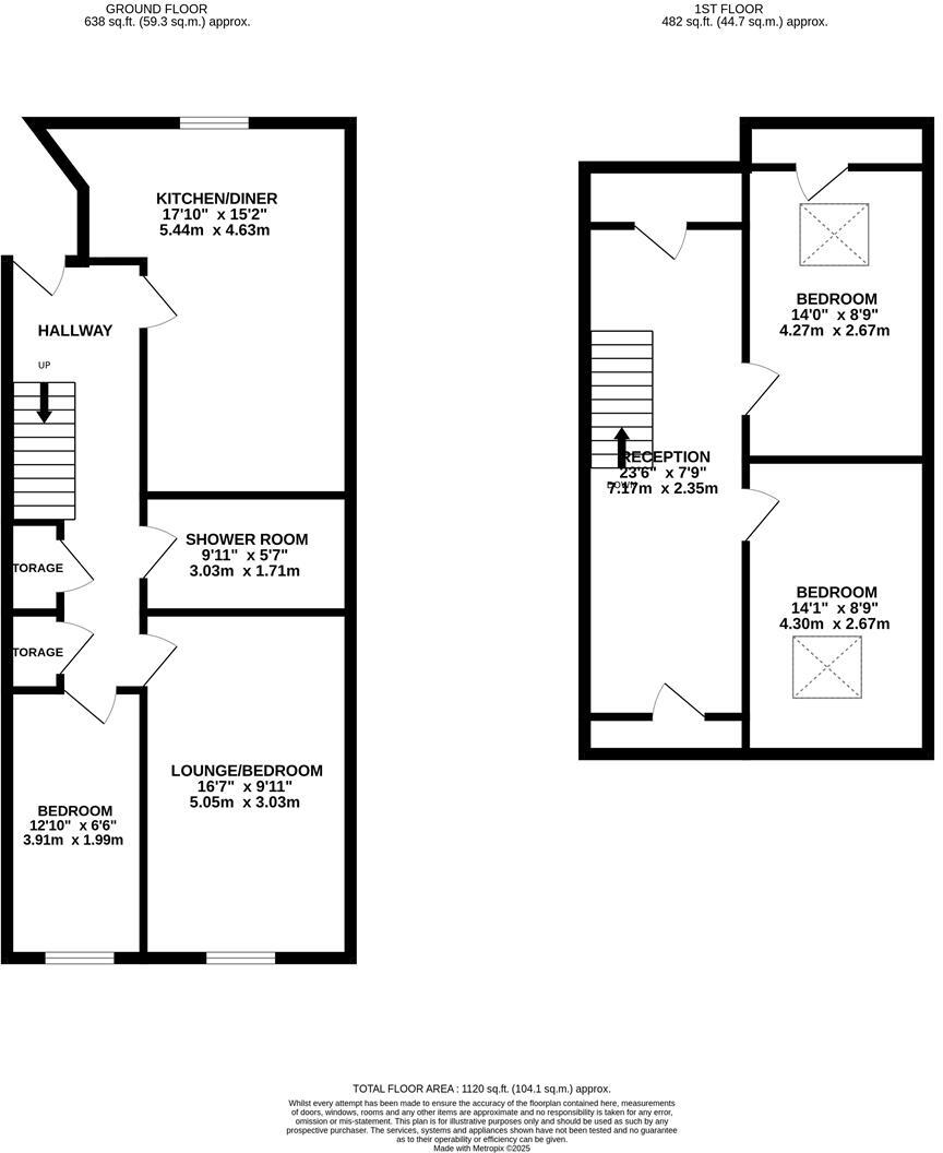
Situated close to the Kettering town centre is this three bedroom apartment which has been thoughtfully converted with impressive space over two floors providing ample room for families or those seeking extra space. Situated on King Street, you will enjoy the convenience of Kettering's v...
Property Oracle says ..
This is a three-bedroom apartment located on King Street in Kettering. The property is in a convenient location, close to local schools, amenities, and Kettering Train Station. The apartment appears to be in reasonable condition, with a modern kitchen and bathroom. The property includes a small outdoor area. The asking price of £140,000 represents good value for money, as it is below the average price for the area and significantly below the average price per square foot.
Therefore, we give this property 6 / 10. *Disclaimer: This is our option and does constitute a recommendation or financial advice. Do your own research. *
- Price
- 8
- Condition
- 7
- Location
- 7
- Land
- 4
- Bedrooms
- 3
- Bathrooms
- 1
- Sqft (est)
- 1,003.11
The heatmap indicates the level of crime in the area. The color of the heatmap indicates the crime severity and recency.
Metrics Year-on-Year
- Average area value
- 311,363.00 £Increased by 11.20 %
- Est sale value
- 401,244.00 £Increased by 49.81 %
- Average area rental value
- 797.00 £/moDecreased by 6.35 %
- Est letting value
- 1,003.11 £/mo
- Est rental Yield
- 3.07 %Decreased by 15.89 %
- Crime Rate
- 10.00 %Unchanged by 0.00 %
Agent Activity
Oscar James created the listing.
Nearby Schools
| Name | Type | Ofsted | Distance |
|---|---|---|---|
| Youth Works Community College | Other Independent School | Good | 0.24 KM |
| St Andrew'S Church Of England Primary School | Academy Sponsor Led | Good | 0.55 KM |
| Kettering Park Junior Academy | Academy Sponsor Led | Requires improvement | 0.59 KM |
| Kettering Park Infant Academy | Academy Converter | Requires improvement | 0.66 KM |
| Montagu Street Children'S Centre | Children's Centre | 0.68 KM |
Images
Nearby Streets
| Name | Average Price | Average Sqft | Distance |
|---|---|---|---|
| Havelock Street | £ 0 | 0 | 0.00 KM |
| Maybury Close | £ 0 | 0 | 0.00 KM |
| Tordoff Place | £ 0 | 0 | 0.00 KM |
| Printers Yard | £ 0 | 0 | 0.00 KM |
| Park Avenue | £ 0 | 0 | 0.00 KM |
Nearby Transport
| Name | NLC | TLC | Distance |
|---|---|---|---|
| Kettering | 1857 | KET | 1.36 KM |
Nearby Listings
| Address | Price | Type | Score | Distance |
|---|---|---|---|---|
| King Street, Kettering | £ 140,000 | BUY | 6 / 10 | 0.00 KM |
| Regent Street, Kettering, Northamptonshire, NN16 | £ 120,000 | BUY | Unknown | 0.04 KM |
| Regent Street, Kettering, NN16 | £ 200,000 | BUY | 6 / 10 | 0.06 KM |
| 15 Havelock Street, Kettering | £ 325,000 | BUY | Unknown | 0.15 KM |
| Reed Close, Britannia Park, Kettering | £ 450,000 | BUY | Unknown | 0.15 KM |
Nearby Properties
| Address | Price | Distance |
|---|---|---|
| 7 King Street | £ 96,500 | 0.05 KM |
| 18 King Street | £ 170,000 | 0.05 KM |
| 5 King Street | £ 119,000 | 0.05 KM |
| 28 Crown Street | £ 115,250 | 0.10 KM |
| 22 Crown Street | £ 115,000 | 0.10 KM |