WI
Top Road, Calow, Chesterfield
By Wilkins Vardy Residential
£ 155,000
Reviews
3 out of 5 stars
Wilkins Vardy Residential says ..
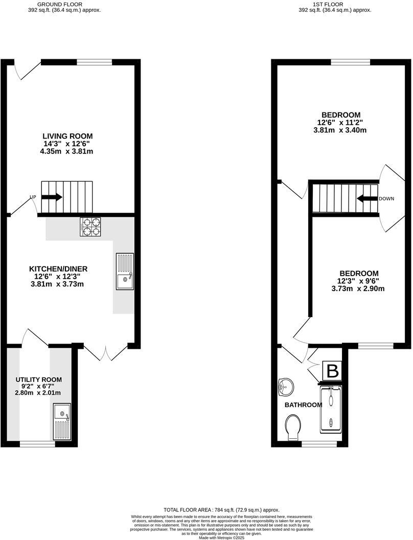
WELL APPOINTED VICTORIAN TERRACE - MODERN KITCHEN & SHOWER ROOM - LANDSCAPED SOUTH FACING REAR GARDEN This delightful Victorian end terraced house on Top Road, Calow offers 784 sq.,ft. of well appointed accommodation which includes a well proportioned reception room, a modern fitted kitc...
Property Oracle says ..
Therefore, we give this property 7 / 10. *Disclaimer: This is our option and does constitute a recommendation or financial advice. Do your own research. *
- Price
- 8
- Condition
- 8
- Location
- 7
- Land
- 7
- Bedrooms
- 2
- Bathrooms
- 1
- Sqft (est)
- 647.71
The heatmap indicates the level of crime in the area. The color of the heatmap indicates the crime severity and recency.
Metrics Year-on-Year
- Average area value
- 291,263.00 £Decreased by 1.08 %
- Est sale value
- 226,050.79 £Increased by 25.99 %
- Average area rental value
- 980.00 £/moDecreased by 0.31 %
- Est letting value
- 647.71 £/mo
- Est rental Yield
- 4.04 %Increased by 0.75 %
- Crime Rate
- 3.00 %Unchanged by 0.00 %
from 294,431.00 £
from 179,415.67 £
from 983.00 £/mo
from 0.00 £/mo
from 4.01 %
from 3.00 %
Agent Activity
Wilkins Vardy Residential created the listing.
Nearby Schools
| Name | Type | Ofsted | Distance |
|---|---|---|---|
| Calow Cofe Vc Primary School | Voluntary Controlled School | Requires improvement | 0.37 KM |
| Chesterfield Hospital School | Miscellaneous | 1.21 KM | |
| Brimington Manor Infant And Nursery School | Academy Converter | Good | 1.25 KM |
| Hady Primary School | Community School | Good | 1.95 KM |
| St Peter & St Paul School | Other Independent School | 2.03 KM |
Images
Nearby Streets
| Name | Average Price | Average Sqft | Distance |
|---|---|---|---|
| Church Street | £ 130,000 | 0 | 0.00 KM |
| Bedford Way | £ 0 | 0 | 0.00 KM |
| Heather Close | £ 220,000 | 0 | 0.00 KM |
| Almond Close | £ 0 | 0 | 0.00 KM |
| Orchid Close | £ 219,950 | 0 | 0.00 KM |
Nearby Transport
| Name | NLC | TLC | Distance |
|---|---|---|---|
| Chesterfield | 6615 | CHD | 3.43 KM |
Nearby Listings
| Address | Price | Type | Score | Distance |
|---|---|---|---|---|
| Top Road, Calow, Chesterfield | £ 155,000 | BUY | 7 / 10 | 0.00 KM |
| Top Road, Calow, S44 | £ 500,000 | BUY | Unknown | 0.02 KM |
| Dark Lane, Calow, S44 | £ 375,000 | BUY | 7 / 10 | 0.05 KM |
| Top Road, Calow, Chesterfield, S44 5AA | £ 140,000 | BUY | 7 / 10 | 0.07 KM |
| Church Meadows, Calow, Chesterfield | £ 269,950 | BUY | 6 / 10 | 0.10 KM |
Nearby Properties
| Address | Price | Distance |
|---|---|---|
| 6 Top Road | £ 96,000 | 0.01 KM |
| 36 Top Road | £ 97,000 | 0.01 KM |
| 38 Top Road | £ 74,000 | 0.01 KM |
| 32 Top Road | £ 100,000 | 0.01 KM |
| 12 Top Road | £ 98,000 | 0.01 KM |