Land Off Church Road, West Kingsdown, TN15
By Brookbanks Estate Agents
£ 200,000
Reviews
3 out of 5 stars
Brookbanks Estate Agents says ..
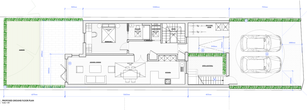
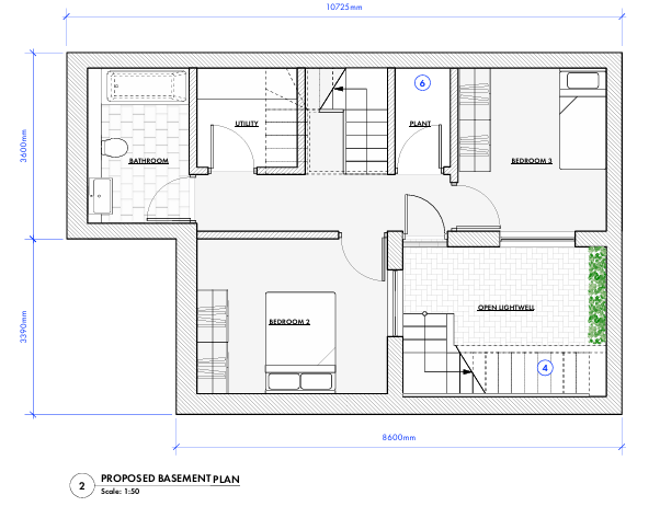
Exciting opportunity to purchase a plot of land with planning permission (subject to legal checks) for a bespoke three-bedroom home. Ideal for self-builders or investors looking for a project in a desirable location.
Property Oracle says ..
This is a plot of land in West Kingsdown, Kent, with proposed plans for a modern house. The location is desirable, offering a blend of rural and suburban living. While the land itself seems reasonably priced, potential buyers should consider the additional costs associated with building the property. The architectural drawings suggest a well-designed home with a garden and parking, enhancing its appeal.
Therefore, we give this property 7 / 10. *Disclaimer: This is our option and does constitute a recommendation or financial advice. Do your own research. *
- Price
- 7
- Condition
- 8
- Location
- 7
- Land
- 6
- Bedrooms
- 0
- Bathrooms
- 0
The heatmap indicates the level of crime in the area. The color of the heatmap indicates the crime severity and recency.
Metrics Year-on-Year
- Average area value
- 534,929.00 £Decreased by 0.63 %
- Average area rental value
- 1,300.00 £/moDecreased by 48.68 %
- Est rental Yield
- 2.92 %Decreased by 48.32 %
- Crime Rate
- 67.00 %Unchanged by 0.00 %
Agent Activity
Brookbanks Estate Agents created the listing.
Nearby Schools
| Name | Type | Ofsted | Distance |
|---|---|---|---|
| West Kingsdown Children'S Centre | Children's Centre | 0.95 KM | |
| West Kingsdown Cofe Vc Primary School | Voluntary Controlled School | Good | 0.96 KM |
| Birtley House Independent School | Other Independent Special School | Outstanding | 1.16 KM |
| Fawkham Church Of England Voluntary Controlled Primary School | Voluntary Controlled School | Good | 4.17 KM |
| Kemsing Primary School | Community School | Good | 5.45 KM |
Images
Nearby Streets
| Name | Average Price | Average Sqft | Distance |
|---|---|---|---|
| Wood View Close | £ 575,000 | 0 | 0.00 KM |
| Blackthorn Close | £ 0 | 0 | 0.00 KM |
| Kaysland Park | £ 140,000 | 0 | 0.00 KM |
| Carter Avenue | £ 0 | 0 | 0.00 KM |
| The Grove | £ 863,500 | 0 | 0.00 KM |
Nearby Transport
| Name | NLC | TLC | Distance |
|---|---|---|---|
| Kemsing | 5079 | KMS | 5.57 KM |
| Eynsford | 5065 | EYN | 6.45 KM |
| Farningham Road | 5105 | FNR | 6.81 KM |
| Longfield | 5114 | LGF | 7.17 KM |
| Borough Green And Wrotham | 5130 | BRG | 7.75 KM |
Nearby Listings
| Address | Price | Type | Score | Distance |
|---|---|---|---|---|
| Land Off Church Road, West Kingsdown, TN15 | £ 200,000 | BUY | 7 / 10 | 0.00 KM |
| Church Road, West Kingsdown, Sevenoaks, Kent | £ 274,500 | BUY | 7 / 10 | 0.15 KM |
| Church Road, West Kingsdown, Sevenoaks, Kent | £ 415,000 | BUY | 6 / 10 | 0.15 KM |
| Church Road, West Kingsdown, Sevenoaks, Kent | £ 254,500 | BUY | Unknown | 0.15 KM |
| Church Road, West Kingsdown, Sevenoaks, Kent | £ 350,000 | BUY | 6 / 10 | 0.17 KM |
Nearby Properties
| Address | Price | Distance |
|---|---|---|
| 18 Chancel Close | £ 365,000 | 0.06 KM |
| 13 Chancel Close | £ 235,000 | 0.06 KM |
| 2 Windmill Grange | £ 675,000 | 0.14 KM |
| 3 Windmill Grange | £ 537,500 | 0.14 KM |
| 5 Windmill Grange | £ 400,000 | 0.14 KM |