Lady Bailey Residential Park, Winterborne Whitechurch, Blandford Forum, Dorset, DT11
By Vivien Horder
£ 150,000
Reviews
3 out of 5 stars
Vivien Horder says ..
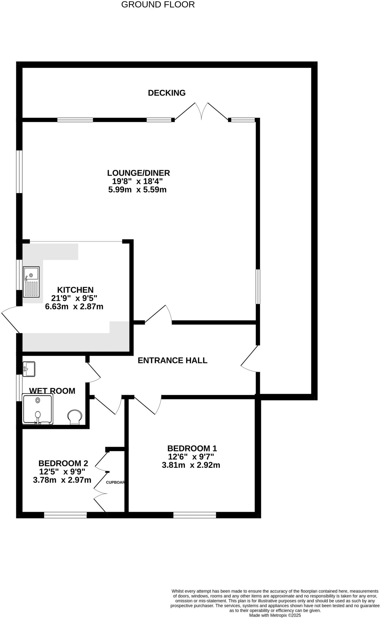
A 2 Bedroom Detached Park Home backing onto countryside with far reaching views, offered for sale with NO FORWARD CHAIN.
Property Oracle says ..
This detached property is located in Lady Bailey Residential Park, Winterborne Whitechurch, Dorset. It features two bedrooms and one bathroom, with a total square footage of 805.79 sqft. The property includes a garden and decking area, offering outdoor living space. The interior appears to be in generally good condition, with a modern kitchen and bathroom. The location is rural, providing a quiet and peaceful environment. The list price of £150,000 seems reasonable compared to other properties in the area. Dunbury Church Of England Academy is located within 0.39 KM.
Therefore, we give this property 7 / 10. *Disclaimer: This is our option and does constitute a recommendation or financial advice. Do your own research. *
- Price
- 8
- Condition
- 7
- Location
- 6
- Land
- 7
- Bedrooms
- 2
- Bathrooms
- 1
- Sqft (est)
- 805.79
The heatmap indicates the level of crime in the area. The color of the heatmap indicates the crime severity and recency.
Metrics Year-on-Year
- Average area value
- 400,000.00 £Decreased by 14.31 %
- Est sale value
- 235,290.68 £Decreased by 4.58 %
- Average area rental value
- 1,515.00 £/moDecreased by 21.30 %
- Est letting value
- 805.79 £/moUnchanged by 0.00 %
- Est rental Yield
- 4.55 %Decreased by 8.08 %
- Crime Rate
- 24.00 %Unchanged by 0.00 %
Agent Activity
Vivien Horder created the listing.
Nearby Schools
| Name | Type | Ofsted | Distance |
|---|---|---|---|
| Dunbury Church Of England Academy | Academy Sponsor Led | Good | 0.39 KM |
| Bere Regis Primary And Preschool | Academy Sponsor Led | 5.42 KM | |
| Milborne St Andrew First School | Academy Converter | Good | 5.80 KM |
| Milton Abbey School | Other Independent School | 6.18 KM | |
| Knighton House School | Other Independent School | 9.09 KM |
Images
Nearby Streets
| Name | Average Price | Average Sqft | Distance |
|---|---|---|---|
| St Mary's Close | £ 0 | 0 | 0.00 KM |
| Dolway Lane | £ 0 | 0 | 0.00 KM |
| Field's Close | £ 325,000 | 0 | 0.00 KM |
| Rose Cottages | £ 400,000 | 0 | 0.00 KM |
| Rook Lane | £ 0 | 0 | 0.00 KM |
Nearby Listings
| Address | Price | Type | Score | Distance |
|---|---|---|---|---|
| Lady Bailey Residential Park, Winterborne Whitechurch, Blandford Forum, Dorset, DT11 | £ 150,000 | BUY | 7 / 10 | 0.00 KM |
| Lady Bailey Residential Park, Winterborne Whitechurch, Blandford Forum, Dorset, DT11 | £ 155,000 | BUY | 6 / 10 | 0.00 KM |
| Lady Bailey, Winterborne Whitechurch, Blandford Forum | £ 160,000 | BUY | Unknown | 0.01 KM |
| Winterborne Whitechurch, Blandford Forum, Dorset, DT11 | £ 159,950 | BUY | 6 / 10 | 0.01 KM |
| Lady Bailey Caravan Park, Winterborne Whitechurch | £ 150,000 | BUY | 5 / 10 | 0.14 KM |
Nearby Properties
| Address | Price | Distance |
|---|---|---|
| 4 St Marys Close | £ 305,000 | 0.12 KM |
| 12 St Marys Close | £ 318,000 | 0.12 KM |
| 1a St Marys Close | £ 485,000 | 0.12 KM |
| 16 St Marys Close | £ 305,000 | 0.12 KM |
| 9 St Marys Close | £ 463,250 | 0.12 KM |