KE
Queens Road, Harrogate, HG2
By Keller Williams
£ 500,000
Reviews
3 out of 5 stars
Keller Williams says ..
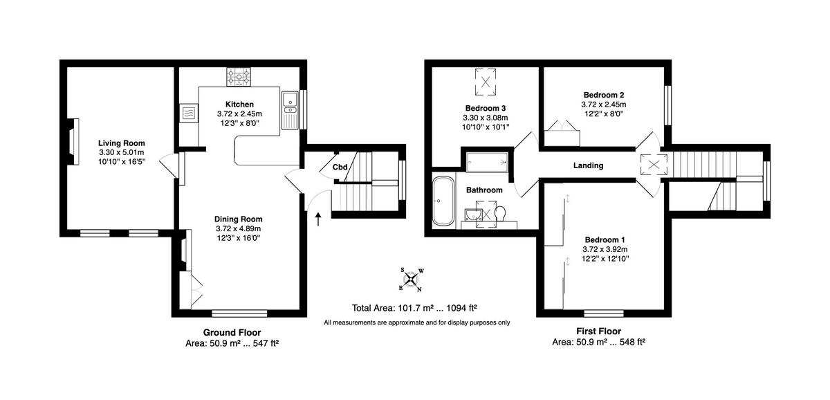
Charming 3-bed cottage in a gated development, just a short walk from Cold Bath Rd and Valley Gardens. With a detached garage and well maintained grounds, this home offers peaceful living in one of Harrogate’s most sought-after locations
Property Oracle says ..
Therefore, we give this property 7 / 10. *Disclaimer: This is our option and does constitute a recommendation or financial advice. Do your own research. *
- Price
- 8
- Condition
- 8
- Location
- 8
- Land
- 7
- Bedrooms
- 3
- Bathrooms
- 1
The heatmap indicates the level of crime in the area. The color of the heatmap indicates the crime severity and recency.
Metrics Year-on-Year
- Average area value
- 560,000.00 £Decreased by 13.71 %
- Average area rental value
- 1,040.00 £/moDecreased by 26.29 %
- Est rental Yield
- 2.23 %Decreased by 14.56 %
- Crime Rate
- 1.00 %Unchanged by 0.00 %
from 648,949.00 £
from 1,411.00 £/mo
from 2.61 %
from 1.00 %
Agent Activity
Keller Williams created the listing.
Nearby Schools
| Name | Type | Ofsted | Distance |
|---|---|---|---|
| Harrogate Grammar School | Academy Converter | 0.27 KM | |
| Western Primary School | Academy Converter | Outstanding | 0.54 KM |
| Harrogate Language Academy | Miscellaneous | 0.87 KM | |
| Rossett Acre Primary School | Academy Converter | Good | 0.96 KM |
| St Peter'S Church Of England Primary School | Academy Converter | Good | 1.01 KM |
Images
Nearby Streets
| Name | Average Price | Average Sqft | Distance |
|---|---|---|---|
| Glebe Road Rear | £ 118,800 | 0 | 0.00 KM |
| Saint Mary's Walk Rear | £ 0 | 0 | 0.00 KM |
| Cold Bath Road Rear | £ 0 | 0 | 0.00 KM |
| The Lawns | £ 0 | 0 | 0.00 KM |
| Rossett Holt View | £ 470,000 | 0 | 0.00 KM |
Nearby Transport
| Name | NLC | TLC | Distance |
|---|---|---|---|
| Harrogate | 8213 | HGT | 1.34 KM |
| Hornbeam Park | 8212 | HBP | 2.29 KM |
| Pannal | 8479 | PNL | 3.35 KM |
| Starbeck | 8221 | SBE | 5.28 KM |
| Weeton | 8509 | WET | 7.89 KM |
Nearby Listings
| Address | Price | Type | Score | Distance |
|---|---|---|---|---|
| Queens Road, Harrogate, HG2 | £ 500,000 | BUY | 7 / 10 | 0.00 KM |
| Queens Road, Harrogate | £ 180,000 | BUY | 6 / 10 | 0.05 KM |
| Otley Road, Harrogate | £ 895,000 | BUY | 7 / 10 | 0.09 KM |
| Otley Road, Harrogate | £ 895,000 | BUY | Unknown | 0.09 KM |
| Otley Road, Duchy Court, HG2 | £ 235,000 | BUY | 7 / 10 | 0.09 KM |
Nearby Properties
| Address | Price | Distance |
|---|---|---|
| 10 Otley Road | £ 425,000 | 0.09 KM |
| 28 Otley Road | £ 660,000 | 0.09 KM |
| 6 Otley Road | £ 345,000 | 0.09 KM |
| 8 Queens Road | £ 1,150,000 | 0.09 KM |
| 6 Queens Road | £ 635,000 | 0.09 KM |