Harper & Woods says ..
What a lovely end row home which has been well cared for and is ready to just drop in your furniture and start enjoying! Offering an open plan living/dining/kitchen space and a spacious sunny rear garden that has double gates on to Moseley Avenue meaning you can keep your car off road if requi...
Property Oracle says ..
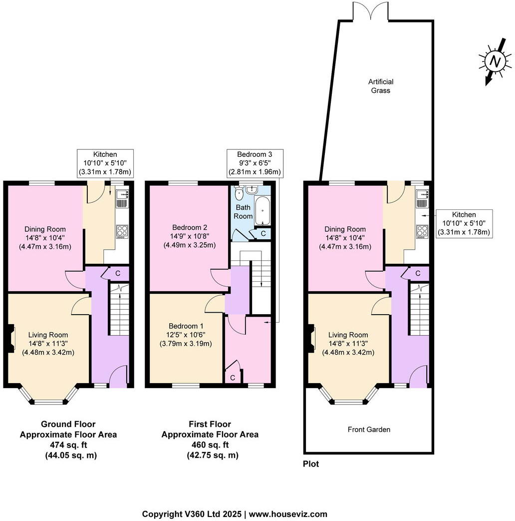
This end of terrace property is located in Wallasey, Wirral. The location benefits from being close to several schools which have received good Ofsted ratings, including The Oldershaw School and St Alban’s Catholic Primary School. Transport links are also convenient, with several Merseyrail stations within a reasonable distance, including New Brighton and Birkenhead North. The property itself appears to be in good condition, with a modern kitchen and updated interiors. The images show that the property has a small, enclosed rear garden, which is a desirable feature for many buyers. While the property is smaller than the average size for the area (774.50 sqft vs 1,837 sqft), the list price of £179,950 is slightly below the average price of £188,000 for the area. Considering its condition, location, and the presence of a garden, the price appears to be reasonably competitive.
Therefore, we give this property 7 / 10. *Disclaimer: This is our option and does constitute a recommendation or financial advice. Do your own research. *
- Price
- 7
- Condition
- 8
- Location
- 7
- Land
- 6
- Bedrooms
- 3
- Bathrooms
- 1
- Sqft (est)
- 754.26
- Lot (est)
- 474.00
The heatmap indicates the level of crime in the area. The color of the heatmap indicates the crime severity and recency.
Metrics Year-on-Year
- Average area value
- 158,667.00 £Decreased by 12.47 %
- Est sale value
- 161,411.64 £Increased by 35.44 %
- Average area rental value
- 606.00 £/moDecreased by 22.70 %
- Est letting value
- 0.00 £/mo
- Est rental Yield
- 4.58 %Decreased by 11.75 %
- Crime Rate
- 28.00 %Unchanged by 0.00 %
Agent Activity
Harper & Woods created the listing.
Nearby Schools
| Name | Type | Ofsted | Distance |
|---|---|---|---|
| The Oldershaw School | Academy Converter | Good | 0.32 KM |
| St Alban'S Catholic Primary School | Voluntary Aided School | Good | 0.38 KM |
| Park Primary School | Community School | Good | 0.59 KM |
| Mount Primary School | Community School | Good | 1.04 KM |
| New Brighton Children'S Centre | Children's Centre | 1.04 KM |
Images
Nearby Streets
| Name | Average Price | Average Sqft | Distance |
|---|---|---|---|
| Ashburton Road | £ 125,000 | 0 | 0.00 KM |
| Overton Road | £ 0 | 0 | 0.00 KM |
| School Close | £ 295,000 | 0 | 0.00 KM |
| Wellesley Road | £ 205,000 | 0 | 0.00 KM |
| Castle Road | £ 220,000 | 0 | 0.00 KM |
Nearby Transport
| Name | NLC | TLC | Distance |
|---|---|---|---|
| New Brighton | 2152 | NBN | 1.92 KM |
| Birkenhead North | 2145 | BKN | 2.00 KM |
| Wallasey Village | 2265 | WLV | 2.29 KM |
| Wallasey Grove Road | 2154 | WLG | 2.49 KM |
| Birkenhead Park | 2220 | BKP | 2.74 KM |
Nearby Listings
| Address | Price | Type | Score | Distance |
|---|---|---|---|---|
| Coningsby Drive, Wallasey | £ 179,950 | BUY | 7 / 10 | 0.00 KM |
| Moseley Avenue, Wallasey | £ 115,000 | BUY | Unknown | 0.04 KM |
| Silverlea Avenue, Wallasey, Wirral | £ 130,000 | BUY | 6 / 10 | 0.13 KM |
| Silverlea Avenue, Wallasey | £ 85,000 | BUY | Unknown | 0.13 KM |
| Valkyrie Road, Wallasey, CH45 4RQ | £ 147,500 | BUY | 7 / 10 | 0.14 KM |
Nearby Properties
| Address | Price | Distance |
|---|---|---|
| 33 Edinburgh Road | £ 87,500 | 0.01 KM |
| 12 Moseley Avenue | £ 60,000 | 0.04 KM |
| 16 Moseley Avenue | £ 74,950 | 0.04 KM |
| 26 Moseley Avenue | £ 87,500 | 0.04 KM |
| 5 Moseley Avenue | £ 82,000 | 0.04 KM |