Buckingham Court, York
By Ashtons Estate Agents
£ 375,000
Reviews
3 out of 5 stars
Ashtons Estate Agents says ..
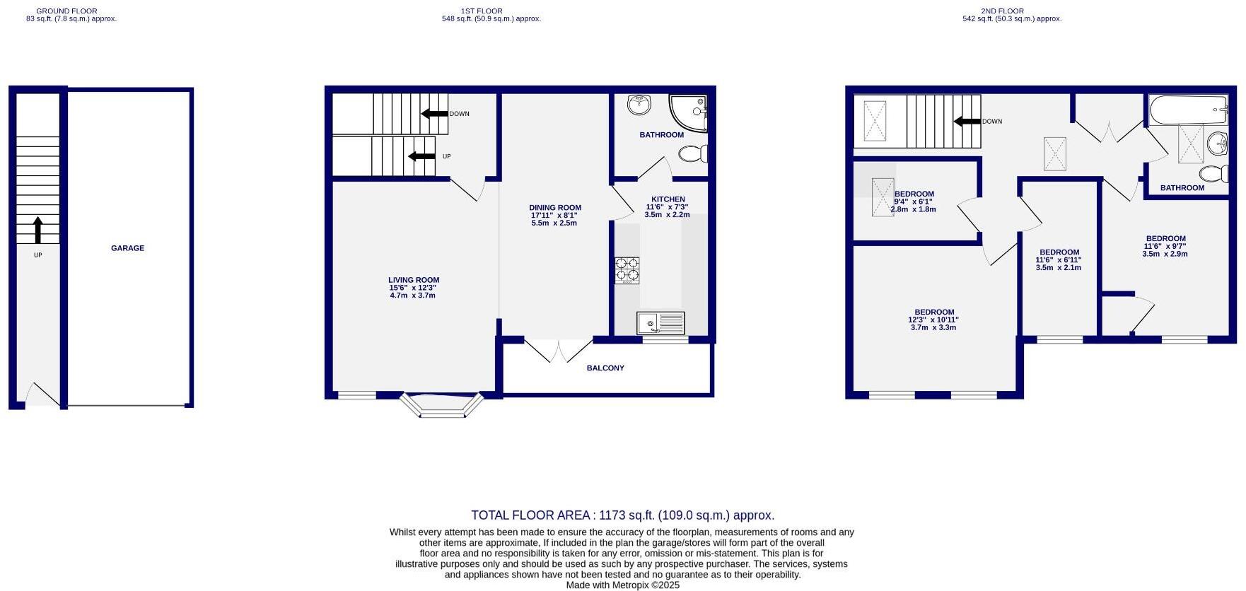
Tucked away within this private development in Bishophill is this substantial townhouse. Updated throughout by the current owner, this property could serve as a superb family home or a turnkey investment. Ideally positioned for those needing access to York city centre or York Train Station, it is...
Property Oracle says ..
This property is a 4-bedroom, 2-bathroom terraced house located in Buckingham Court, York. The property is modern and well presented, with a contemporary kitchen and bathrooms. It benefits from allocated parking and a small private balcony. The location is convenient, with good access to local amenities and transport links. However, the plot size is relatively small. The list price is slightly below the average price for the area, but the price per square foot is slightly above average. Overall, this property would be suitable for a family or professional couple seeking a modern, low-maintenance home in a convenient location.
Therefore, we give this property 7 / 10. *Disclaimer: This is our option and does constitute a recommendation or financial advice. Do your own research. *
- Price
- 7
- Condition
- 9
- Location
- 8
- Land
- 4
- Bedrooms
- 4
- Bathrooms
- 2
- Sqft (est)
- 860.86
- Lot (est)
- 1,173.00
The heatmap indicates the level of crime in the area. The color of the heatmap indicates the crime severity and recency.
Metrics Year-on-Year
- Average area value
- 542,496.00 £Increased by 34.28 %
- Est sale value
- 359,839.48 £Increased by 33.55 %
- Average area rental value
- 1,435.00 £/moIncreased by 6.30 %
- Est letting value
- 860.86 £/moUnchanged by 0.00 %
- Est rental Yield
- 3.17 %Decreased by 20.95 %
- Crime Rate
- 10.00 %Unchanged by 0.00 %
Agent Activity
Ashtons Estate Agents created the listing.
Nearby Schools
| Name | Type | Ofsted | Distance |
|---|---|---|---|
| Scarcroft Primary School | Academy Converter | 0.55 KM | |
| Millthorpe School | Academy Converter | Good | 0.92 KM |
| Bootham School | Other Independent School | 0.96 KM | |
| York St John University | Higher Education Institutions | 1.23 KM | |
| Fishergate Primary School | Community School | Good | 1.27 KM |
Images
Nearby Streets
| Name | Average Price | Average Sqft | Distance |
|---|---|---|---|
| Bishops Court | £ 0 | 0 | 0.00 KM |
| Victoria Cloisters | £ 251,667 | 0 | 0.00 KM |
| Trinity Court | £ 282,500 | 0 | 0.00 KM |
| Ouse Bridge | £ 0 | 0 | 0.00 KM |
| Riverside Lodge | £ 0 | 0 | 0.00 KM |
Nearby Transport
| Name | NLC | TLC | Distance |
|---|---|---|---|
| York | 8263 | YRK | 0.80 KM |
| Poppleton | 8254 | POP | 7.24 KM |
Nearby Listings
| Address | Price | Type | Score | Distance |
|---|---|---|---|---|
| Buckingham Court, York | £ 375,000 | BUY | 7 / 10 | 0.00 KM |
| Buckingham Court, Bishophill | £ 250,000 | BUY | 6 / 10 | 0.00 KM |
| Buckingham Court, Bishophill Senior, York, YO1 | £ 350,000 | BUY | 6 / 10 | 0.02 KM |
| Smales Street, Bishophill, York | £ 375,000 | BUY | 5 / 10 | 0.03 KM |
| Bishophill House, Bishophill Senior, York, YO1 | £ 335,000 | BUY | 6 / 10 | 0.04 KM |
Nearby Properties
| Address | Price | Distance |
|---|---|---|
| 31 Bishophill Senior | £ 285,000 | 0.02 KM |
| 19 Bishophill Senior | £ 735,000 | 0.02 KM |
| 18 Buckingham Court | £ 114,950 | 0.03 KM |
| 30 Buckingham Court | £ 290,000 | 0.03 KM |
| 15 Buckingham Court | £ 245,000 | 0.03 KM |