PR
Holbeck, Bracknell, Berkshire, RG12
By Prospect Estate Agency
£ 390,000
Reviews
3 out of 5 stars
Prospect Estate Agency says ..
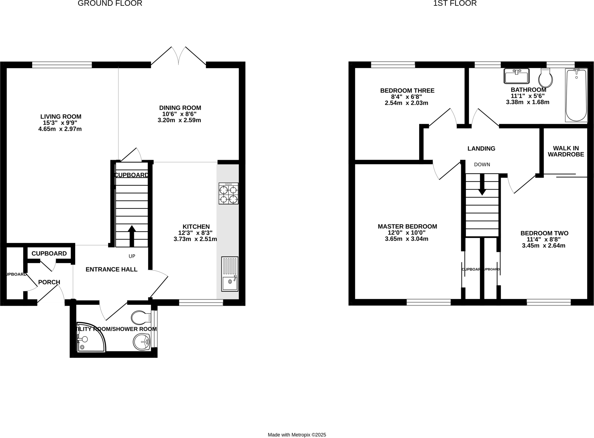
NO ONWARD CHAIN COMPLICATIONS - BEAUTIFUL FAMILY HOME This well-presented terrace property is presented in immaculate condition throughout and is situated in a quiet cul-de-sac on the South side of Bracknell, within close proximity to schools, shops and public transport links and the M...
Property Oracle says ..
Therefore, we give this property 6 / 10. *Disclaimer: This is our option and does constitute a recommendation or financial advice. Do your own research. *
- Price
- 4
- Condition
- 9
- Location
- 7
- Land
- 7
- Bedrooms
- 3
- Bathrooms
- 2
- Sqft (est)
- 672.80
The heatmap indicates the level of crime in the area. The color of the heatmap indicates the crime severity and recency.
Metrics Year-on-Year
- Average area value
- 217,143.00 £Decreased by 10.70 %
- Est sale value
- 165,508.80 £Decreased by 12.14 %
- Average area rental value
- 1,267.00 £/moIncreased by 25.57 %
- Est letting value
- 672.80 £/moUnchanged by 0.00 %
- Est rental Yield
- 7.00 %Increased by 40.56 %
- Crime Rate
- 18.00 %Unchanged by 0.00 %
from 243,173.00 £
from 188,384.00 £
from 1,009.00 £/mo
from 672.80 £/mo
from 4.98 %
from 18.00 %
Agent Activity
Prospect Estate Agency marked this listing as sold.
Prospect Estate Agency created the listing.
Nearby Schools
| Name | Type | Ofsted | Distance |
|---|---|---|---|
| Oaks And Hollies Children'S Centre | Children's Centre | 0.48 KM | |
| The Hollies Children'S Centre | Children's Centre Linked Site | 0.48 KM | |
| Great Hollands Primary School | Academy Sponsor Led | 0.51 KM | |
| St Margaret Clitherow Catholic Primary School, Bracknell | Academy Converter | Good | 0.73 KM |
| The Pines School | Community School | Requires improvement | 0.82 KM |
Images
Nearby Streets
| Name | Average Price | Average Sqft | Distance |
|---|---|---|---|
| Great Hollands Road | £ 340,000 | 0 | 0.00 KM |
| Aysgarth | £ 0 | 0 | 0.00 KM |
| Dry Pond Ride | £ 0 | 0 | 0.00 KM |
| Ringmead | £ 0 | 0 | 0.00 KM |
| Redwing Place | £ 0 | 0 | 0.00 KM |
Nearby Transport
| Name | NLC | TLC | Distance |
|---|---|---|---|
| Bracknell | 5693 | BCE | 2.78 KM |
| Martins Heron | 5692 | MAO | 5.25 KM |
| Crowthorne | 5628 | CRN | 6.33 KM |
| Sandhurst (Berks) | 5646 | SND | 6.68 KM |
| Blackwater | 5625 | BAW | 7.26 KM |
Nearby Listings
| Address | Price | Type | Score | Distance |
|---|---|---|---|---|
| Holbeck, Bracknell, Berkshire, RG12 | £ 390,000 | BUY | 6 / 10 | 0.00 KM |
| Holbeck, Bracknell, Berkshire, RG12 | £ 325,000 | BUY | 5 / 10 | 0.01 KM |
| Holbeck, Bracknell | £ 450,000 | BUY | 6 / 10 | 0.01 KM |
| Holbeck, Bracknell | £ 360,000 | BUY | 6 / 10 | 0.01 KM |
| Holbeck, Bracknell, Berkshire, RG12 | £ 140,000 | BUY | Unknown | 0.01 KM |
Nearby Properties
| Address | Price | Distance |
|---|---|---|
| 67 Holbeck | £ 215,000 | 0.01 KM |
| 77 Holbeck | £ 270,000 | 0.01 KM |
| 110 Holbeck | £ 280,000 | 0.01 KM |
| 115 Holbeck | £ 149,000 | 0.01 KM |
| 101 Holbeck | £ 68,000 | 0.01 KM |