Ocean says ..
Looking for a new project in Ashton? Check out this 3-bed semi-detached house on Banwell Road. Garage, driveway, and great access to the BS3 community! Offers over £470,000
Property Oracle says ..
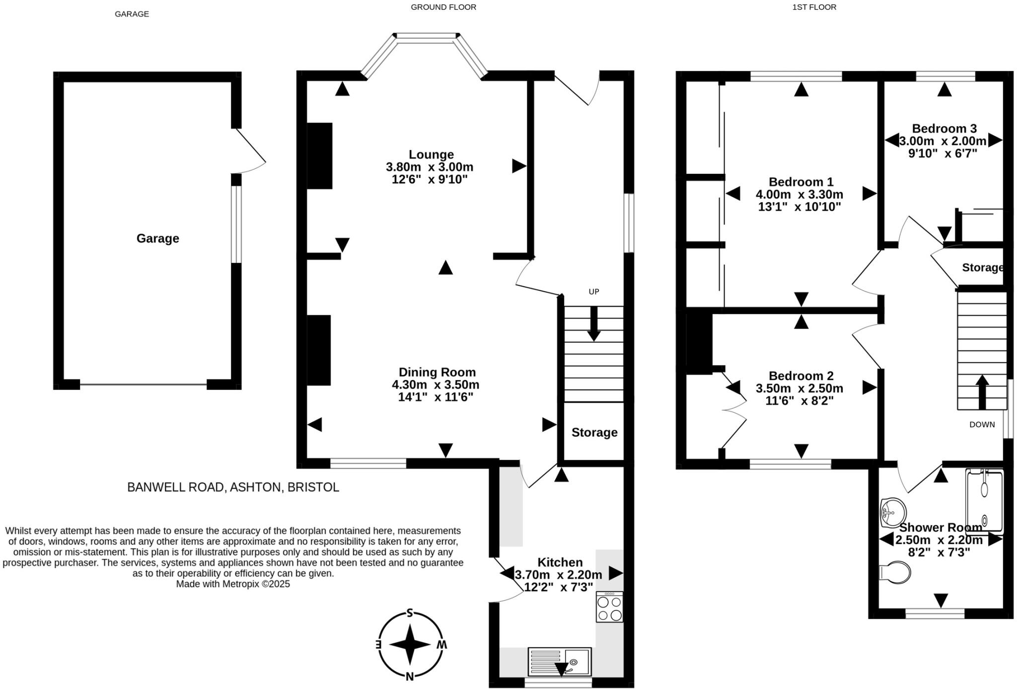
This is a three-bedroom semi-detached property located in a popular area of Bristol. The property is in need of some updating and modernisation, but it offers good potential for improvement. The location is excellent, with good access to local amenities, schools, and transportation links. The property also benefits from a decent-sized garden. Overall, this is a good opportunity for someone looking to put their own stamp on a property in a sought-after location.
Therefore, we give this property 6 / 10. *Disclaimer: This is our option and does constitute a recommendation or financial advice. Do your own research. *
- Price
- 7
- Condition
- 5
- Location
- 7
- Land
- 6
- Bedrooms
- 3
- Bathrooms
- 1
- Sqft (est)
- 732.38
The heatmap indicates the level of crime in the area. The color of the heatmap indicates the crime severity and recency.
Metrics Year-on-Year
- Average area value
- 347,833.00 £Decreased by 12.30 %
- Est sale value
- 303,937.70 £Decreased by 4.16 %
- Average area rental value
- 1,855.00 £/moIncreased by 23.17 %
- Est letting value
- 1,464.76 £/moIncreased by 100.00 %
- Est rental Yield
- 6.40 %Increased by 40.35 %
- Crime Rate
- 2.00 %Unchanged by 0.00 %
Agent Activity
Ocean created the listing.
Nearby Schools
| Name | Type | Ofsted | Distance |
|---|---|---|---|
| Luckwell Primary School | Academy Sponsor Led | 0.54 KM | |
| Ashton Gate Primary School | Community School | Outstanding | 0.58 KM |
| Ashton Vale Primary School | Academy Converter | 1.13 KM | |
| Compass Point: South Street School & Children'S Centre | Children's Centre | 1.21 KM | |
| Compass Point Primary School | Academy Converter | 1.29 KM |
Images
Nearby Streets
| Name | Average Price | Average Sqft | Distance |
|---|---|---|---|
| Banwell Road | £ 575,000 | 0 | 0.00 KM |
| Gerald Road | £ 500,000 | 0 | 0.00 KM |
| Frobisher Road | £ 0 | 0 | 0.00 KM |
| Durnford Street | £ 0 | 0 | 0.00 KM |
| Greenmarsh Lane | £ 0 | 0 | 0.00 KM |
Nearby Transport
| Name | NLC | TLC | Distance |
|---|---|---|---|
| Parson Street | 3246 | PSN | 1.23 KM |
| Bedminster | 3245 | BMT | 2.58 KM |
| Clifton Down | 3202 | CFN | 2.94 KM |
| Redland | 3247 | RDA | 3.87 KM |
| Bristol Temple Meads | 3231 | BRI | 4.16 KM |
Nearby Listings
| Address | Price | Type | Score | Distance |
|---|---|---|---|---|
| Banwell Road, Ashton, Bristol | £ 485,000 | BUY | 6 / 10 | 0.00 KM |
| Banwell Road, Ashton, BS3 | £ 575,000 | BUY | 7 / 10 | 0.05 KM |
| Raynes Road, Bristol, Somerset, BS3 | £ 595,000 | BUY | 6 / 10 | 0.08 KM |
| Banwell Road, Ashton | £ 575,000 | BUY | 7 / 10 | 0.09 KM |
| Raynes Road, Ashton, BS3 | £ 575,000 | BUY | Unknown | 0.10 KM |
Nearby Properties
| Address | Price | Distance |
|---|---|---|
| 13 Banwell Road | £ 415,500 | 0.05 KM |
| 24 Banwell Road | £ 330,000 | 0.05 KM |
| 1 Banwell Road | £ 652,000 | 0.05 KM |
| 4 Banwell Road | £ 395,000 | 0.05 KM |
| 21 Banwell Road | £ 337,000 | 0.05 KM |