Prestbury Road, Wilmslow, Cheshire, SK9
By Savills
£ 1,595,000
Reviews
3 out of 5 stars
Savills says ..
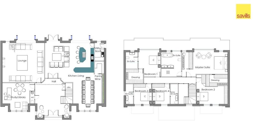
Plot 2, 9 Prestbury Road represents a rare opportunity to acquire a self-build 0.54 acre plot with Planning Permission for a 5 bedroom modern Regency style residence (Reference No: 24/1000M)
Property Oracle says ..
This is a modern detached property located on Prestbury Road in Wilmslow, a sought-after area in Cheshire. The house boasts 5 bedrooms and 4 bathrooms, with a total square footage of 2,070. The property is well-located, with good access to transportation and schools. While the price is above the area average, the excellent condition and desirable location justify the premium. The property also benefits from a large garden and driveway.
Therefore, we give this property 7 / 10. *Disclaimer: This is our option and does constitute a recommendation or financial advice. Do your own research. *
- Price
- 6
- Condition
- 9
- Location
- 8
- Land
- 7
- Bedrooms
- 5
- Bathrooms
- 4
- Sqft (est)
- 2,070.00
The heatmap indicates the level of crime in the area. The color of the heatmap indicates the crime severity and recency.
Metrics Year-on-Year
- Average area value
- 1,168,333.00 £Increased by 51.76 %
- Est sale value
- 1,221,300.00 £Increased by 37.53 %
- Average area rental value
- 8,690.00 £/moIncreased by 118.12 %
- Est letting value
- 8,280.00 £/moIncreased by 100.00 %
- Est rental Yield
- 8.93 %Increased by 43.80 %
- Crime Rate
- 0.00 %
Agent Activity
Savills created the listing.
Nearby Schools
| Name | Type | Ofsted | Distance |
|---|---|---|---|
| The Wilmslow Academy | Academy Converter | Good | 1.92 KM |
| Wilmslow High School | Community School | Good | 2.24 KM |
| Oakenclough & Poynyon Children'S Centre | Children's Centre | 2.31 KM | |
| Wilmslow Preparatory School | Other Independent School | 2.80 KM | |
| St Benedict'S Catholic Primary School | Voluntary Aided School | Good | 2.98 KM |
Images
Nearby Streets
| Name | Average Price | Average Sqft | Distance |
|---|---|---|---|
| Avondale | £ 0 | 0 | 0.00 KM |
| Browns Lane Park Path | £ 0 | 0 | 0.00 KM |
| Birchwood Drive | £ 0 | 0 | 0.00 KM |
| Welford Close | £ 0 | 0 | 0.00 KM |
| Belfry Close | £ 577,950 | 0 | 0.00 KM |
Nearby Transport
| Name | NLC | TLC | Distance |
|---|---|---|---|
| Wilmslow | 2774 | WML | 1.97 KM |
| Handforth | 2767 | HTH | 2.94 KM |
| Alderley Edge | 2760 | ALD | 3.51 KM |
| Styal | 2868 | SYA | 4.60 KM |
| Heald Green | 2860 | HDG | 6.22 KM |
Nearby Listings
| Address | Price | Type | Score | Distance |
|---|---|---|---|---|
| Prestbury Road, Wilmslow, Cheshire, SK9 | £ 1,595,000 | BUY | 7 / 10 | 0.00 KM |
| Prestbury Road, Wilmslow, Cheshire, SK9 | £ 1,595,000 | BUY | 7 / 10 | 0.00 KM |
| Weston Road, Wilmslow | £ 2,200,000 | BUY | 8 / 10 | 0.28 KM |
| Prestbury Road, Wilmslow, Cheshire, SK9 | £ 2,000,000 | BUY | 9 / 10 | 0.33 KM |
| Prestbury Road, Wilmslow | £ 1,850,000 | BUY | 7 / 10 | 0.34 KM |
Nearby Properties
| Address | Price | Distance |
|---|---|---|
| 19 Prestbury Road | £ 1,245,000 | 0.05 KM |
| 29 Prestbury Road | £ 1,031,500 | 0.05 KM |
| 5 Prestbury Road | £ 860,000 | 0.05 KM |
| 23 Prestbury Road | £ 1,500,000 | 0.05 KM |
| 16 Prestbury Road | £ 900,000 | 0.05 KM |