Smith Woolley says ..
**PRICE REDUCTION** Vacant 4 bedroom maisonette with courtyard garden and ground floor commercial shop investment.
Property Oracle says ..
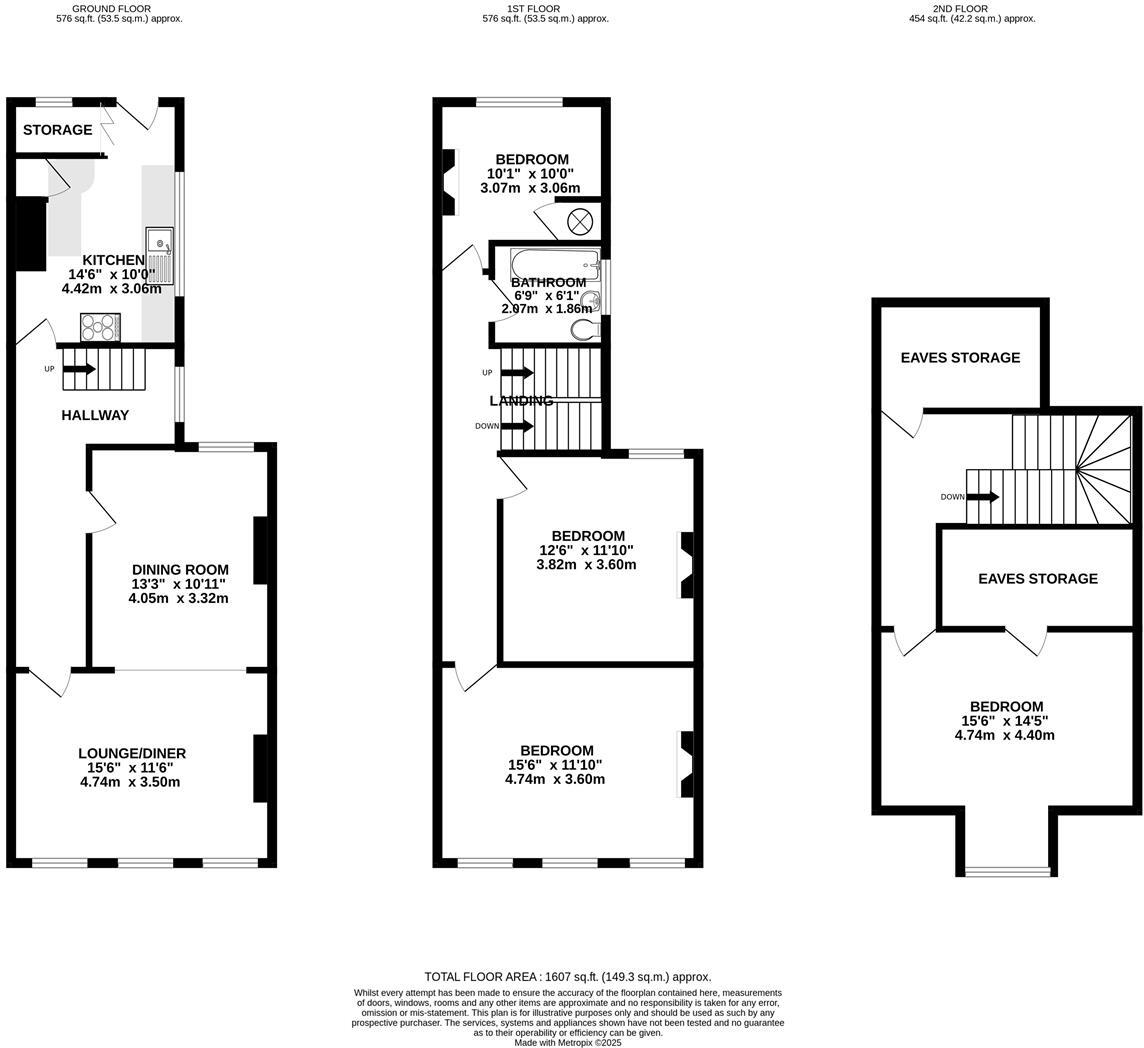
This is a four-bedroom apartment located on the High Street in Hythe. The property offers a spacious living area of 1,607 sqft and includes a courtyard garden. While the property’s location is advantageous, the interior condition suggests that some renovation work may be required. The price appears to be in line with the local market, making it a potentially attractive investment opportunity.
Therefore, we give this property 6 / 10. *Disclaimer: This is our option and does constitute a recommendation or financial advice. Do your own research. *
- Price
- 7
- Condition
- 5
- Location
- 7
- Land
- 6
- Bedrooms
- 4
- Bathrooms
- 1
- Sqft (est)
- 1,607.00
The heatmap indicates the level of crime in the area. The color of the heatmap indicates the crime severity and recency.
Metrics Year-on-Year
- Average area value
- 695,750.00 £Increased by 35.80 %
- Est sale value
- 936,881.00 £Increased by 15.22 %
- Average area rental value
- 1,400.00 £/moDecreased by 11.56 %
- Est letting value
- 1,607.00 £/moUnchanged by 0.00 %
- Est rental Yield
- 2.41 %Decreased by 35.04 %
- Crime Rate
- 26.00 %Unchanged by 0.00 %
Agent Activity
Smith Woolley created the listing.
Nearby Schools
| Name | Type | Ofsted | Distance |
|---|---|---|---|
| Hythe Bay Children'S Centre | Children's Centre | 0.85 KM | |
| Hythe Bay Cofe Primary School | Voluntary Controlled School | Good | 0.94 KM |
| Saltwood Cofe Primary School | Voluntary Aided School | Outstanding | 1.18 KM |
| St Augustine'S Catholic Primary School | Voluntary Aided School | Good | 1.68 KM |
| Brockhill Park Performing Arts College | Academy Converter | Good | 2.45 KM |
Images
Nearby Streets
| Name | Average Price | Average Sqft | Distance |
|---|---|---|---|
| The Tile House | £ 0 | 0 | 0.00 KM |
| Kings Head Lane | £ 0 | 0 | 0.00 KM |
| Mount Street | £ 325,000 | 0 | 0.00 KM |
| Church Hill | £ 600,000 | 0 | 0.00 KM |
| Spring House | £ 0 | 0 | 0.00 KM |
Nearby Transport
| Name | NLC | TLC | Distance |
|---|---|---|---|
| Sandling | 5025 | SDG | 2.99 KM |
| Westenhanger | 5030 | WHA | 5.85 KM |
| Folkestone West | 5027 | FKW | 7.69 KM |
| Folkestone Central | 5035 | FKC | 9.36 KM |
Nearby Listings
| Address | Price | Type | Score | Distance |
|---|---|---|---|---|
| High Street, Hythe | £ 325,000 | BUY | 6 / 10 | 0.00 KM |
| High Street, Hythe | £ 380,000 | BUY | 6 / 10 | 0.00 KM |
| High Street, Hythe, CT21 | £ 150,000 | BUY | 6 / 10 | 0.03 KM |
| Hillside Street, Hythe, CT21 | £ 675,000 | BUY | 7 / 10 | 0.07 KM |
| Hillside Street, Hythe, CT21 | £ 400,000 | BUY | 7 / 10 | 0.07 KM |
Nearby Properties
| Address | Price | Distance |
|---|---|---|
| 8 Theatre Street | £ 280,000 | 0.12 KM |
| 15a Theatre Street | £ 197,000 | 0.12 KM |
| 9b Theatre Street | £ 339,950 | 0.12 KM |
| 14 Theatre Street | £ 270,000 | 0.12 KM |
| 9a Theatre Street | £ 127,500 | 0.12 KM |