Hunters says ..
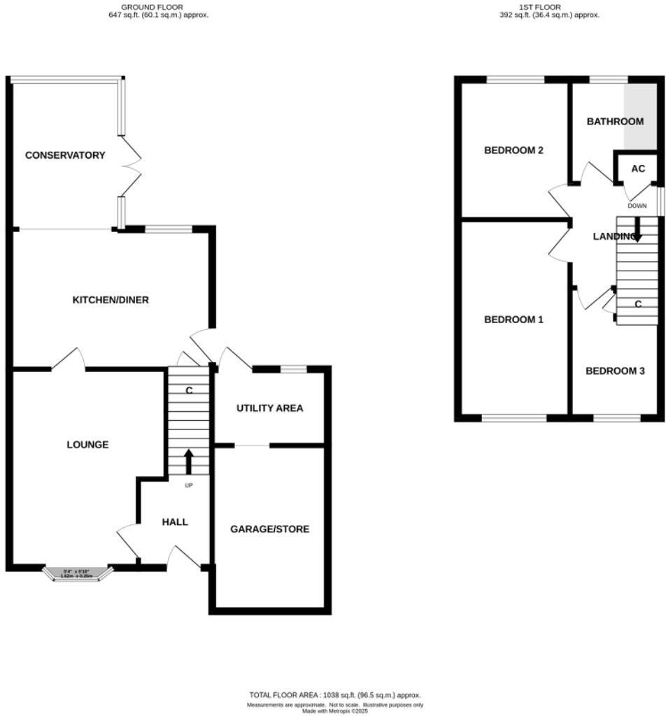
Hunters Redditch proudly presents this well-appointed three-bedroom semi-detached residence, ideally located in the highly sought-after residential area of Winyates Green. This delightful property offers spacious, modern living accommodation and is perfectly suited to families, professionals, or ...
Property Oracle says ..
Therefore, we give this property 6 / 10. *Disclaimer: This is our option and does constitute a recommendation or financial advice. Do your own research. *
- Price
- 6
- Condition
- 6
- Location
- 7
- Land
- 7
- Bedrooms
- 3
- Bathrooms
- 1
- Sqft (est)
- 979.00
The heatmap indicates the level of crime in the area. The color of the heatmap indicates the crime severity and recency.
Metrics Year-on-Year
- Average area value
- 262,500.00 £Decreased by 10.08 %
- Est sale value
- 305,448.00 £Increased by 5.41 %
- Average area rental value
- 1,150.00 £/moIncreased by 8.29 %
- Est letting value
- 979.00 £/moUnchanged by 0.00 %
- Est rental Yield
- 5.26 %Increased by 20.37 %
- Crime Rate
- 4.00 %Unchanged by 0.00 %
from 291,910.00 £
from 289,784.00 £
from 1,062.00 £/mo
from 979.00 £/mo
from 4.37 %
from 4.00 %
Agent Activity
Hunters created the listing.
Nearby Schools
| Name | Type | Ofsted | Distance |
|---|---|---|---|
| Mappleborough Green Cofe Primary School | Voluntary Controlled School | Good | 0.90 KM |
| Tenacres First School | Community School | Good | 1.21 KM |
| Lea Hall Academy | Academy Special Sponsor Led | 1.76 KM | |
| Ipsley Ce Rsa Academy | Academy Sponsor Led | Good | 2.00 KM |
| Arrow Valley First School | Academy Sponsor Led | 2.19 KM |
Images
Nearby Streets
| Name | Average Price | Average Sqft | Distance |
|---|---|---|---|
| Packington Close | £ 617,500 | 0 | 0.00 KM |
| Warwick Highway | £ 185,000 | 0 | 0.00 KM |
| St Georges Court | £ 0 | 0 | 0.00 KM |
| Henley Road | £ 245,000 | 0 | 0.00 KM |
| Hatfield Close | £ 0 | 0 | 0.00 KM |
Nearby Transport
| Name | NLC | TLC | Distance |
|---|---|---|---|
| Wood End | 4536 | WDE | 5.68 KM |
| Danzey | 4519 | DZY | 6.75 KM |
| Earlswood (West Midlands) | 4520 | EWD | 7.01 KM |
| The Lakes (Warks) | 4538 | TLK | 7.01 KM |
| Redditch | 1208 | RDC | 7.33 KM |
Nearby Listings
| Address | Price | Type | Score | Distance |
|---|---|---|---|---|
| Flaxley Close, Redditch B98 | £ 290,000 | BUY | 6 / 10 | 0.00 KM |
| Flaxley Close, Winyates Green, Redditch, B98 | £ 315,000 | BUY | 7 / 10 | 0.06 KM |
| Flaxley Close, Winyates Green, Redditch, B98 0QS | £ 270,000 | BUY | 7 / 10 | 0.06 KM |
| Flaxley Close, Redditch, Worcestershire, B98 | £ 280,000 | BUY | 7 / 10 | 0.07 KM |
| Flaxley Close, Redditch, B98 | £ 250,000 | BUY | Unknown | 0.09 KM |
Nearby Properties
| Address | Price | Distance |
|---|---|---|
| 4 Flaxley Close | £ 230,000 | 0.08 KM |
| 48 Flaxley Close | £ 148,000 | 0.08 KM |
| 5 Flaxley Close | £ 233,000 | 0.08 KM |
| 17 Flaxley Close | £ 225,500 | 0.08 KM |
| 44 Flaxley Close | £ 240,000 | 0.08 KM |