Agent Hybrid says ..
A spacious four bedroom townhouse, set within a highly desirable location of the Old Town.
Property Oracle says ..
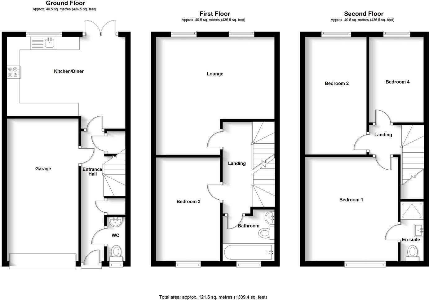
The property is located in Barclay Gardens, Stevenage, within the Old Town area. The Old Town offers local shops and businesses, with more comprehensive amenities available in the town centre. The location benefits from good transport links to London via the A1 and Stevenage station (Kings Cross access). Several schools are nearby, including Barclay Academy, Letchmore Infants’ and Nursery School, and Almond Hill Junior School, offering various options for families. The proximity to these amenities makes it a desirable location for families and commuters. The photos show the property to be in good condition. The interior appears well-maintained and modern, with recently updated kitchens and bathrooms. There is no visible evidence of significant repairs or renovations needed. The property includes a garden, as shown in the provided images. The garden appears to be of a reasonable size for the property type, providing outdoor space for relaxation and entertaining. Considering the property’s size (2,552.12 sqft), condition, location, and included garden, the list price of £465,000 appears reasonable. The average price per sqft in the area is £348, while this property is listed at a slightly higher price per sqft, reflecting its desirable location and good condition. Nearby comparable properties support this pricing, with similar properties in Barclay Gardens and the surrounding area selling for prices within a similar range.
Therefore, we give this property 8 / 10. *Disclaimer: This is our option and does constitute a recommendation or financial advice. Do your own research. *
- Price
- 8
- Condition
- 9
- Location
- 9
- Land
- 7
- Bedrooms
- 4
- Bathrooms
- 3
- Sqft (est)
- 2,552.12
- Lot (est)
- 1,308.89
The heatmap indicates the level of crime in the area. The color of the heatmap indicates the crime severity and recency.
Metrics Year-on-Year
- Average area value
- 364,023.00 £Increased by 8.60 %
- Est sale value
- 1,051,473.44 £Increased by 57.25 %
- Average area rental value
- 1,137.00 £/moDecreased by 2.15 %
- Est letting value
- 2,552.12 £/mo
- Est rental Yield
- 3.75 %Decreased by 9.86 %
- Crime Rate
- 3.00 %Unchanged by 0.00 %
Agent Activity
Agent Hybrid created the listing.
Nearby Schools
| Name | Type | Ofsted | Distance |
|---|---|---|---|
| Barclay Academy | Academy Sponsor Led | 0.15 KM | |
| Letchmore Infants' And Nursery School | Community School | Outstanding | 0.27 KM |
| Almond Hill Junior School | Community School | Good | 0.57 KM |
| The Thomas Alleyne Academy | Academy Sponsor Led | Good | 0.65 KM |
| Fairlands Primary School | Academy Converter | Good | 0.70 KM |
Images
Nearby Streets
| Name | Average Price | Average Sqft | Distance |
|---|---|---|---|
| Church Mews | £ 450,000 | 0 | 0.00 KM |
| Morgan Close | £ 0 | 0 | 0.00 KM |
| Sish Lane | £ 0 | 0 | 0.00 KM |
| The Close | £ 0 | 0 | 0.00 KM |
| Thurlow Close | £ 875,000 | 0 | 0.00 KM |
Nearby Transport
| Name | NLC | TLC | Distance |
|---|---|---|---|
| Stevenage | 6092 | SVG | 1.62 KM |
| Knebworth | 6088 | KBW | 5.62 KM |
| Letchworth Garden City | 6089 | LET | 7.82 KM |
| Hitchin | 6086 | HIT | 8.03 KM |
| Baldock | 6084 | BDK | 8.78 KM |
Nearby Listings
| Address | Price | Type | Score | Distance |
|---|---|---|---|---|
| Barclay Gardens, Stevenage | £ 465,000 | BUY | 8 / 10 | 0.00 KM |
| Fresson Road, Stevenage, Hertfordshire, SG1 | £ 650,000 | BUY | 7 / 10 | 0.10 KM |
| Walkern Road, Stevenage, Hertfordshire, SG1 | £ 615,000 | BUY | 7 / 10 | 0.11 KM |
| Walkern Road, STEVENAGE, Hertfordshire, SG1 | £ 525,000 | BUY | 7 / 10 | 0.12 KM |
| Walkern Road, Stevenage | £ 525,000 | BUY | 7 / 10 | 0.12 KM |
Nearby Properties
| Address | Price | Distance |
|---|---|---|
| 11 Barclay Gardens | £ 256,500 | 0.00 KM |
| 12 Barclay Gardens | £ 385,000 | 0.00 KM |
| 3 Barclay Gardens | £ 420,000 | 0.00 KM |
| 6 Barclay Gardens | £ 270,000 | 0.00 KM |
| 9 Barclay Gardens | £ 315,000 | 0.01 KM |