eXp UK says ..
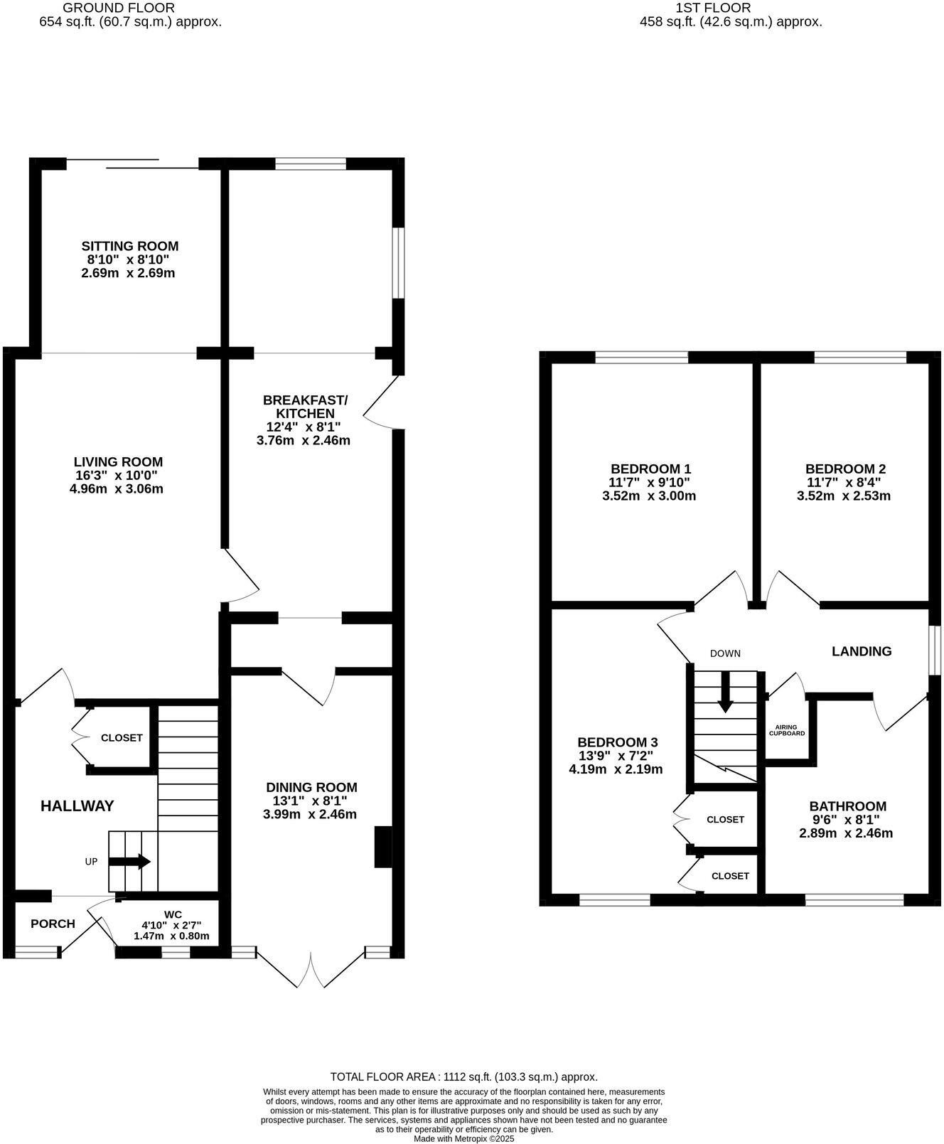
QUOTE FOR VIEWING - REF - CG0525 This semi-detached house in Saltney boasts an extended layout with a converted garage, featuring two reception rooms, a breakfast kitchen, and a convenient downstairs WC. The first floor includes three double bedrooms and a spacious bath...
Property Oracle says ..
Therefore, we give this property 7 / 10. *Disclaimer: This is our option and does constitute a recommendation or financial advice. Do your own research. *
- Price
- 7
- Condition
- 6
- Location
- 7
- Land
- 8
- Bedrooms
- 3
- Bathrooms
- 1
The heatmap indicates the level of crime in the area. The color of the heatmap indicates the crime severity and recency.
Metrics Year-on-Year
- Average area value
- 267,500.00 £Decreased by 0.99 %
- Average area rental value
- 1,107.00 £/moDecreased by 6.11 %
- Est rental Yield
- 4.97 %Decreased by 5.15 %
- Crime Rate
- 21.00 %Unchanged by 0.00 %
from 270,182.00 £
from 1,179.00 £/mo
from 5.24 %
from 21.00 %
Agent Activity
eXp UK created the listing.
Nearby Schools
| Name | Type | Ofsted | Distance |
|---|---|---|---|
| St Anthony'S R.C. Primary School | Welsh Establishment | 0.69 KM | |
| St David'S High School | Welsh Establishment | 1.03 KM | |
| Saltney Wood Memorial C.P. School | Welsh Establishment | 1.07 KM | |
| St Clare'S Catholic Primary School | Voluntary Aided School | Good | 1.76 KM |
| Lache Children'S Centre | Children's Centre | 1.80 KM |
Images
Nearby Streets
| Name | Average Price | Average Sqft | Distance |
|---|---|---|---|
| Moss Grove | £ 0 | 0 | 0.00 KM |
| Maple Grove | £ 195,000 | 0 | 0.00 KM |
| Boundary Lane | £ 255,000 | 0 | 0.00 KM |
| Stnley Park Court | £ 0 | 0 | 0.00 KM |
| Marley Way | £ 0 | 0 | 0.00 KM |
Nearby Transport
| Name | NLC | TLC | Distance |
|---|---|---|---|
| Bache | 2187 | BAC | 5.68 KM |
| Chester | 2412 | CTR | 6.09 KM |
| Capenhurst | 2186 | CPU | 9.57 KM |
Nearby Listings
| Address | Price | Type | Score | Distance |
|---|---|---|---|---|
| 34 Alyndale Road, Saltney, Chester | £ 250,000 | BUY | 7 / 10 | 0.00 KM |
| Alyndale Road, Chester, CH4 | £ 260,000 | BUY | 6 / 10 | 0.00 KM |
| Alyndale Road, CH4 | £ 250,000 | BUY | Unknown | 0.01 KM |
| Victoria Road, Saltney, FLINTSHIRE | £ 185,000 | BUY | 7 / 10 | 0.05 KM |
| Victoria Road, Saltney, Chester, Flintshire, CH4 | £ 190,000 | BUY | 6 / 10 | 0.09 KM |
Nearby Properties
| Address | Price | Distance |
|---|---|---|
| 22 Alyndale Road | £ 150,000 | 0.01 KM |
| 4 Alyndale Road | £ 145,000 | 0.01 KM |
| 62 Alyndale Road | £ 164,500 | 0.01 KM |
| 28 Alyndale Road | £ 141,000 | 0.01 KM |
| 6 Alyndale Road | £ 180,000 | 0.01 KM |