Jaguar Lane, Bracknell, Berkshire, RG12
By David Cliff
£ 550,000
Reviews
3 out of 5 stars
David Cliff says ..
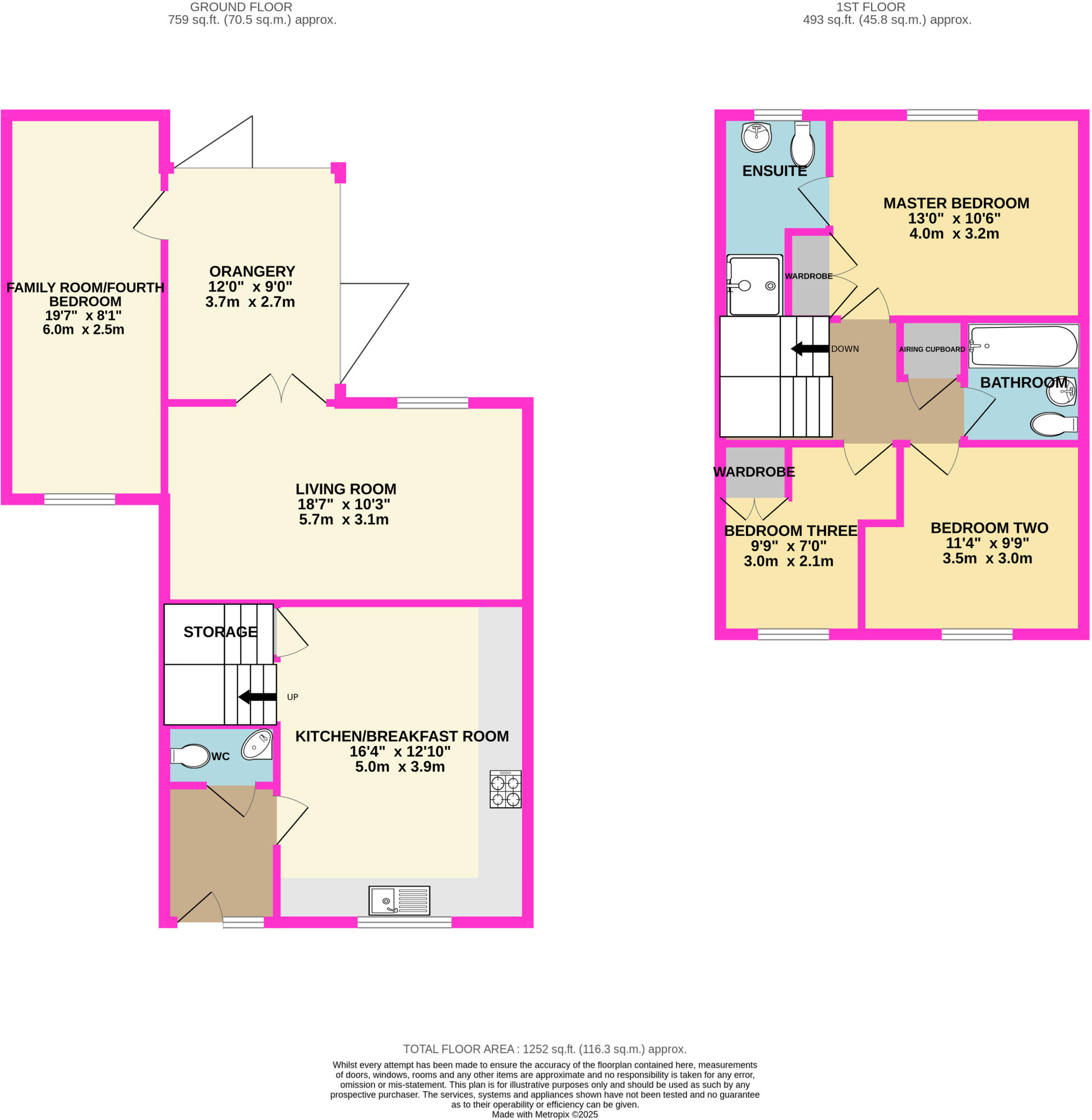
***EXTENDED, WITH THREE RECEPTION ROOMS*** Presenting this spacious detached house, perfect for families and ideally positioned within walking distance to The Lexicon and the train station. Boasting three generous bedrooms, the master benefits from a private ensuite. The property featu...
Property Oracle says ..
This is a well-presented detached property in Bracknell, offering three bedrooms and two bathrooms. The house benefits from a modern kitchen, a good-sized garden with a patio, and proximity to local schools and transportation links. The property is in good condition and appears to be well-maintained, making it an attractive option for families and professionals alike. The listing price is reasonable considering the property’s size, condition, and location.
Therefore, we give this property 7 / 10. *Disclaimer: This is our option and does constitute a recommendation or financial advice. Do your own research. *
- Price
- 7
- Condition
- 8
- Location
- 7
- Land
- 7
- Bedrooms
- 3
- Bathrooms
- 2
- Sqft (est)
- 1,251.84
The heatmap indicates the level of crime in the area. The color of the heatmap indicates the crime severity and recency.
Metrics Year-on-Year
- Average area value
- 456,250.00 £Increased by 6.24 %
- Est sale value
- 597,127.68 £Increased by 35.51 %
- Average area rental value
- 1,660.00 £/moDecreased by 3.60 %
- Est letting value
- 1,251.84 £/moUnchanged by 0.00 %
- Est rental Yield
- 4.37 %Decreased by 9.15 %
- Crime Rate
- 6.00 %Unchanged by 0.00 %
Agent Activity
David Cliff created the listing.
Nearby Schools
| Name | Type | Ofsted | Distance |
|---|---|---|---|
| Ranelagh School | Academy Converter | Outstanding | 0.47 KM |
| The Brakenhale School | Academy Sponsor Led | Good | 0.53 KM |
| Rowans And Sycamores Children'S Centre | Children's Centre | 0.75 KM | |
| Fox Hill Primary School | Community School | Good | 0.75 KM |
| St Joseph'S Catholic Primary School, Bracknell | Voluntary Aided School | Outstanding | 1.03 KM |
Images
Nearby Streets
| Name | Average Price | Average Sqft | Distance |
|---|---|---|---|
| Broad Lane | £ 448,333 | 0 | 0.00 KM |
| Valiant Drive | £ 0 | 0 | 0.00 KM |
| Bagshot Road | £ 296,000 | 0 | 0.00 KM |
| Bagshot Road | £ 0 | 0 | 0.00 KM |
| Harmanswater Road | £ 0 | 0 | 0.00 KM |
Nearby Transport
| Name | NLC | TLC | Distance |
|---|---|---|---|
| Bracknell | 5693 | BCE | 0.92 KM |
| Martins Heron | 5692 | MAO | 2.41 KM |
| Ascot (Berks) | 5666 | ACT | 7.78 KM |
| Camberley | 5682 | CAM | 7.86 KM |
| Bagshot | 5681 | BAG | 7.93 KM |
Nearby Listings
| Address | Price | Type | Score | Distance |
|---|---|---|---|---|
| Jaguar Lane, Bracknell, Berkshire, RG12 | £ 550,000 | BUY | 7 / 10 | 0.00 KM |
| Jaguar Lane, Bracknell, RG12 | £ 700,000 | BUY | 7 / 10 | 0.03 KM |
| Jaguar Lane, Bracknell | £ 700,000 | BUY | 7 / 10 | 0.03 KM |
| Jaguar Lane, Bracknell, Berkshire | £ 280,000 | BUY | 7 / 10 | 0.04 KM |
| Jaguar Lane, Bracknell, Berkshire, RG12 | £ 290,000 | BUY | 6 / 10 | 0.08 KM |
Nearby Properties
| Address | Price | Distance |
|---|---|---|
| 56 Jaguar Lane | £ 249,950 | 0.01 KM |
| 30 Jaguar Lane | £ 271,000 | 0.01 KM |
| 10 Jaguar Lane | £ 355,000 | 0.01 KM |
| 60 Jaguar Lane | £ 2,579,682 | 0.01 KM |
| 58 Jaguar Lane | £ 246,500 | 0.01 KM |