CU
Riverside Gardens, Oatlands Drive, Weybridge, KT13
By Curchods Estate Agents
£ 750,000
Reviews
3 out of 5 stars
Curchods Estate Agents says ..
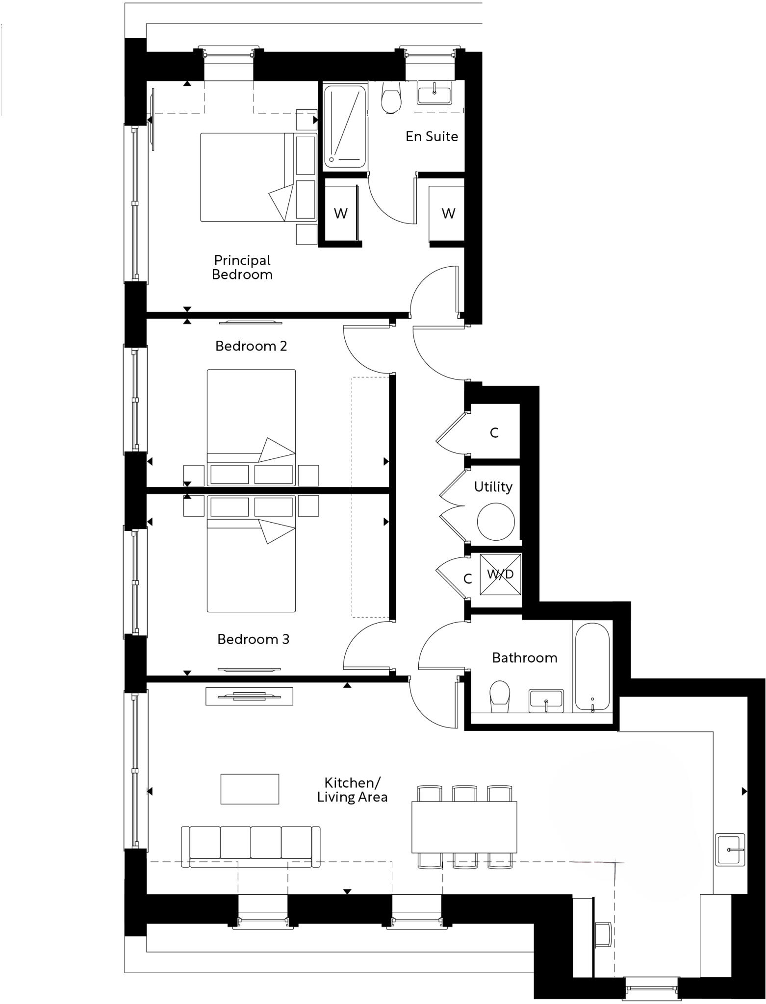
Apartment twenty four is a three bedroom, two bathroom second floor apartment situated in Goldfinch House with secure underground parking.
Property Oracle says ..
Therefore, we give this property 6 / 10. *Disclaimer: This is our option and does constitute a recommendation or financial advice. Do your own research. *
- Price
- 6
- Condition
- 9
- Location
- 9
- Land
- 1
- Bedrooms
- 3
- Bathrooms
- 2
- Sqft (est)
- 846.00
The heatmap indicates the level of crime in the area. The color of the heatmap indicates the crime severity and recency.
Metrics Year-on-Year
- Average area value
- 1,106,364.00 £Increased by 6.59 %
- Est sale value
- 1,330,758.00 £Increased by 108.62 %
- Average area rental value
- 4,190.00 £/moIncreased by 13.61 %
- Est letting value
- 4,230.00 £/moIncreased by 150.00 %
- Est rental Yield
- 4.54 %Increased by 6.57 %
- Crime Rate
- 0.00 %
from 1,037,919.00 £
from 637,884.00 £
from 3,688.00 £/mo
from 1,692.00 £/mo
from 4.26 %
from 0.00 %
Agent Activity
Curchods Estate Agents created the listing.
Nearby Schools
| Name | Type | Ofsted | Distance |
|---|---|---|---|
| Ashley Church Of England Primary School | Academy Converter | 1.16 KM | |
| Cleves School | Academy Converter | 1.38 KM | |
| Walton Leigh School | Community Special School | Outstanding | 1.68 KM |
| Oatlands School | Community School | Outstanding | 1.78 KM |
| Thamesmead School | Academy Converter | Good | 1.83 KM |
Images
Nearby Streets
| Name | Average Price | Average Sqft | Distance |
|---|---|---|---|
| Bridge Street | £ 0 | 0 | 0.00 KM |
| Larchfield Close | £ 0 | 0 | 0.00 KM |
| Beverley Close | £ 960,000 | 0 | 0.00 KM |
| Penny Lane | £ 0 | 0 | 0.00 KM |
| Duneevan | £ 372,500 | 0 | 0.00 KM |
Nearby Transport
| Name | NLC | TLC | Distance |
|---|---|---|---|
| Walton-On-Thames | 5575 | WAL | 2.00 KM |
| Shepperton | 5605 | SHP | 2.44 KM |
| Upper Halliford | 5613 | UPH | 3.18 KM |
| Sunbury | 5608 | SUU | 3.93 KM |
| Weybridge | 5577 | WYB | 4.12 KM |
Nearby Listings
| Address | Price | Type | Score | Distance |
|---|---|---|---|---|
| Riverside Gardens, Jubilee Gardens, Weybridge, KT13 | £ 395,000 | BUY | 7 / 10 | 0.00 KM |
| Jubilee Gardens, Oatlands Drive, Weybridge, KT13 | £ 350,000 | BUY | 6 / 10 | 0.00 KM |
| Riverside Gardens, Jubilee Gardens, Weybridge, KT13 | £ 395,000 | BUY | 7 / 10 | 0.00 KM |
| Jubilee Gardens, Oatlands Drive, Weybridge, KT13 | £ 375,000 | BUY | 7 / 10 | 0.00 KM |
| Riverside Gardens, Jubilee Gardens, Weybridge, KT13 | £ 550,000 | BUY | 7 / 10 | 0.00 KM |
Nearby Properties
| Address | Price | Distance |
|---|---|---|
| 6 Oatlands Drive | £ 200,000 | 0.01 KM |
| 4 Oatlands Drive | £ 210,000 | 0.01 KM |
| 22 Oatlands Drive | £ 1,240,000 | 0.01 KM |
| 18 Oatlands Drive | £ 962,000 | 0.02 KM |
| 8 Oatlands Drive | £ 320,000 | 0.02 KM |