Building Plot at Broadlands, Ash Mill
By Michael Adey Property
£ 150,000
Reviews
3 out of 5 stars
Michael Adey Property says ..
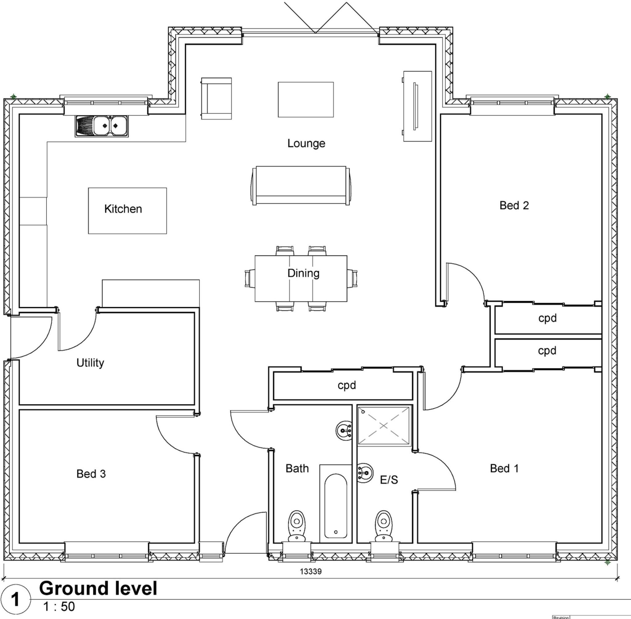
Building Plot near Ash Mill - Consent to construct a three bedroomed detached bungalow - 0.35 acres - A further 0.47 acres available - Guide Price from £150,000 ---->
Property Oracle says ..
Therefore, we give this property 6 / 10. *Disclaimer: This is our option and does constitute a recommendation or financial advice. Do your own research. *
- Price
- 8
- Condition
- 2
- Location
- 6
- Land
- 8
- Bedrooms
- 3
- Bathrooms
- 0
- Lot (est)
- 35,719.20
The heatmap indicates the level of crime in the area. The color of the heatmap indicates the crime severity and recency.
Metrics Year-on-Year
- Average area value
- 661,000.00 £Increased by 29.29 %
- Average area rental value
- 2,410.00 £/moIncreased by 120.90 %
- Est rental Yield
- 4.38 %Increased by 71.09 %
- Crime Rate
- 0.00 %
from 511,241.00 £
from 1,091.00 £/mo
from 2.56 %
from 0.00 %
Agent Activity
Michael Adey Property created the listing.
Nearby Schools
| Name | Type | Ofsted | Distance |
|---|---|---|---|
| Witheridge Church Of England Primary Academy | Academy Converter | Good | 7.35 KM |
| Bishops Nympton Primary School | Community School | Good | 7.39 KM |
| Rackenford Church Of England Primary School | Voluntary Aided School | Good | 8.28 KM |
| East Worlington Primary School | Academy Converter | Good | 8.87 KM |
Images
Nearby Streets
| Name | Average Price | Average Sqft | Distance |
|---|---|---|---|
| Overcott Lane | £ 0 | 0 | 0.00 KM |
Nearby Listings
| Address | Price | Type | Score | Distance |
|---|---|---|---|---|
| Building Plot at Broadlands, Ash Mill | £ 150,000 | BUY | 6 / 10 | 0.00 KM |
| Ash Mill, South Molton, Devon, EX36 | £ 450,000 | BUY | 7 / 10 | 0.14 KM |
| Ash Mill, South Molton, Devon, EX36 | £ 1,200,000 | BUY | 6 / 10 | 0.89 KM |
Nearby Properties
| Address | Price | Distance |
|---|---|---|
| 8 Moorland View | £ 152,500 | 1.83 KM |
| 4 Moorland View | £ 140,000 | 1.83 KM |