Armson Crescent, Arnold, Nottingham
By Leaders Sales
£ 77,500
Reviews
3 out of 5 stars
Leaders Sales says ..
Shared Ownership This brand new home is available to buy from as little as £77,500 with a 25% share! Birch Fields is an innovative new development that offers an elegant collection of 2, 3 and 4 bedroom mews, semi-detached and detached homes, located in the much sought...
Property Oracle says ..
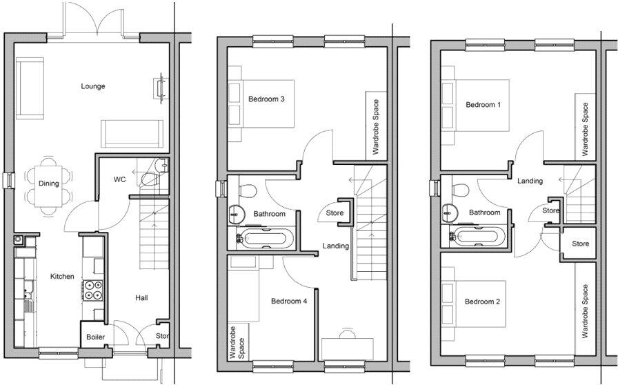
This is a semi-detached property located on Armson Crescent, Arnold, Nottingham. It features 4 bedrooms and 2 bathrooms, with a total area of 1,200 sqft. The property is listed for £77,500, which is significantly below the average price in the area. Nearby, there are several schools and transportation links. The property appears to be in excellent condition, suggesting it is either newly built or has been recently renovated.
Therefore, we give this property 7 / 10. *Disclaimer: This is our option and does constitute a recommendation or financial advice. Do your own research. *
- Price
- 9
- Condition
- 9
- Location
- 7
- Land
- 5
- Bedrooms
- 4
- Bathrooms
- 2
- Sqft (est)
- 1,200.00
The heatmap indicates the level of crime in the area. The color of the heatmap indicates the crime severity and recency.
Metrics Year-on-Year
- Average area value
- 237,361.00 £Decreased by 4.32 %
- Est sale value
- 368,400.00 £Increased by 42.79 %
- Average area rental value
- 944.00 £/moIncreased by 14.84 %
- Est letting value
- 1,200.00 £/mo
- Est rental Yield
- 4.77 %Increased by 19.85 %
- Crime Rate
- 6.00 %Unchanged by 0.00 %
Agent Activity
Leaders Sales created the listing.
Nearby Schools
| Name | Type | Ofsted | Distance |
|---|---|---|---|
| Robert Mellors Primary Academy | Academy Sponsor Led | 0.63 KM | |
| Arnold Hill Spencer Academy | Academy Converter | 0.65 KM | |
| Christ The King Voluntary Academy | Academy Converter | Good | 0.65 KM |
| Pinewood Infant And Nursery School | Community School | Outstanding | 0.75 KM |
| Killisick Junior School | Academy Converter | Good | 0.78 KM |
Images
Nearby Streets
| Name | Average Price | Average Sqft | Distance |
|---|---|---|---|
| Blake Close | £ 390,000 | 0 | 0.00 KM |
| Chestnut Grove | £ 0 | 0 | 0.00 KM |
| Milton Court | £ 180,000 | 0 | 0.00 KM |
| The Plains Pathway | £ 450,000 | 0 | 0.00 KM |
| Weaverthorpe Road | £ 337,500 | 0 | 0.00 KM |
Nearby Transport
| Name | NLC | TLC | Distance |
|---|---|---|---|
| Carlton | 6201 | CTO | 5.96 KM |
| Netherfield | 6241 | NET | 6.17 KM |
| Nottingham | 1826 | NOT | 7.05 KM |
| Burton Joyce | 6200 | BUJ | 8.66 KM |
| Bulwell | 1865 | BLW | 8.81 KM |
Nearby Listings
| Address | Price | Type | Score | Distance |
|---|---|---|---|---|
| Rolleston Drive, Arnold, Nottingham | £ 58,250 | BUY | 7 / 10 | 0.00 KM |
| Dexter Street, Arnold, Nottingham | £ 132,500 | BUY | 7 / 10 | 0.00 KM |
| Butler Street, Arnold, Nottingham | £ 142,750 | BUY | 7 / 10 | 0.00 KM |
| Armson Crescent, Arnold, Nottingham | £ 77,500 | BUY | 7 / 10 | 0.00 KM |
| Rolleston Drive, Arnold, Nottingham | £ 67,063 | BUY | 7 / 10 | 0.00 KM |
Nearby Properties
| Address | Price | Distance |
|---|---|---|
| 10 Brook Gardens | £ 120,000 | 0.10 KM |
| 5 Brook Gardens | £ 124,000 | 0.10 KM |
| 1 Lynton Gardens | £ 230,000 | 0.19 KM |
| 24 Lynton Gardens | £ 168,000 | 0.19 KM |
| 64 Lynton Gardens | £ 225,000 | 0.19 KM |