JR
Bridge House, Station Road, Cuffley
By JR Property Services
£ 399,950
Reviews
3 out of 5 stars
JR Property Services says ..
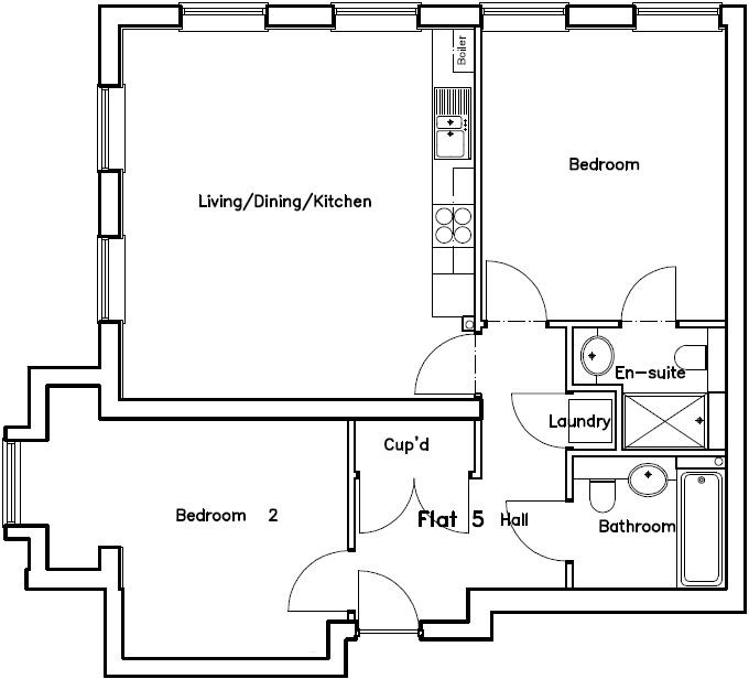
Offered Chain Free is this Spacious & well presented Two Double bedroom, Two Bathroom first floor apartment in this sought after Gated development in the heart of Cuffley. Benefits from en-suite shower room, Gas fired underfloor heating. Allocated parking Space. Situated a 'stone's throw' away fr...
Property Oracle says ..
Therefore, we give this property 6 / 10. *Disclaimer: This is our option and does constitute a recommendation or financial advice. Do your own research. *
- Price
- 6
- Condition
- 8
- Location
- 8
- Land
- 3
- Bedrooms
- 2
- Bathrooms
- 2
- Sqft (est)
- 663.00
The heatmap indicates the level of crime in the area. The color of the heatmap indicates the crime severity and recency.
Metrics Year-on-Year
- Average area value
- 1,009,989.00 £Decreased by 19.35 %
- Est sale value
- 380,562.00 £Increased by 4.17 %
- Average area rental value
- 1,648.00 £/moDecreased by 66.81 %
- Est letting value
- 0.00 £/moDecreased by 100.00 %
- Est rental Yield
- 1.96 %Decreased by 58.82 %
- Crime Rate
- 42.00 %Unchanged by 0.00 %
from 1,252,242.00 £
from 365,313.00 £
from 4,965.00 £/mo
from 1,326.00 £/mo
from 4.76 %
from 42.00 %
Agent Activity
JR Property Services created the listing.
Nearby Schools
| Name | Type | Ofsted | Distance |
|---|---|---|---|
| Cuffley School | Foundation School | Good | 0.42 KM |
| Goffs Oak Primary & Nursery School | Community School | Good | 2.12 KM |
| Woodside Primary School | Academy Converter | 2.40 KM | |
| Ponsbourne St Mary'S Church Of England Primary School | Voluntary Controlled School | Good | 2.40 KM |
| Northaw Church Of England Primary School | Voluntary Aided School | Good | 3.88 KM |
Images
Nearby Streets
| Name | Average Price | Average Sqft | Distance |
|---|---|---|---|
| Church Close | £ 315,000 | 0 | 0.00 KM |
| Coronation Avenue | £ 0 | 0 | 0.00 KM |
| Kingsway | £ 0 | 0 | 0.00 KM |
| Highfields | £ 1,099,975 | 0 | 0.00 KM |
| Warwick Close | £ 0 | 0 | 0.00 KM |
Nearby Transport
| Name | NLC | TLC | Distance |
|---|---|---|---|
| Cuffley | 6008 | CUF | 0.38 KM |
| Crews Hill | 6007 | CWH | 2.69 KM |
| Gordon Hill | 6028 | GDH | 5.36 KM |
| Bayford | 6006 | BAY | 5.88 KM |
| Enfield Chase | 6010 | ENC | 6.56 KM |
Nearby Listings
| Address | Price | Type | Score | Distance |
|---|---|---|---|---|
| Bridge House, Station Road, Cuffley | £ 399,950 | BUY | 6 / 10 | 0.00 KM |
| Maynard Place, Cuffley | £ 295,000 | BUY | 6 / 10 | 0.04 KM |
| Maynards Place, Cuffley | £ 299,950 | BUY | Unknown | 0.04 KM |
| Bridge House, Station Road, Cuffley | £ 334,995 | BUY | 5 / 10 | 0.04 KM |
| Theobalds Road, Cuffley, EN6 | £ 700,000 | BUY | 7 / 10 | 0.10 KM |
Nearby Properties
| Address | Price | Distance |
|---|---|---|
| 12 Maynard Place | £ 173,000 | 0.03 KM |
| 18 Maynard Place | £ 285,000 | 0.03 KM |
| 20 Maynard Place | £ 195,000 | 0.03 KM |
| 8 Maynard Place | £ 260,000 | 0.03 KM |
| 9 Maynard Place | £ 295,000 | 0.03 KM |