Glossop Brook View, Glossop
By Country Holmes
£ 385,000
Reviews
3 out of 5 stars
Country Holmes says ..
*** 3D VIDEO TOUR AVAILABLE TO VIEW***Forming part of Glossop's latest housing development by Rydale Homes. Ideally located close to the town's excellent amenities and within walking distance of the train station. This stunning development has been carefully planned a...
Property Oracle says ..
This three-bedroom, three-bathroom property in Glossop, Derbyshire, presents as a modern and well-maintained home. The interior photos reveal a contemporary design with high-quality fixtures and finishes. The open-plan living area and modern kitchen are particularly noteworthy, indicative of a recently built or extensively renovated property. The outdoor space, although not extensive, includes a patio and a small, neatly landscaped garden, providing a welcome area for relaxation. The location in Glossop, with its proximity to the railway station and town centre, adds to its convenience. Furthermore, the proximity to several schools makes this property potentially ideal for families. The absence of detailed square footage information for comparable properties makes a definitive assessment of the property’s price per square foot difficult. However, based on available data, the asking price appears competitive within the Glossop market for similar properties. Overall, the property is presented attractively and offers a comfortable and convenient lifestyle, potentially appealing to families or professionals. Note that additional information like the property’s age and energy efficiency rating would enhance the assessment.
Therefore, we give this property 6 / 10. *Disclaimer: This is our option and does constitute a recommendation or financial advice. Do your own research. *
- Price
- 7
- Condition
- 9
- Location
- 7
- Land
- 4
- Bedrooms
- 3
- Bathrooms
- 3
- Sqft (est)
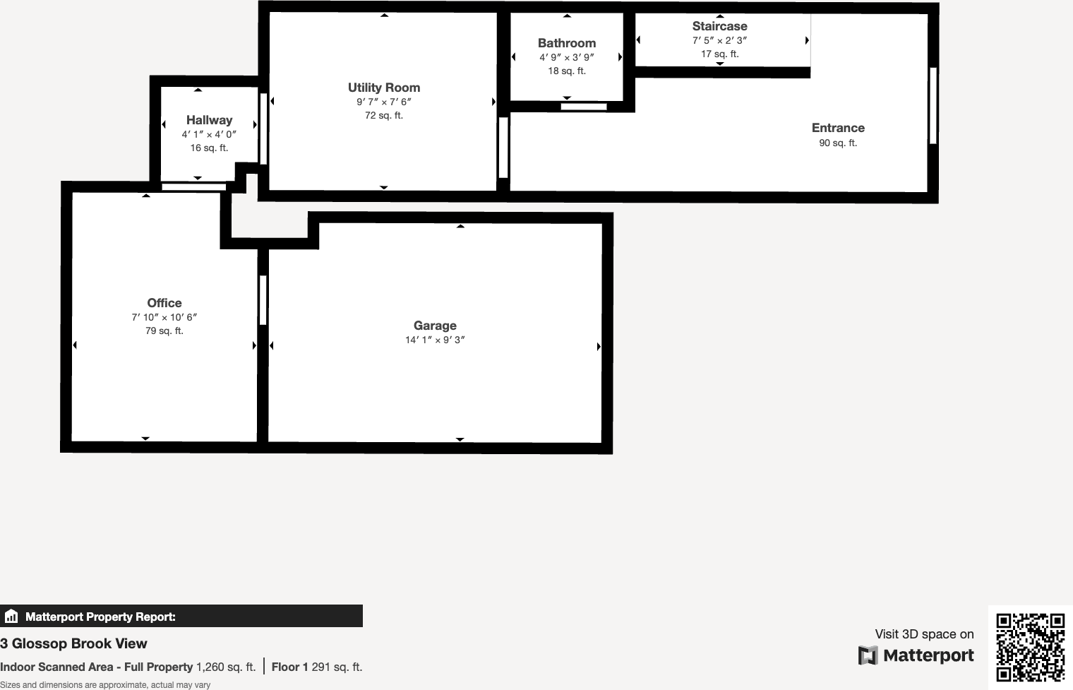
- 291.00
The heatmap indicates the level of crime in the area. The color of the heatmap indicates the crime severity and recency.
Metrics Year-on-Year
- Average area value
- 207,155.00 £Decreased by 4.75 %
- Est sale value
- 76,824.00 £Increased by 0.76 %
- Average area rental value
- 960.00 £/moIncreased by 7.14 %
- Est letting value
- 291.00 £/moUnchanged by 0.00 %
- Est rental Yield
- 5.56 %Increased by 12.55 %
- Crime Rate
- 8.00 %Unchanged by 0.00 %
Agent Activity
Country Holmes created the listing.
Nearby Schools
| Name | Type | Ofsted | Distance |
|---|---|---|---|
| Duke Of Norfolk Cofe Primary School | Voluntary Controlled School | Requires improvement | 0.37 KM |
| St Mary'S Catholic Voluntary Academy | Academy Sponsor Led | 0.51 KM | |
| All Saints Catholic Voluntary Academy | Academy Converter | 0.91 KM | |
| Glossop Children'S Centre | Children's Centre | 0.92 KM | |
| St Luke'S Cofe Primary School | Voluntary Controlled School | Good | 1.45 KM |
Images
Nearby Streets
| Name | Average Price | Average Sqft | Distance |
|---|---|---|---|
| Corn Street | £ 0 | 0 | 0.00 KM |
| Uplands Roads | £ 0 | 0 | 0.00 KM |
| Uplands Road | £ 0 | 0 | 0.00 KM |
| Nursery Close | £ 147,667 | 0 | 0.00 KM |
| Kershaw Street | £ 175,000 | 0 | 0.00 KM |
Nearby Transport
| Name | NLC | TLC | Distance |
|---|---|---|---|
| Glossop | 2895 | GLO | 0.63 KM |
| Dinting | 2893 | DTG | 3.03 KM |
| Hadfield | 2896 | HDF | 3.13 KM |
| Broadbottom | 2892 | BDB | 8.04 KM |
Nearby Listings
| Address | Price | Type | Score | Distance |
|---|---|---|---|---|
| Glossop Brook View, Glossop | £ 385,000 | BUY | 6 / 10 | 0.00 KM |
| Glossop Brook View, Glossop | £ 380,000 | BUY | Unknown | 0.03 KM |
| Jubilee Close, Glossop | £ 350,000 | BUY | 8 / 10 | 0.06 KM |
| Glossop Brook View, Glossop | £ 620,000 | BUY | 6 / 10 | 0.08 KM |
| Glossop Brook View, Glossop | £ 380,000 | BUY | 6 / 10 | 0.08 KM |
Nearby Properties
| Address | Price | Distance |
|---|---|---|
| 4 Lower Bank | £ 315,000 | 0.04 KM |
| 10 Lower Bank | £ 199,950 | 0.04 KM |
| 16 Mill Street | £ 110,000 | 0.15 KM |
| 1 Mill Street | £ 95,000 | 0.15 KM |
| 143 High Street East | £ 185,000 | 0.16 KM |