NO
Beattock Close, Melling Mount, L33
By North Wall
£ 165,000
Reviews
3 out of 5 stars
North Wall says ..
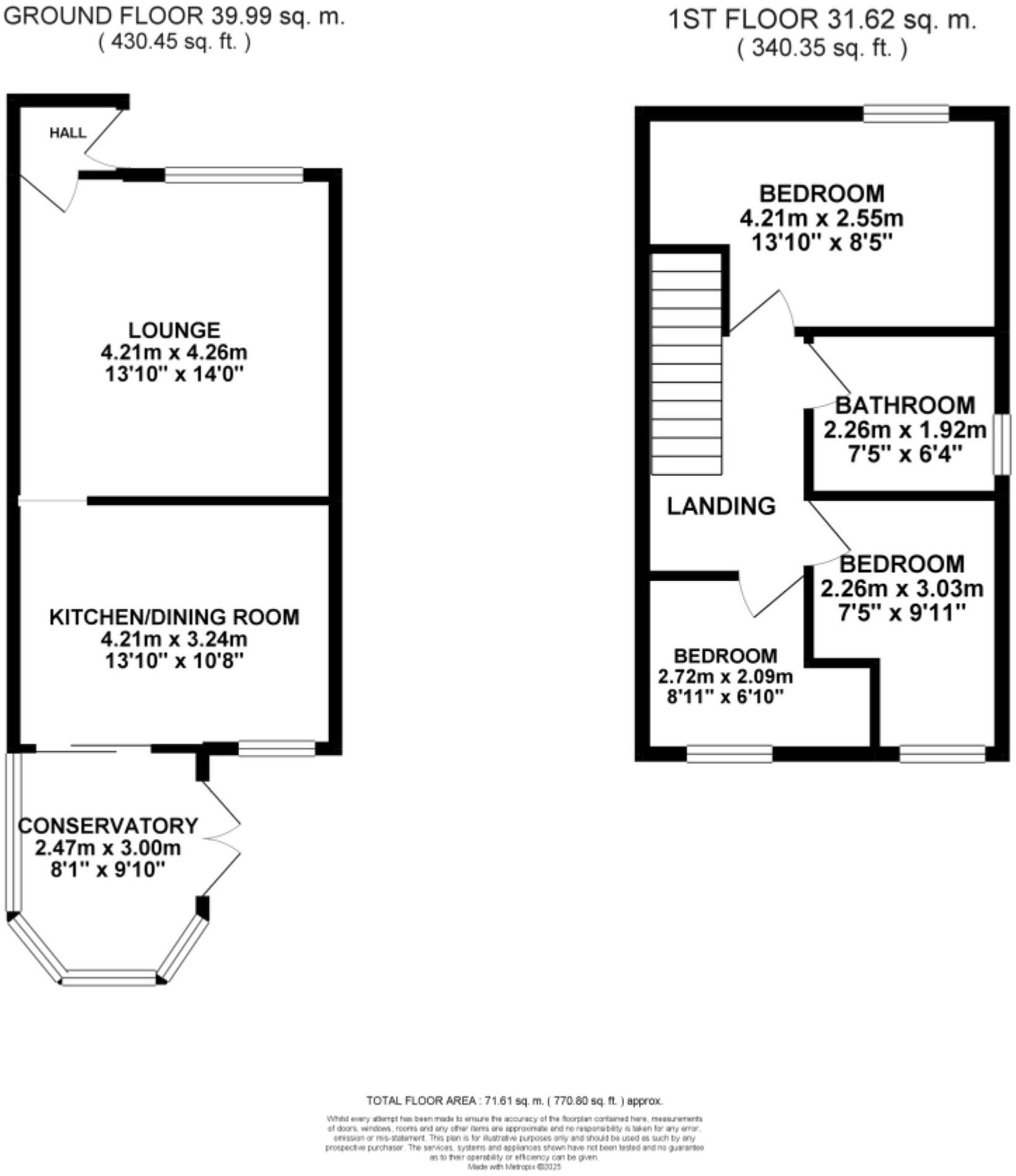
Stylish 3-bed semi-detached home in quiet cul-de-sac, sought-after Melling Mount. Generous plot with driveway, modern interior, conservatory, and sleek bathroom. Ideal for modern family living.
Property Oracle says ..
Therefore, we give this property 7 / 10. *Disclaimer: This is our option and does constitute a recommendation or financial advice. Do your own research. *
- Price
- 8
- Condition
- 8
- Location
- 7
- Land
- 7
- Bedrooms
- 3
- Bathrooms
- 1
The heatmap indicates the level of crime in the area. The color of the heatmap indicates the crime severity and recency.
Metrics Year-on-Year
- Average area value
- 195,854.00 £Increased by 10.28 %
- Average area rental value
- 993.00 £/moIncreased by 0.91 %
- Est rental Yield
- 6.08 %Decreased by 8.57 %
- Crime Rate
- 6.00 %Unchanged by 0.00 %
from 177,594.00 £
from 984.00 £/mo
from 6.65 %
from 6.00 %
Agent Activity
North Wall created the listing.
Nearby Schools
| Name | Type | Ofsted | Distance |
|---|---|---|---|
| Ravenscroft Community Primary School | Community School | Good | 1.07 KM |
| The Ark Sscc | Children's Centre Linked Site | 1.10 KM | |
| The Star Sscc | Children's Centre | 1.25 KM | |
| Saints Peter And Paul Catholic Primary School | Voluntary Aided School | Good | 1.65 KM |
| Millbrook Community Primary School | Community School | Good | 1.69 KM |
Images
Nearby Streets
| Name | Average Price | Average Sqft | Distance |
|---|---|---|---|
| Perth Close | £ 195,000 | 0 | 0.00 KM |
| Bank Lane | £ 0 | 0 | 0.00 KM |
| Vermont Close | £ 0 | 0 | 0.00 KM |
| Purbeck Road | £ 259,950 | 0 | 0.00 KM |
| Bank Lane | £ 475,000 | 0 | 0.00 KM |
Nearby Transport
| Name | NLC | TLC | Distance |
|---|---|---|---|
| Kirkby (Merseyside) | 2124 | KIR | 1.82 KM |
| Maghull North | 6576 | MNS | 3.43 KM |
| Maghull | 2155 | MAG | 4.04 KM |
| Town Green | 2283 | TWN | 4.82 KM |
| Fazakerley | 2126 | FAZ | 5.80 KM |
Nearby Listings
| Address | Price | Type | Score | Distance |
|---|---|---|---|---|
| Beattock Close, Melling Mount, L33 | £ 165,000 | BUY | 7 / 10 | 0.00 KM |
| Beattock Close, Liverpool, Merseyside, L33 | £ 175,000 | BUY | 6 / 10 | 0.04 KM |
| Beattock Close, Melling Mount | £ 195,000 | BUY | 7 / 10 | 0.05 KM |
| Beattock Close, Kirkby | £ 160,000 | BUY | 6 / 10 | 0.06 KM |
| Melrose Road, Liverpool, L33 | £ 200,000 | BUY | 8 / 10 | 0.07 KM |
Nearby Properties
| Address | Price | Distance |
|---|---|---|
| 15 Beattock Close | £ 186,000 | 0.04 KM |
| 7 Beattock Close | £ 96,000 | 0.04 KM |
| 9 Beattock Close | £ 98,000 | 0.04 KM |
| 22 Beattock Close | £ 148,000 | 0.04 KM |
| 16 Beattock Close | £ 89,000 | 0.04 KM |