Ashfield Terrace, Harrogate
By Nicholls Tyreman
£ 200,000
Reviews
3 out of 5 stars
Nicholls Tyreman says ..
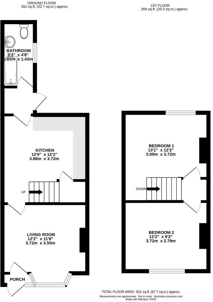
A fantastic opportunity to purchase this smart terraced house situated on Ashfield Terrace close to the centre of Harrogate and within walking distance of local amenities on Kings Road. Offering two double bedrooms and and spacious reception rooms this property is perfect for first time buyer and...
Property Oracle says ..
Therefore, we give this property 6 / 10. *Disclaimer: This is our option and does constitute a recommendation or financial advice. Do your own research. *
- Price
- 7
- Condition
- 8
- Location
- 8
- Land
- 3
- Bedrooms
- 2
- Bathrooms
- 1
- Sqft (est)
- 710.42
The heatmap indicates the level of crime in the area. The color of the heatmap indicates the crime severity and recency.
Metrics Year-on-Year
- Average area value
- 319,992.00 £Increased by 8.16 %
- Est sale value
- 270,670.02 £Increased by 20.95 %
- Average area rental value
- 1,230.00 £/moIncreased by 0.08 %
- Est letting value
- 710.42 £/moUnchanged by 0.00 %
- Est rental Yield
- 4.61 %Decreased by 7.43 %
- Crime Rate
- 6.00 %Unchanged by 0.00 %
from 295,848.00 £
from 223,782.30 £
from 1,229.00 £/mo
from 710.42 £/mo
from 4.98 %
from 6.00 %
Agent Activity
Nicholls Tyreman marked this listing as sold.
Nicholls Tyreman created the listing.
Nearby Schools
| Name | Type | Ofsted | Distance |
|---|---|---|---|
| Harrogate, Grove Road Community Primary School | Community School | Good | 0.14 KM |
| Springwell Harrogate | Academy Alternative Provision Converter | Outstanding | 0.14 KM |
| Harrogate, Bilton Grange Primary School | Academy Converter | Good | 0.86 KM |
| Harrogate Bilton Children'S Centre | Children's Centre | 0.86 KM | |
| Woodfield Primary School | Community School | Special Measures | 0.86 KM |
Images
Nearby Streets
| Name | Average Price | Average Sqft | Distance |
|---|---|---|---|
| Devonshire Square | £ 0 | 0 | 0.00 KM |
| Brewery Lane | £ 0 | 0 | 0.00 KM |
| Woodfield Drive | £ 55,000 | 0 | 0.00 KM |
| Woodfield Close | £ 260,000 | 0 | 0.00 KM |
| Chelmsford Road | £ 899,950 | 0 | 0.00 KM |
Nearby Transport
| Name | NLC | TLC | Distance |
|---|---|---|---|
| Harrogate | 8213 | HGT | 0.86 KM |
| Hornbeam Park | 8212 | HBP | 2.35 KM |
| Starbeck | 8221 | SBE | 3.60 KM |
| Pannal | 8479 | PNL | 4.62 KM |
| Knaresborough | 8214 | KNA | 7.07 KM |
Nearby Listings
| Address | Price | Type | Score | Distance |
|---|---|---|---|---|
| Ashfield Terrace, Harrogate | £ 200,000 | BUY | 6 / 10 | 0.00 KM |
| Ashfield Road, Harrogate | £ 199,999 | BUY | 7 / 10 | 0.03 KM |
| Ashfield Road, Harrogate | £ 200,000 | BUY | 6 / 10 | 0.04 KM |
| Ashfield Terrace, Harrogate | £ 200,000 | BUY | 6 / 10 | 0.07 KM |
| Ashfield Road, Harrogate, North Yorkshire, HG1 | £ 210,000 | BUY | 6 / 10 | 0.08 KM |
Nearby Properties
| Address | Price | Distance |
|---|---|---|
| 1 Ashfield Road | £ 143,000 | 0.04 KM |
| 25 Ashfield Road | £ 205,000 | 0.04 KM |
| 33 Ashfield Road | £ 137,000 | 0.04 KM |
| 17 Ashfield Road | £ 82,500 | 0.04 KM |
| 35 Ashfield Road | £ 138,500 | 0.04 KM |