Gascoigne Halman says ..
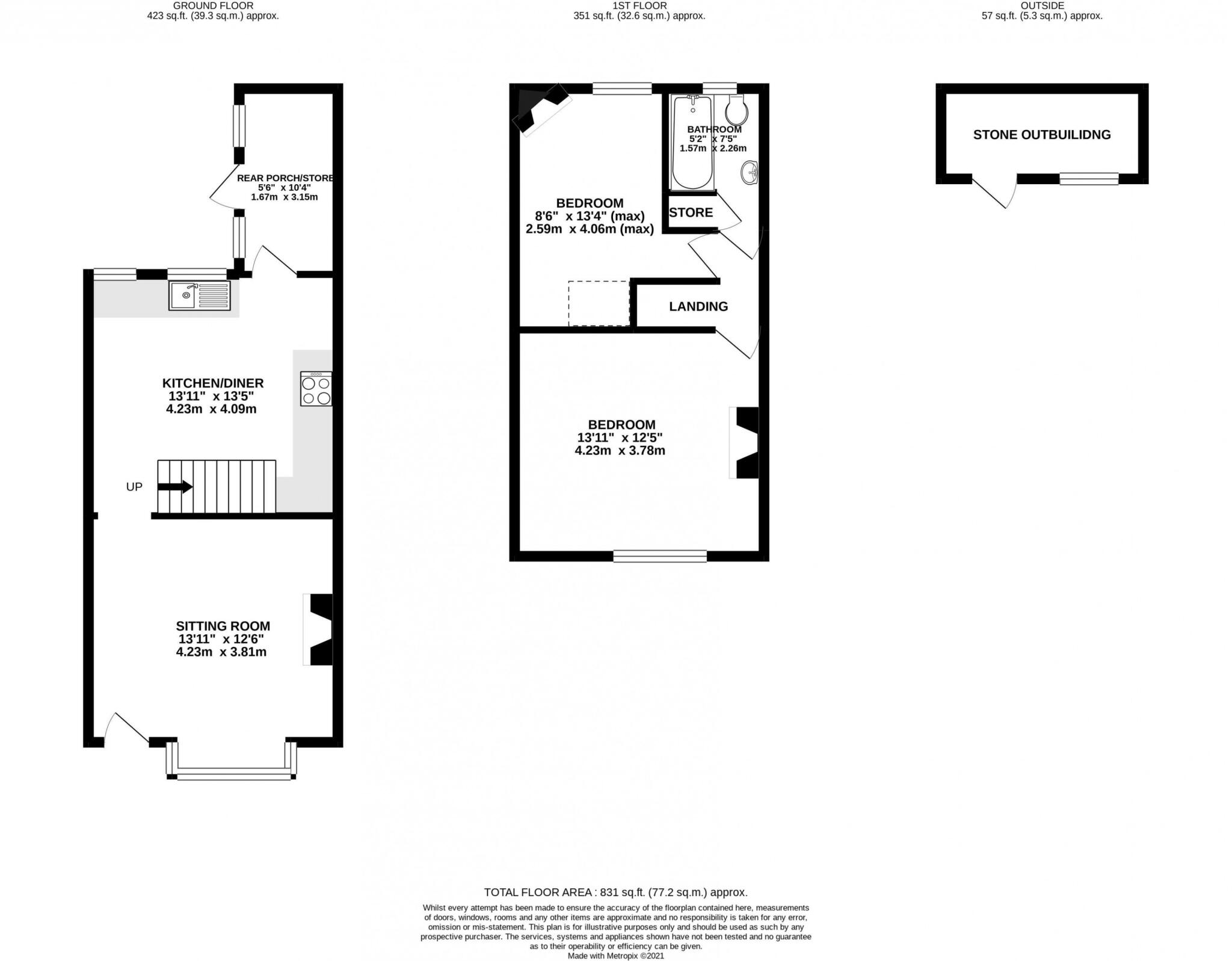
A SPACIOUS BAY FRONTED TERRACE PROPERTY offering an EXCELLENT CENTRAL LOCATION close to amenities and RAIL LINKS plus great RECENTLY UPGRADED accommodation offering TWO DOUBLE BEDROOMS and BRIGHT SITTING AND DINING/KITCHEN ROOMS. The property has a garden area to the rear with stone storage outbu...
Property Oracle says ..
This property is a 2 bedroom, 1 bathroom terraced house located in Newtown, Disley, Cheshire. The property is situated close to Newtown railway station, providing convenient access to transport links. Based on the photos, the property appears to be in good condition, with a recently updated kitchen. There is a small rear garden and a stone outbuilding. The list price is significantly below the average price for the area, and the price per square foot is also lower than the average. However, it is important to note that the average price per square foot is based on larger properties, and this property is smaller than average. Considering the condition, location, and size of the land, the list price may represent good value for money.
Therefore, we give this property 7 / 10. *Disclaimer: This is our option and does constitute a recommendation or financial advice. Do your own research. *
- Price
- 9
- Condition
- 8
- Location
- 7
- Land
- 4
- Bedrooms
- 2
- Bathrooms
- 1
- Sqft (est)
- 739.00
- Lot (est)
- 831.00
The heatmap indicates the level of crime in the area. The color of the heatmap indicates the crime severity and recency.
Metrics Year-on-Year
- Average area value
- 561,250.00 £Increased by 25.62 %
- Est sale value
- 368,022.00 £Increased by 22.66 %
- Average area rental value
- 1,544.00 £/moDecreased by 4.34 %
- Est letting value
- 739.00 £/moUnchanged by 0.00 %
- Est rental Yield
- 3.30 %Decreased by 23.79 %
- Crime Rate
- 33.00 %Unchanged by 0.00 %
Agent Activity
Gascoigne Halman created the listing.
Nearby Schools
| Name | Type | Ofsted | Distance |
|---|---|---|---|
| Newtown Primary School (High Peak Federation) | Community School | Good | 0.39 KM |
| St Mary'S Catholic Voluntary Academy | Academy Converter | 1.27 KM | |
| New Mills Nursery School | Local Authority Nursery School | Good | 1.32 KM |
| New Mills Primary School | Community School | Good | 1.58 KM |
| New Mills School | Community School | Good | 1.95 KM |
Images
Nearby Streets
| Name | Average Price | Average Sqft | Distance |
|---|---|---|---|
| Oak Avenue | £ 249,950 | 0 | 0.00 KM |
| Grove Street | £ 0 | 0 | 0.00 KM |
| Redmoor Lane | £ 0 | 0 | 0.00 KM |
| Hillside View | £ 485,000 | 0 | 0.00 KM |
| Waterside Road | £ 0 | 0 | 0.00 KM |
Nearby Transport
| Name | NLC | TLC | Distance |
|---|---|---|---|
| New Mills Newtown | 2769 | NMN | 0.37 KM |
| New Mills Central | 2974 | NMC | 0.94 KM |
| Furness Vale | 2952 | FNV | 2.77 KM |
| Strines | 2834 | SRN | 3.04 KM |
| Disley | 2765 | DSL | 3.40 KM |
Nearby Listings
| Address | Price | Type | Score | Distance |
|---|---|---|---|---|
| Meadowside, Newtown | £ 250,000 | BUY | 7 / 10 | 0.00 KM |
| Meadowside, Newtown Disley, Stockport | £ 239,950 | BUY | 5 / 10 | 0.01 KM |
| Meadowside, Disley, SK12 | £ 325,000 | BUY | Unknown | 0.06 KM |
| Oak Bank, Disley, SK12 | £ 250,000 | BUY | Unknown | 0.08 KM |
| Oak Avenue, Disley, Stockport | £ 285,000 | BUY | 6 / 10 | 0.09 KM |
Nearby Properties
| Address | Price | Distance |
|---|---|---|
| 5 Meadowside | £ 192,000 | 0.01 KM |
| 12 Meadowside | £ 135,000 | 0.01 KM |
| 10 Meadowside | £ 131,000 | 0.01 KM |
| 21 Meadowside | £ 154,950 | 0.01 KM |
| 9 Meadowside | £ 135,000 | 0.01 KM |