The Grange Estate, Church Crookham, Hampshire.
By Park Homes of Distinction
£ 229,950
Reviews
3 out of 5 stars
Park Homes of Distinction says ..
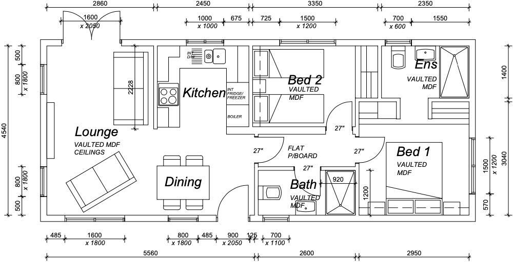
38’ x 16’ Oakgrove Oakdale lodge situated on the popular Grange estate in Church Crookham Hampshire. The lifestyle at Grange Estate is relaxed, friendly and highly sought after, not only for its beautiful grounds and location, but also because of the strong community atmosphere amongs...
Property Oracle says ..
This is a well-presented park home located in a desirable area of Church Crookham. The property is in excellent condition and offers modern living spaces. The location is convenient for local amenities, schools, and transportation links. The price is reasonable for a property of this type and in this location. The park home is situated in The Grange Estate, which appears to be a well-maintained and pleasant residential area. Overall, this property offers a comfortable and convenient lifestyle for those seeking a park home in Hampshire.
Therefore, we give this property 7 / 10. *Disclaimer: This is our option and does constitute a recommendation or financial advice. Do your own research. *
- Price
- 7
- Condition
- 9
- Location
- 7
- Land
- 5
- Bedrooms
- 2
- Bathrooms
- 2
- Sqft (est)
- 22,120.00
The heatmap indicates the level of crime in the area. The color of the heatmap indicates the crime severity and recency.
Metrics Year-on-Year
- Average area value
- 474,943.00 £Increased by 6.76 %
- Est sale value
- 20,040,720.00 £Increased by 129.37 %
- Average area rental value
- 2,010.00 £/moIncreased by 42.65 %
- Est letting value
- 66,360.00 £/moIncreased by 200.00 %
- Est rental Yield
- 5.08 %Increased by 33.68 %
- Crime Rate
- 2.00 %Unchanged by 0.00 %
Agent Activity
Park Homes of Distinction created the listing.
Nearby Schools
| Name | Type | Ofsted | Distance |
|---|---|---|---|
| Crookham Church Of England Aided Infant School | Voluntary Aided School | Good | 0.32 KM |
| Court Moor School | Community School | Good | 0.83 KM |
| Church Crookham Junior School | Community School | Outstanding | 1.40 KM |
| Heatherside Junior School | Community School | Outstanding | 1.44 KM |
| Heatherside Infant School | Community School | Outstanding | 1.44 KM |
Images
Nearby Streets
| Name | Average Price | Average Sqft | Distance |
|---|---|---|---|
| Green Glades | £ 204,983 | 0 | 0.00 KM |
| Sylvan Way | £ 115,000 | 0 | 0.00 KM |
| Rowan Dale | £ 0 | 0 | 0.00 KM |
| Woodland Rise | £ 176,665 | 0 | 0.00 KM |
| Rustic Glen | £ 280,000 | 0 | 0.00 KM |
Nearby Transport
| Name | NLC | TLC | Distance |
|---|---|---|---|
| Fleet | 5522 | FLE | 3.42 KM |
| Winchfield | 5528 | WNF | 7.24 KM |
| Farnham | 5545 | FNH | 8.18 KM |
| Bentley (Hampshire) | 5624 | BTY | 9.50 KM |
| Aldershot | 5623 | AHT | 9.62 KM |
Nearby Listings
| Address | Price | Type | Score | Distance |
|---|---|---|---|---|
| The Grange Estate, Church Crookham, Hampshire. | £ 229,950 | BUY | 7 / 10 | 0.00 KM |
| Grange Estate, Church Crookham, Fleet | £ 110,000 | BUY | 7 / 10 | 0.01 KM |
| Green Glades, Grange Estate, Church Crookham, Fleet | £ 150,000 | BUY | 7 / 10 | 0.07 KM |
| Coming soon to Church Crookham | £ 399,950 | BUY | 5 / 10 | 0.11 KM |
| Rustic Glen, Grange Estate, Church Crookham | £ 115,000 | BUY | 6 / 10 | 0.11 KM |
Nearby Properties
| Address | Price | Distance |
|---|---|---|
| 65 Ferndale Road | £ 430,000 | 0.20 KM |
| 49 Ferndale Road | £ 555,000 | 0.20 KM |
| 52 Ferndale Road | £ 353,000 | 0.20 KM |
| 31 Ferndale Road | £ 385,000 | 0.20 KM |
| 56 Ferndale Road | £ 380,000 | 0.20 KM |