HPG says ..
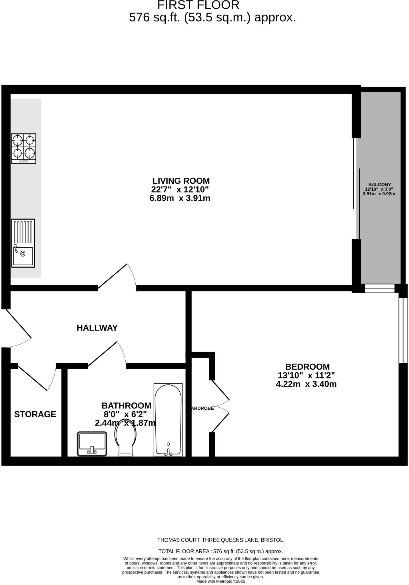
Modern apartment in BS1 situated on the first floor of Thomas Court. The property is offered chain free and benefits from 54 SQ M of space, contemporary integrated kitchen and bathroom suite, and a balcony. The block has video entry and lift access and is located a stones throw from Queens Square...
Property Oracle says ..
This is a one-bedroom flat in central Bristol. The property is in a good location, close to amenities and transport links. While the flat is in reasonable condition, it could benefit from some modernisation. The asking price of £225,000 seems reasonable given the location and size of the property, especially when compared to the average price in the area. The flat includes a balcony, which is a desirable feature. Overall, this property presents a good opportunity for first-time buyers or investors looking for a centrally located flat with potential for improvement.
Therefore, we give this property 5 / 10. *Disclaimer: This is our option and does constitute a recommendation or financial advice. Do your own research. *
- Price
- 7
- Condition
- 6
- Location
- 7
- Land
- 3
- Bedrooms
- 1
- Bathrooms
- 1
- Sqft (est)
- 532.68
The heatmap indicates the level of crime in the area. The color of the heatmap indicates the crime severity and recency.
Metrics Year-on-Year
- Average area value
- 487,124.00 £Increased by 94.35 %
- Est sale value
- 328,130.88 £Increased by 112.41 %
- Average area rental value
- 1,220.00 £/moIncreased by 6.46 %
- Est letting value
- 532.68 £/moUnchanged by 0.00 %
- Est rental Yield
- 3.01 %Decreased by 45.17 %
- Crime Rate
- 5.00 %Unchanged by 0.00 %
Agent Activity
HPG created the listing.
Nearby Schools
| Name | Type | Ofsted | Distance |
|---|---|---|---|
| St Mary Redcliffe And Temple School | Voluntary Aided School | Outstanding | 0.49 KM |
| Redcliffe Childrens Centre And Maintained Nursery School | Local Authority Nursery School | Outstanding | 0.52 KM |
| Redcliffe Children'S Centre And Maintained Nursery | Children's Centre | 0.52 KM | |
| Lpw Independent School | Other Independent School | Good | 0.76 KM |
| St Mary Redcliffe Church Of England Primary School | Academy Sponsor Led | 0.95 KM |
Images
Nearby Streets
| Name | Average Price | Average Sqft | Distance |
|---|---|---|---|
| Canynge Street | £ 0 | 0 | 0.00 KM |
| Victoria Street | £ 257,500 | 0 | 0.00 KM |
| Redcliffe Wharf | £ 0 | 0 | 0.00 KM |
| The Lime Avenue | £ 0 | 0 | 0.00 KM |
| Somerset Square | £ 0 | 0 | 0.00 KM |
Nearby Transport
| Name | NLC | TLC | Distance |
|---|---|---|---|
| Bristol Temple Meads | 3231 | BRI | 0.87 KM |
| Bedminster | 3245 | BMT | 1.29 KM |
| Montpelier | 3203 | MTP | 1.98 KM |
| Redland | 3247 | RDA | 2.27 KM |
| Parson Street | 3246 | PSN | 2.82 KM |
Nearby Listings
| Address | Price | Type | Score | Distance |
|---|---|---|---|---|
| Three Queens Lane, Bristol, BS1 | £ 225,000 | BUY | 5 / 10 | 0.00 KM |
| Three Queens Lane, Bristol, BS1 6LE | £ 225,000 | BUY | 6 / 10 | 0.00 KM |
| St. Thomas Street, BS1 | £ 230,000 | BUY | 6 / 10 | 0.05 KM |
| The Atrium, 60 Redcliff Street, Bristol | £ 350,000 | BUY | 7 / 10 | 0.05 KM |
| St. Thomas Street, Bristol, Somerset, BS1 | £ 250,000 | BUY | 6 / 10 | 0.06 KM |
Nearby Properties
| Address | Price | Distance |
|---|---|---|
| 8 Victoria Street | £ 135,000 | 0.30 KM |
| 3 Colston Parade | £ 263,000 | 0.34 KM |
| 12 Queen Quay | £ 178,000 | 0.38 KM |
| 13 Queen Quay | £ 250,000 | 0.38 KM |
| 5 Queen Quay | £ 241,500 | 0.38 KM |