Hunters says ..
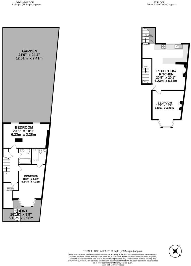
Offered chain-free, this stunning four-bedroom period conversion spans two floors of an imposing Victorian building and offers an impressive 1,179 sq. ft. (109 sqm) of internal space. The apartment benefits from sole use of a spectacular 41-foot (12.5-metre) south-east facing private garden and i...
Property Oracle says ..
Therefore, we give this property 7 / 10. *Disclaimer: This is our option and does constitute a recommendation or financial advice. Do your own research. *
- Price
- 7
- Condition
- 8
- Location
- 9
- Land
- 7
- Bedrooms
- 4
- Bathrooms
- 2
- Sqft (est)
- 2,274.20
The heatmap indicates the level of crime in the area. The color of the heatmap indicates the crime severity and recency.
Metrics Year-on-Year
- Average area value
- 440,000.00 £Decreased by 31.24 %
- Est sale value
- 1,735,214.60 £Increased by 0.26 %
- Average area rental value
- 2,681.00 £/moIncreased by 3.51 %
- Est letting value
- 9,096.80 £/moIncreased by 33.33 %
- Est rental Yield
- 7.31 %Increased by 50.41 %
- Crime Rate
- 3.00 %Unchanged by 0.00 %
from 639,918.00 £
from 1,730,666.20 £
from 2,590.00 £/mo
from 6,822.60 £/mo
from 4.86 %
from 3.00 %
Agent Activity
Hunters created the listing.
Nearby Schools
| Name | Type | Ofsted | Distance |
|---|---|---|---|
| Brook Satellite Children'S Centre | Children's Centre Linked Site | 0.35 KM | |
| Mossbourne Parkside Academy | Academy Converter | Good | 0.35 KM |
| Mossbourne Community Academy | Academy Sponsor Led | Outstanding | 0.41 KM |
| Stormont House School | Community Special School | Outstanding | 0.63 KM |
| The Boxing Academy Ap Free School | Free Schools Alternative Provision | Outstanding | 0.67 KM |
Images
Nearby Streets
| Name | Average Price | Average Sqft | Distance |
|---|---|---|---|
| Blakeney Close | £ 0 | 0 | 0.00 KM |
| Foxley Close | £ 0 | 0 | 0.00 KM |
| Bridge Mews | £ 625,000 | 0 | 0.00 KM |
| Spurstowe Road | £ 0 | 0 | 0.00 KM |
| Ritson Road | £ 1,516,667 | 0 | 0.00 KM |
Nearby Transport
| Name | NLC | TLC | Distance |
|---|---|---|---|
| Hackney Downs | 6867 | HAC | 0.50 KM |
| Rectory Road | 6967 | REC | 0.94 KM |
| Hackney Central | 6977 | HKC | 1.06 KM |
| Dalston Kingsland | 1429 | DLK | 1.22 KM |
| Dalston Junction | 1443 | DLJ | 1.24 KM |
Nearby Listings
| Address | Price | Type | Score | Distance |
|---|---|---|---|---|
| Amhurst Road, London, E8 | £ 1,000,000 | BUY | 7 / 10 | 0.00 KM |
| Amhurst Road, London, E8 | £ 550,000 | BUY | Unknown | 0.04 KM |
| Amhurst Road, E8 | £ 475,000 | BUY | 5 / 10 | 0.04 KM |
| Amhurst Road, London, E8 | £ 950,000 | BUY | 7 / 10 | 0.09 KM |
| Downs Park Road, Hackney, London, E8 | £ 835,000 | BUY | 6 / 10 | 0.11 KM |
Nearby Properties
| Address | Price | Distance |
|---|---|---|
| 147a Amhurst Road | £ 985,000 | 0.04 KM |
| 173b Amhurst Road | £ 450,000 | 0.04 KM |
| 152 Sandringham Road | £ 554,000 | 0.07 KM |
| 146 Sandringham Road | £ 60,000 | 0.07 KM |
| 165 Sandringham Road | £ 160,000 | 0.07 KM |