Cannon Hill Lane, SW20
EL

Cannon Hill Lane, SW20

By Ellisons

£ 1,200,000

Reviews

3 out of 5 stars

Ellisons says ..

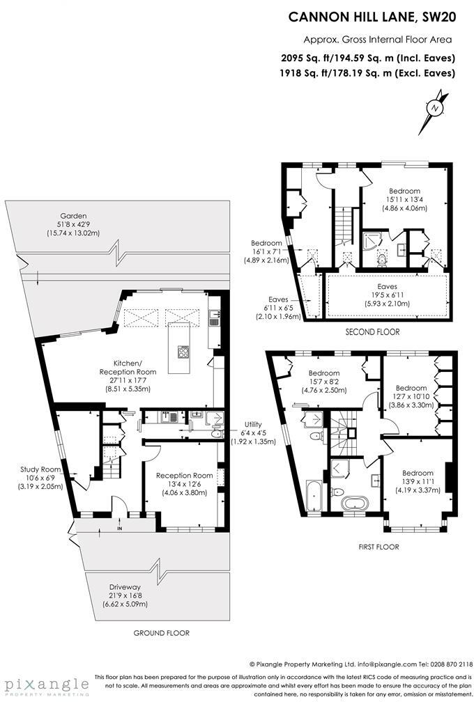
GUIDE PRICE £1,200,000 - £1,250,000. A beautifully presented and rarely available five bedroom, four bathroom end of terrace family home nestled in the heart of the Cannon Hill area of SW20. In excess of 2000 sq ft and in bespoke condition throughout, the property boasts gated off-street parking...

Property Oracle says ..

Therefore, we give this property 7 / 10. *Disclaimer: This is our option and does constitute a recommendation or financial advice. Do your own research. *

Price
6
Condition
9
Location
8
Land
7
Bedrooms
5
Bathrooms
4
Lot (est)
2,095.00

The heatmap indicates the level of crime in the area. The color of the heatmap indicates the crime severity and recency.

Metrics Year-on-Year

Average area value
575,778.00 £
Increased by 14.54 %
from 502,698.00 £
Average area rental value
2,096.00 £/mo
Decreased by 8.39 %
from 2,288.00 £/mo
Est rental Yield
4.37 %
Decreased by 19.96 %
from 5.46 %
Crime Rate
4.00 %
Unchanged by 0.00 %
from 4.00 %

Agent Activity

  • Ellisons created the listing.

Nearby Schools

NameTypeOfstedDistance
St John Fisher Rc Primary SchoolVoluntary Aided SchoolGood0.56 KM
Hatfeild Primary SchoolCommunity SchoolGood0.59 KM
Lower Morden Children'S CentreChildren's Centre Linked Site0.73 KM
Aragon Primary SchoolAcademy ConverterGood0.82 KM
Hillcross Primary SchoolCommunity SchoolGood1.22 KM

Images

Cannon Hill Lane Cannon Hill Lane Cannon Hill Lane Cannon Hill Lane Cannon Hill Lane Cannon Hill Lane Cannon Hill Lane Cannon Hill Lane Cannon Hill Lane Cannon Hill Lane Cannon Hill Lane Cannon Hill Lane Cannon Hill Lane Cannon Hill Lane Cannon Hill Lane Cannon Hill Lane Cannon Hill Lane Cannon Hill Lane Cannon Hill Lane Cannon Hill Lane Cannon Hill Lane Cannon Hill Lane Cannon Hill Lane Cannon Hill Lane Cannon Hill Lane Cannon Hill Lane Cannon Hill Lane Cannon Hill Lane Cannon Hill Lane Cannon Hill Lane Cannon Hill Lane Cannon Hill Lane Cannon Hill Lane Cannon Hill Lane Cannon Hill Lane Cannon Hill Lane Cannon Hill Lane Cannon Hill Lane

Nearby Streets

NameAverage PriceAverage SqftDistance
Parkway £ 950,00000.00 KM
Coniston Close £ 383,92900.00 KM
Parkway £ 985,00000.00 KM
St. Catherine's Close £ 332,84900.00 KM
Hillside Close £ 000.00 KM

Nearby Transport

NameNLCTLCDistance
Wimbledon Chase5612WBO1.74 KM
Raynes Park5569RAY1.79 KM
South Merton5292SMO1.96 KM
Motspur Park5645MOT2.01 KM
Morden South5291MDS2.42 KM

Nearby Listings

AddressPriceTypeScoreDistance
Cannon Hill Lane, SW20 £ 1,200,000BUY7 / 100.00 KM
Cannon Hill Lane, SW20 £ 700,000BUY7 / 100.04 KM
Cannon Hill Lane, London, SW20 £ 350,000BUYUnknown0.05 KM
Cannon Hill Lane, Raynes Park £ 400,000BUY7 / 100.06 KM
Cannon Hill Lane, London, SW20 £ 800,000BUY6 / 100.09 KM

Nearby Properties

AddressPriceDistance
260 Cannon Hill Lane £ 285,7000.11 KM
284 Cannon Hill Lane £ 171,8000.11 KM
264 Cannon Hill Lane £ 419,0000.11 KM
306 Cannon Hill Lane £ 382,5000.11 KM
242 Cannon Hill Lane £ 324,0000.11 KM