Foxtons says ..
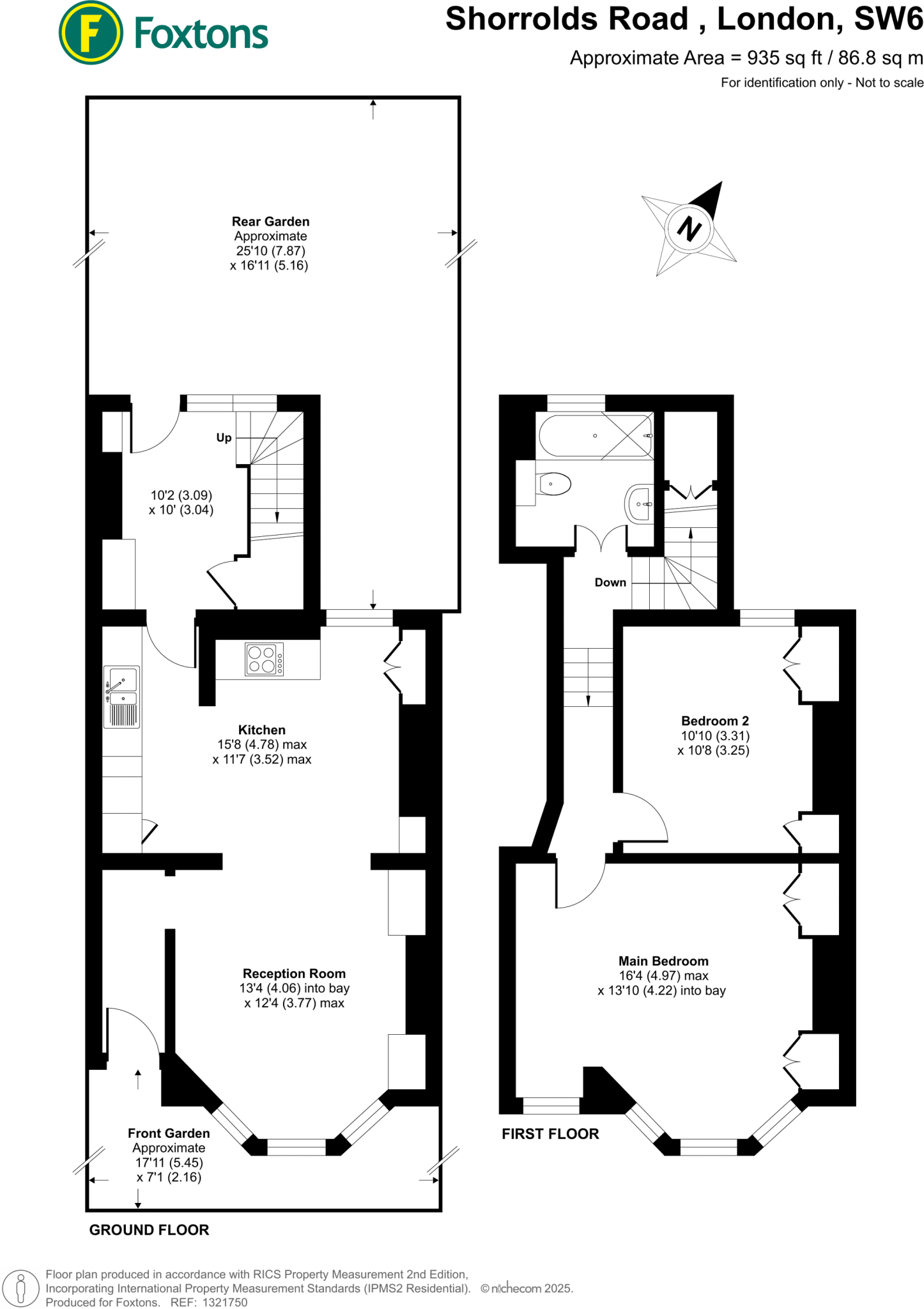
Ideally located just a short walk away from Fulham Broadway, this superb two bedroom property benefits from a private rear garden and a spacious eat-in kitchen.
Property Oracle says ..
Therefore, we give this property 7 / 10. *Disclaimer: This is our option and does constitute a recommendation or financial advice. Do your own research. *
- Price
- 7
- Condition
- 8
- Location
- 8
- Land
- 7
- Bedrooms
- 2
- Bathrooms
- 1
- Sqft (est)
- 935.00
The heatmap indicates the level of crime in the area. The color of the heatmap indicates the crime severity and recency.
Metrics Year-on-Year
- Average area value
- 778,925.00 £Decreased by 20.14 %
- Est sale value
- 967,725.00 £Increased by 17.08 %
- Average area rental value
- 2,952.00 £/moIncreased by 25.08 %
- Est letting value
- 2,805.00 £/moIncreased by 50.00 %
- Est rental Yield
- 4.55 %Increased by 56.90 %
- Crime Rate
- 8.00 %Unchanged by 0.00 %
from 975,381.00 £
from 826,540.00 £
from 2,360.00 £/mo
from 1,870.00 £/mo
from 2.90 %
from 8.00 %
Agent Activity
Foxtons created the listing.
Nearby Schools
| Name | Type | Ofsted | Distance |
|---|---|---|---|
| Kensington Prep School | Other Independent School | 0.42 KM | |
| Fulham Primary School | Academy Converter | Good | 0.45 KM |
| Fulham Central Children'S Centre | Children's Centre | 0.46 KM | |
| Evergreen Primary School | Other Independent School | Requires improvement | 0.54 KM |
| Psla Children'S Centre Services At Normand Croft Community School | Children's Centre Linked Site | 0.56 KM |
Images
Nearby Streets
| Name | Average Price | Average Sqft | Distance |
|---|---|---|---|
| Epirus Road | £ 0 | 0 | 0.00 KM |
| Bishop's Road | £ 475,000 | 0 | 0.00 KM |
| Goaters Alley | £ 850,000 | 0 | 0.00 KM |
| Farm Lane | £ 1,185,000 | 0 | 0.00 KM |
| John Smith Avenue | £ 0 | 0 | 0.00 KM |
Nearby Transport
| Name | NLC | TLC | Distance |
|---|---|---|---|
| West Brompton | 8875 | WBP | 0.92 KM |
| Kensington (Olympia) | 3092 | KPA | 2.13 KM |
| Imperial Wharf | 9586 | IMW | 2.15 KM |
| Wandsworth Town | 5576 | WNT | 2.66 KM |
| Putney | 5603 | PUT | 2.77 KM |
Nearby Listings
| Address | Price | Type | Score | Distance |
|---|---|---|---|---|
| Shorrolds Road, Fulham, London, SW6 | £ 800,000 | BUY | 7 / 10 | 0.00 KM |
| Shorrolds Road, Fulham | £ 750,000 | BUY | 6 / 10 | 0.01 KM |
| Shorrolds Road, Fulham | £ 1,300,000 | BUY | 6 / 10 | 0.02 KM |
| Shorrolds Road, Fulham | £ 1,250,000 | BUY | Unknown | 0.02 KM |
| **Stunning Four-Story Period Townhouse in Prestigious Fulham Location** | £ 1,300,000 | BUY | 6 / 10 | 0.03 KM |
Nearby Properties
| Address | Price | Distance |
|---|---|---|
| 48b Shorrolds Road | £ 700,000 | 0.02 KM |
| 26b Shorrolds Road | £ 583,000 | 0.02 KM |
| 26a Shorrolds Road | £ 800,000 | 0.02 KM |
| 48a Shorrolds Road | £ 410,000 | 0.02 KM |
| 60 Shorrolds Road | £ 1,000,000 | 0.02 KM |